村客共享空间—李巷村旅社
1388
作品说明
- 项目类型:酒店
- 项目地点:南京市
- 建筑面积:4948.0000㎡
- 项目造价:900.0000万元
- 参与设计师:金鑫、葛佳佳、张倩倩、杨孙飞、李海波
- 竣工时间:2020-03-20
- 设计机构:南京反几建筑设计事务所(普通合伙)
-
项目定位:李巷村位于南京主城南部、溧水东南部白马镇石头寨社区,距溧水城区26公里,距南京中心城区60公里。
李巷村历史底蕴深厚,旅游资源丰富,所属的石头寨社区被誉为全国黑莓“第一村”,蓝莓“第一村”。近年来依靠蓝莓种植业和特色历史文化吸引了不少游客前来观光,但村落原有公共设施无法承接日益增长的游客服务需求。
在乡村振兴的大背景下,既要满足城市游客在乡村寻找田园风光与风土人情的需求,又需要保留乡村特色,改善村民生活品质,为村民提供便民的公共服务设施。所以这类近郊的乡村公共空间需要响应游客和村民双方面的需求。
于是在2018年,ATA设计团队对原村委会大院进行改扩建设计:配置乡村旅舍,为游客提供集中住宿服务,补充村民活动中心,力图在改善乡村旅游环境的同时,进一步复兴乡村公共生活。 -
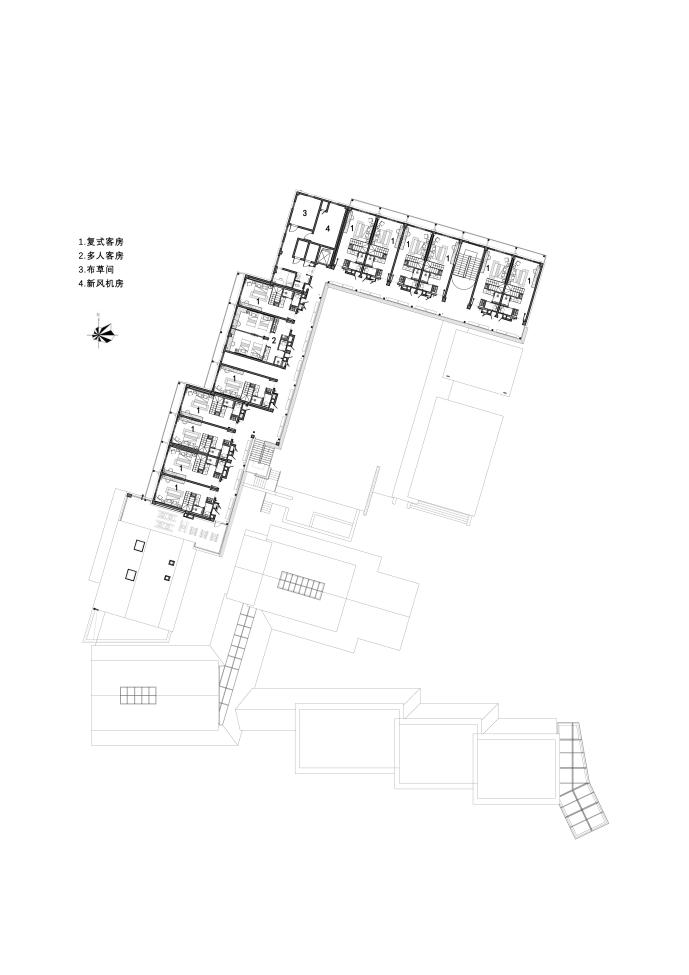
空间意境:李巷村旅社总建筑面积约为4948平方米,地上4341平方米,地下607平方米。将原有“一”字型布局的三层办公楼进行改造扩建,由凉棚,乡村旅舍的客房区,乡村多功能厅,形成“L”型布局,围合出内院,互相关联的空间使共享的公共场地变得流动。
-
空间布局:空间布局上,作为村民和游客日常活动的小广场,在农忙时也可作为村民的晒谷场。凉棚、乡村多功能厅可供村民和游客共同使用,旅社的餐厅也与乡村食堂相结合,村民也可以利用这些空间举办民俗表演和宾客宴请。又能在这些空间中产生村民活动行为的同时展现给游客乡村的风土人情。
乡村旅舍的客房区,客房数为46间,其中包含多人客房、复式客房和标准客房,我们以减法取代加法,室内尽量简洁,但功能完善,按观景、饮茶、卧室、阅读的生活方式划分空间形态。
-
设计选材:新空间的加入势必带来原有场所的扰动,但由于乡村建设的特殊性,顺应当下需求,于是,设计的表达和空间氛围的营造便成为一种“顺势而为”的选择。
在室内设计时,我们保留公共空间的胶合竹结构,经过加工处理过的竹工程材料低碳环保,塑造出一些“新”的个性,而略显粗糙的毛石墙,“乡土气”的稻草漆,也保有一点对于“旧”的敬畏。
客房区域整体以白色稻草漆墙面、灰色水泥地面,浅色木纹等材质为主,极简的家具在生产成本和视觉上也达到了一个比较好的平衡点。沉静的木色留住了乡村的风土人情,经由精心的打磨,突出自然的纹理。细节处的配饰设计从乡土中吸取灵感,让游客感受乡村的朴拙美好。
-
用户体验:乡村建设探索,于我们而言,它不仅仅是城市人对乡村的猎奇观光,而是在留住乡村的风土与人文特征的基础上,加强乡村与外部现代化世界的连接,提升本地村民的生活品质,吸引更多的外出村民返回乡村生活,不少原住村民回到故里开饭店、搞农产销售从而形成一条符合乡村自身特点的振兴之路。
乡村最美,同时也无法复制,正是这些时间的痕迹,自然更迭,产生一些新的空间,也留下一点生长的痕迹。演绎出一幕幕过去发生的、正在发生的和即将发生的事。
0
0

认证 · 让您身份增值