謐・白
715
作品说明
- 项目类型:住宅公寓
- 项目地点:台湾
- 建筑面积:78.0000㎡
- 项目造价:45.0000万元
- 主案设计师: 方岑宸
- 竣工时间:2021-03-31
- 设计机构:可莫空間設計有限公司
-
项目定位:明淨的純白,鋪展於兩人專屬天地,在灑落一室的陽光中,靜靜煥發恬美質蘊,讓人推開門扉之際,便享有迎面而來的清新氣息,遠離都市塵囂,治癒繁忙工作後的疲憊身心。
老屋良好的原貌,並不需要過度修飾,我們以開放的通透視野,帶進自然採光,搭配簡要的軟裝佈置,表達生活最原初的美好姿態,留下恰到好處的空白,由日後積累的歲月與情感,逐漸豐盈「家」的每個角落。
-
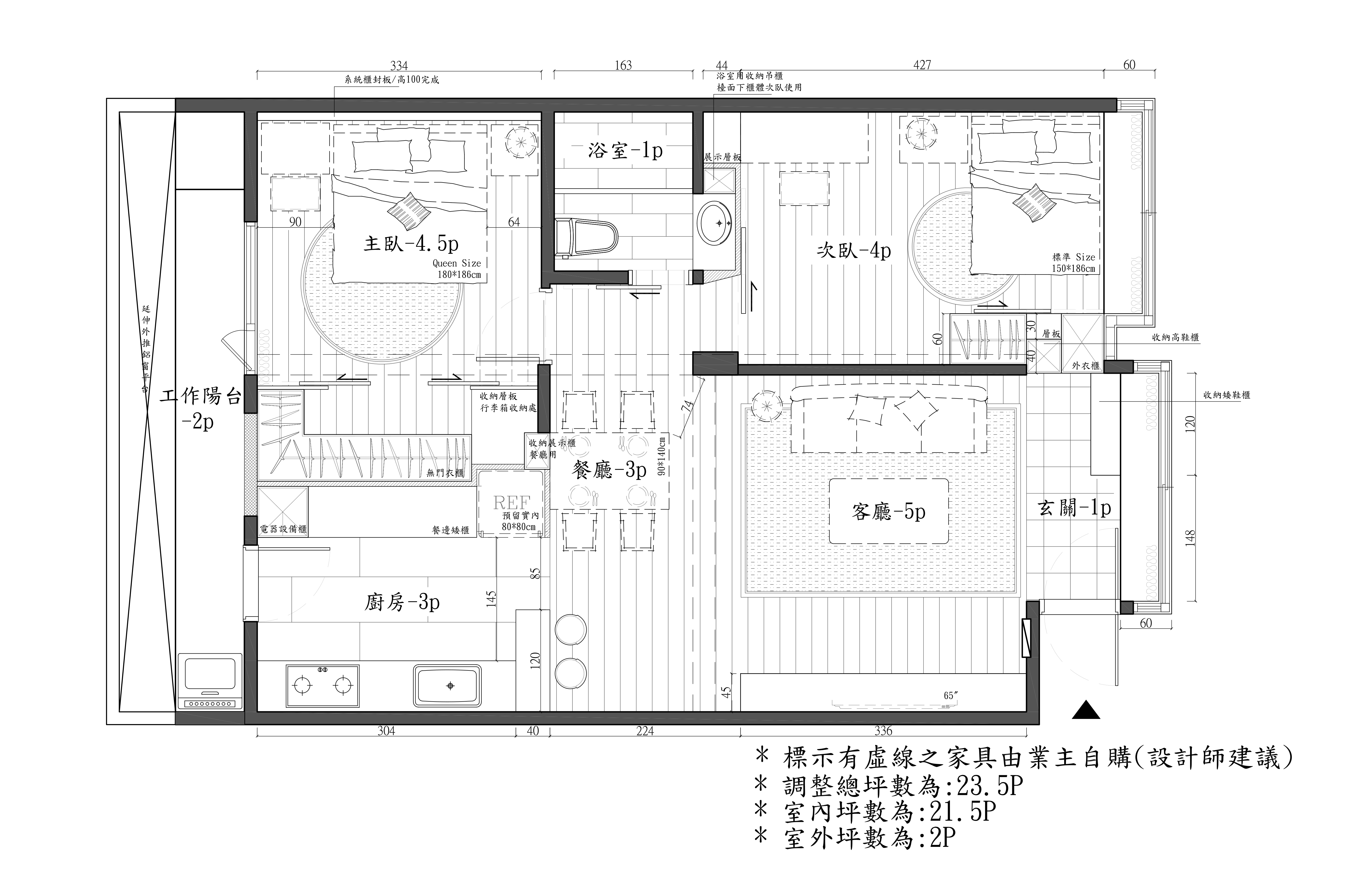
空间意境:考量居家舒適性,室內多鋪設木紋質感的石塑地坪,且於不同區域中,轉換其色調的深淺、冷暖,分別形塑出清新的客餐廳、溫潤的臥室,以及灰調中帶些微復古感的廚房;而玄關與衛浴,則改採幾何花紋六角地磚,豐富淨白的空間基底,增添時尚氣息。
臥室以淺木紋為主色,加以藍色的窗簾、床包等軟裝,帶入暖和活潑的氣息,並善用建物原有的樑柱結構,以框景手法劃分睡眠區與梳妝區,呈現層層遞進的遠、近風景。 -
空间布局:基於建物無壓迫性樑柱的優勢,壁面、天花板等硬裝,皆不額外包覆層板,僅由木工稍加修整,保留舒適的空間高度,給予工作忙碌的業主夫妻,一片得以舒壓的開闊風景;開放式的公領域中,亦善用家配取代隔牆,界定各區位置,讓場域充滿彈性,可隨時依需求調整軟裝品項,轉換多元用途。
玄關與次臥皆將窗戶外推,與室外雨遮切齊,引入良好採光,映照全屋純白帶些許暖灰的色彩基調,呈現乾淨透亮的畫面。
-
设计选材:衛浴的地磚,以幾何圖形與玄關遙相呼應,而洗手台的牆角,則懸掛一盞吊燈,讓壁面間交互反射的發散光影,為潔淨的空間基底悄然增色。
-
用户体验:因應屋主夫妻居家辦公、接待親友等需求,餐廳分作兩區彈性使用。
0
0

认证 · 让您身份增值