倜客无人眼镜商店
1429
作品说明
- 项目类型:零售
- 项目地点:杭州市
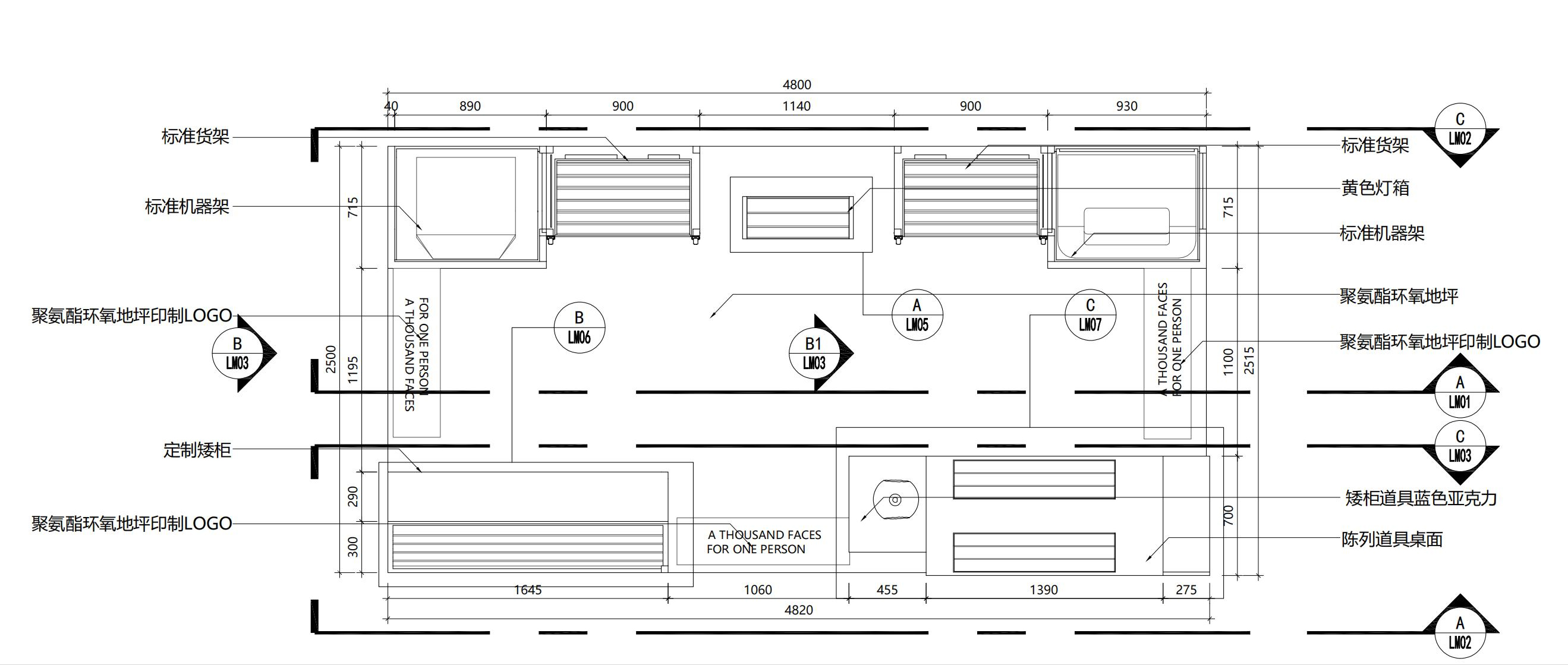
- 建筑面积:30.0000㎡
- 项目造价:15.0000万元
- 竣工时间:2021-05-01
-
项目定位:店铺首店选址于杭州。依托于杭州互联网与人工智能的发展,结合店铺极具未来感与科技感的视觉效果,为当下的传统零售空间提供了新的营销思路与新型交互智能的购物体验,传达年轻,快时尚的消费理念,激发年轻消费者对自我及美感的探索及释放。
-
空间意境:区别于传统零售空间,倜客眼镜旨在打造一个技术驱动型的,专注于为用户提供便捷配镜的眼镜新零售服务。
通过自主研发的无人配镜终端,智能清洗,AR试戴,新零售系统平台,充分利用大数据分析与处理,智能硬件,深度学习,大数据等技术手段,构造无人购物场景。 -
空间布局:店铺设计灵感围绕“科技感与未来感”,通过拉丝不锈钢和彩色亚克力的运用,在视觉上形成黄蓝相间的的色彩冲击,定义整个空间的视觉中心。设计中运用了大量几何形体的穿插,并赋予不同的材质与色彩来营造科技感与未来感空间氛围,让用户体验沉浸式的消费乐趣,在自我试用,选择,消费的同时,穿梭于未来科技实验空间。
-
设计选材:错落摆置的桌面展示系统,俨然生成了一幅“蒙德里安”经典之作。让用户在未来感与科技感并存的模块空间中,体验无外界干扰,自我完成任务的“成就感”。
-
用户体验:穿插设置的半透明亚克力板为整体建筑带来了朦胧幻化的视觉效果。当消费者穿梭其中,视线透过半透明的彩色亚克力板,营造如在未来科技空间中穿梭探索的感觉。
0
0

认证 · 让您身份增值