新城云樾东方体验中心



作品说明
- 项目类型:地产
- 项目地点:台州市
- 建筑面积:600.0000㎡
- 项目造价:1420000.0000万元
- 参与设计师:毛明镜
- 竣工时间:2020-11-09
- 设计机构:上海牧笛室内设计工程有限公司
-
项目定位:每一个城市,总有一个生活的主场,承载起城市的伟大焕新。在温岭,这片优越的繁华区域,正是铁路新区。新城京岭·云樾东方,将城市的繁华、热闹、财富都汇聚一处,谱写出拥有各种可能的美好生活。
室内设计提取建筑的美学法则与元素符号,取法宋代美学风格的自然、古朴、凝练,通过现代的设计手法和技术,重新演绎洞若明火、与世无争的生活意境,素雅大气,又宁静致远。以极简的物理空间,达到无限的意境。 -
空间意境:空间以白色为主色调,搭配黑樱桃木色的装饰面和家居,低调沉稳,又充满简洁、硬朗、利落的线条感与秩序感。软装细节的搭配也耐人寻味,模拟山河大川的立体装饰画,形若湖泊的表面凹凸起伏的镜面装饰,如自然向上生长的桌椅,给理性有序的空间带来自然的随性与灵动,又蕴含着宋代文人生活的风雅与浪漫。以极简的物理空间,达到无限的意境。
-
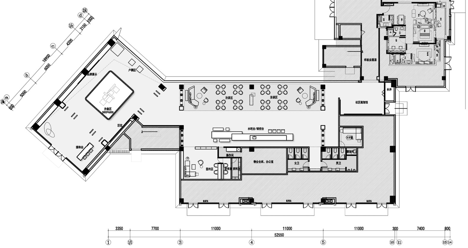
空间布局:示范区建筑为围合形式,精装布局 应考虑结合建筑现有条件进行布置;售楼处建筑入口处以及中央庭院为水景景观,建筑围合面均为玻璃幕墙,考虑将洽谈区以及主要动线放在北侧,运用对景把最好的景观视角给到客户,并保证幕墙面的完整性。
-
设计选材:空间以白色为主色调,搭配黑樱桃木色的装饰面和家居,低调沉稳,又充满简洁、硬朗、利落的线条感与秩序感。软装细节的搭配也耐人寻味,模拟山河大川的立体装饰画,形若湖泊的表面凹凸起伏的镜面装饰,如自然向上生长的桌椅,给理性有序的空间带来自然的随性与灵动,又蕴含着宋代文人生活的风雅与浪漫。
-
用户体验:在体验中心,客户不仅可充分了解未来的居所,也可以领略温岭当地的文化,感受中国宋代美学的风雅之韵。
每一个城市,总有一个生活的主场,承载起城市的伟大焕新。在温岭,这片优越的繁华区域,正是铁路新区。新城京岭·云樾东方,将城市的繁华、热闹、财富都汇聚一处,谱写出拥有各种可能的美好生活。
本项目的建筑设计,通过简约、不失质感的表面设计及纯净、多样的材质组合,营造出一个质朴且多变的空间。大面积通透的玻璃墙面与建筑外部的景观交相呼应,给予人贴近自然的空间体验
室内设计提取建筑的美学法则与元素符号,取法宋代美学风格的自然、古朴、凝练,通过现代的设计手法和技术,重新演绎洞若明火、与世无争的生活意境,素雅大气,又宁静致远。空间以白色为主色调,搭配黑樱桃木色的装饰面和家居,低调沉稳,又充满简洁、硬朗、利落的线条感与秩序感。
。软装细节的搭配也耐人寻味,模拟山河大川的立体装饰画,形若湖泊的表面凹凸起伏的镜面装饰,如自然向上生长的桌椅,给理性有序的空间带来自然的随性与灵动,又蕴含着宋代文人生活的风雅与浪漫。以极简的物理空间,达到无限的意境。
室内设计提取建筑的美学法则与元素符号,取法宋代美学风格的自然、古朴、凝练,通过现代的设计手法和技术,重新演绎洞若明火、与世无争的生活意境,素雅大气,又宁静致远。空间以白色为主色调,搭配黑樱桃木色的装饰面和家居,低调沉稳,又充满简洁、硬朗、利落的线条感与秩序感。

