时光不负


作品说明
- 项目类型:私宅
- 项目地点:眉山市
- 建筑面积:120.0000㎡
- 项目造价:56.0000万元
- 参与设计师:沈晓未 陈亮休 伍红辉
- 竣工时间:2021-02-05
- 设计机构:成都锦上空间装饰设计有限公司
-
项目定位:此项目为全案设计+软装执行,空间要满足使用功能与空间气质的契合。利用空间造型,颜色搭配,材质变化,使整个空间呈现开阔、开放、精致的空间氛围。
-
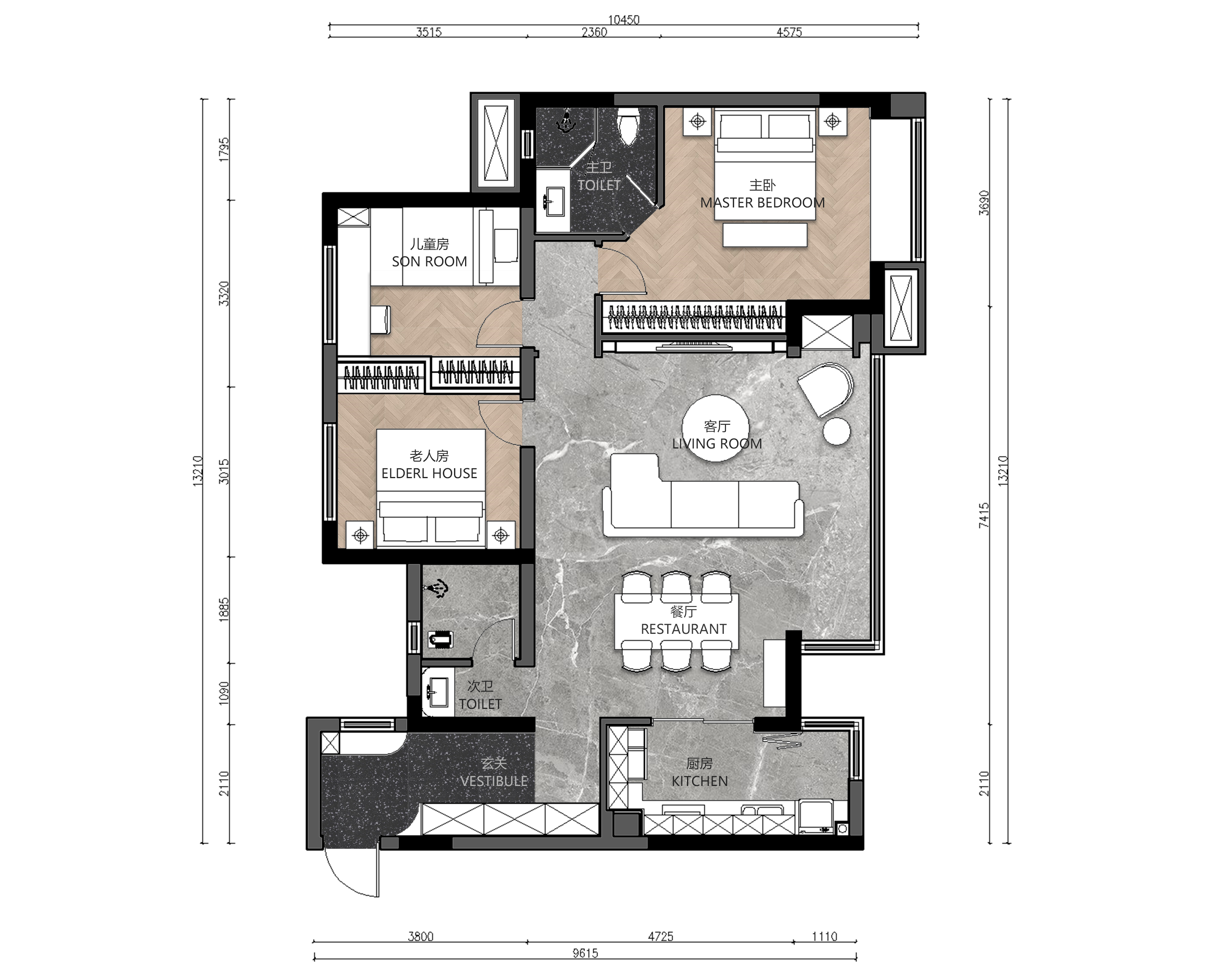
空间意境:为了满足客户日常生活习惯和储物的需求,入户的进门正面换鞋凳做成悬空设计,配合旁边的开放格。右侧做了整墙柜体。为了减轻进门右侧柜体厚度的逼仄感,墙面做成弧形。日常穿的鞋可以放到悬空地面避免空间的杂乱,将空间做了双L型几何体块交地面,利用材质与色彩拉短空间的狭长感受。提升了整个空间的美学气质。
客厅电视墙作为进屋后的主要视觉点,原始结构的左边门洞和右边阳台减力墙空腔,被塑造成左右对称的拱门形,一实一虚。并利用阳台空腔的深度,内设暗隔满足藏酒功能,外侧为饰品陈列格。造型中段实为隔音墙体,灰色局部内凹搭配黑色金属边框,让电视机融入其中。整个客厅更为开阔和干净整洁。
儿童房要满足更多的储物空间,我们将儿童房与老人房之间的墙做‘S’型处理,两个空间共用左右一半墙作为衣柜,榻榻米与书桌书柜连为一体,增加大量储物的同时,为空间带来紧凑有层次的观感。 -
空间布局:客厅空间将阳台、过道与电视墙通过造型形成一个整体且富有变化,使公共空间更加开阔大气。
整个空间的造型大量使用了“曲线”的元素,放大了原有空间的宽敞和通透性,也提升了整个空间的艺术氛围。 -
设计选材:石材、布艺、金属、皮革、木饰面
-
用户体验:喜欢现代略带轻奢质感的风格,公共区域希望开阔大气。
干净利落好做卫生但也不能太简洁,局部要有精致的细节。
储物空间尽量多。主卧要大衣柜,次卧放1.8的床。
哥哥房间要可以看书写作业。
此项目为全案设计+软装执行,空间要满足使用功能与空间气质的契合。利用空间造型,颜色搭配,材质变化,使整个空间呈现开阔、开放、精致的空间氛围。 为了满足客户日常生活习惯和储物的需求,入户的进门正面换鞋凳做成悬空设计,配合旁边的开放格。右侧做了整墙柜体。为了减轻进门右侧柜体厚度的逼仄感,墙面做成弧形。日常穿的鞋可以放到悬空地面避免空间的杂乱,将空间做了双L型几何体块交地面,利用材质与色彩拉短空间的狭长感受。提升了整个空间的美学气质。 客厅电视墙作为进屋后的主要视觉点,原始结构的左边门洞和右边阳台减力墙空腔,被塑造成左右对称的拱门形,一实一虚。并利用阳台空腔的深度,内设暗隔满足藏酒功能,外侧为饰品陈列格。造型中段实为隔音墙体,灰色局部内凹搭配黑色金属边框,让电视机融入其中。整个客厅更为开阔和干净整洁。 儿童房要满足更多的储物空间,我们将儿童房与老人房之间的墙做‘S’型处理,两个空间共用左右一半墙作为衣柜,榻榻米与书桌书柜连为一体,增加大量储物的同时,为空间带来紧凑有层次的观感。
客厅空间将阳台、过道与电视墙通过造型形成一个整体且富有变化,使公共空间更加开阔大气。 整个空间的造型大量使用了“曲线”的元素,放大了原有空间的宽敞和通透性,也提升了整个空间的艺术氛围。
修改后平面
原始平面

