秋露


作品说明
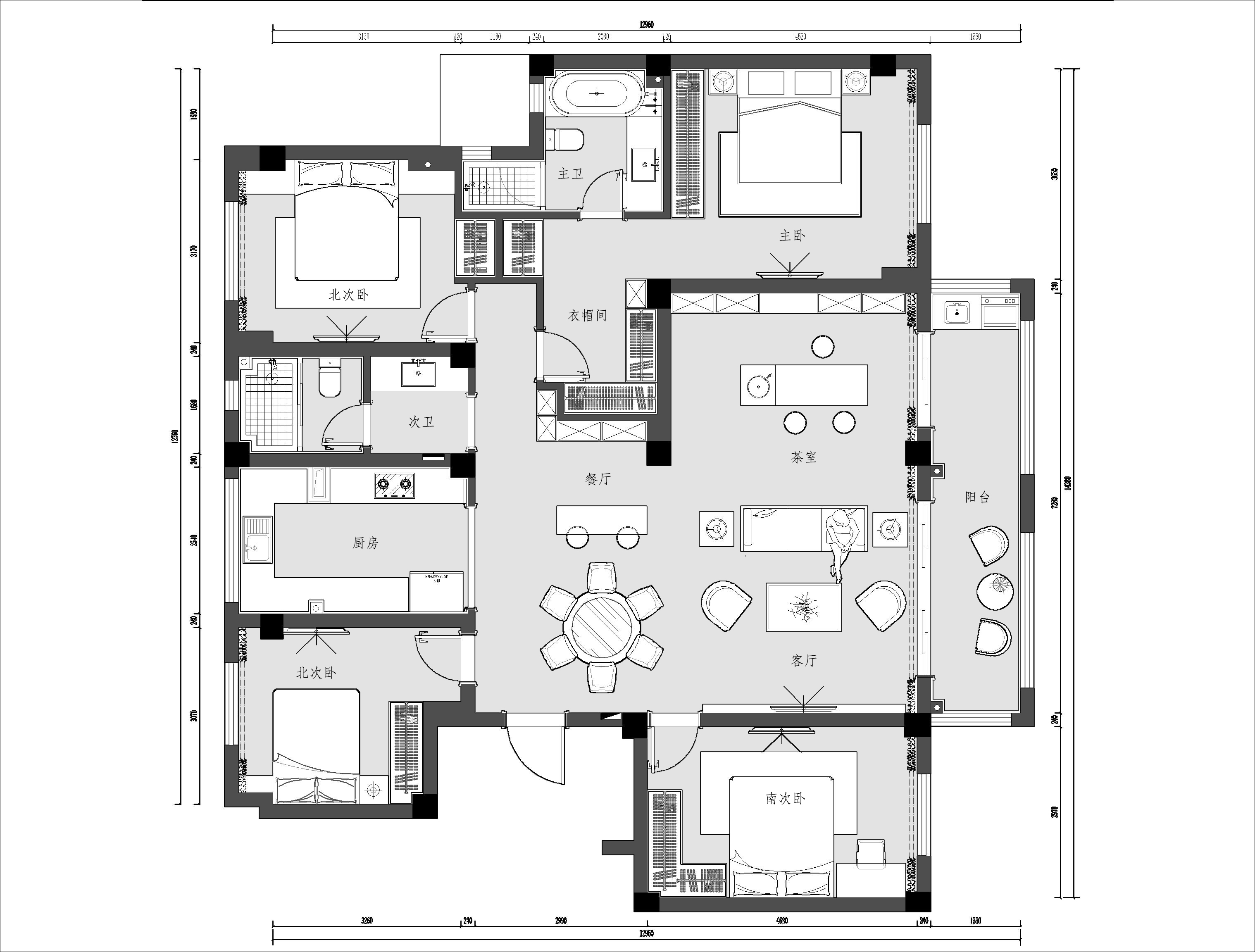
- 项目类型:住宅公寓
- 项目地点:扬州市
- 建筑面积:170.0000㎡
- 项目造价:100.0000万元
- 主案设计师: 王飞
- 参与设计师:王飞
- 竣工时间:2021-05-20
- 设计机构:华浔品味装饰集团
-
项目定位:白露暖秋色,月明清漏中。痕沾珠箔重,点落玉盘空。竹动时惊鸟,莎寒暗滴虫。满园生永夜,渐欲与霜同
本案我们企图将艺术和生活相融合并且推向高处,在生活中享受生命的质感。让人和自然有一个对话的空间。 -
空间意境:本案打破传统的家居设计风格,以宁静的白色为主,加入自然的设计元素,让人追寻身心的纯净。
-
空间布局:破与立,先破再立,将小空间先打破,再重组,本案茶室空间就是破与立的表现,让人与人之间交流更多,更多的体现人文设计。
-
设计选材:本案设计选用了很多新型材料,比如pu石皮,在不破坏自然环境的前提下达到了自然的效果;再比如亚克力,制造了悬浮吧台的效果等等
-
用户体验:本案为全案设计,效果1:1落地,客户相当满意,再整个空间的使用中,吧台和茶台的使用上,客户特别赞赏。

