雅趣 · 私享
35
作品说明
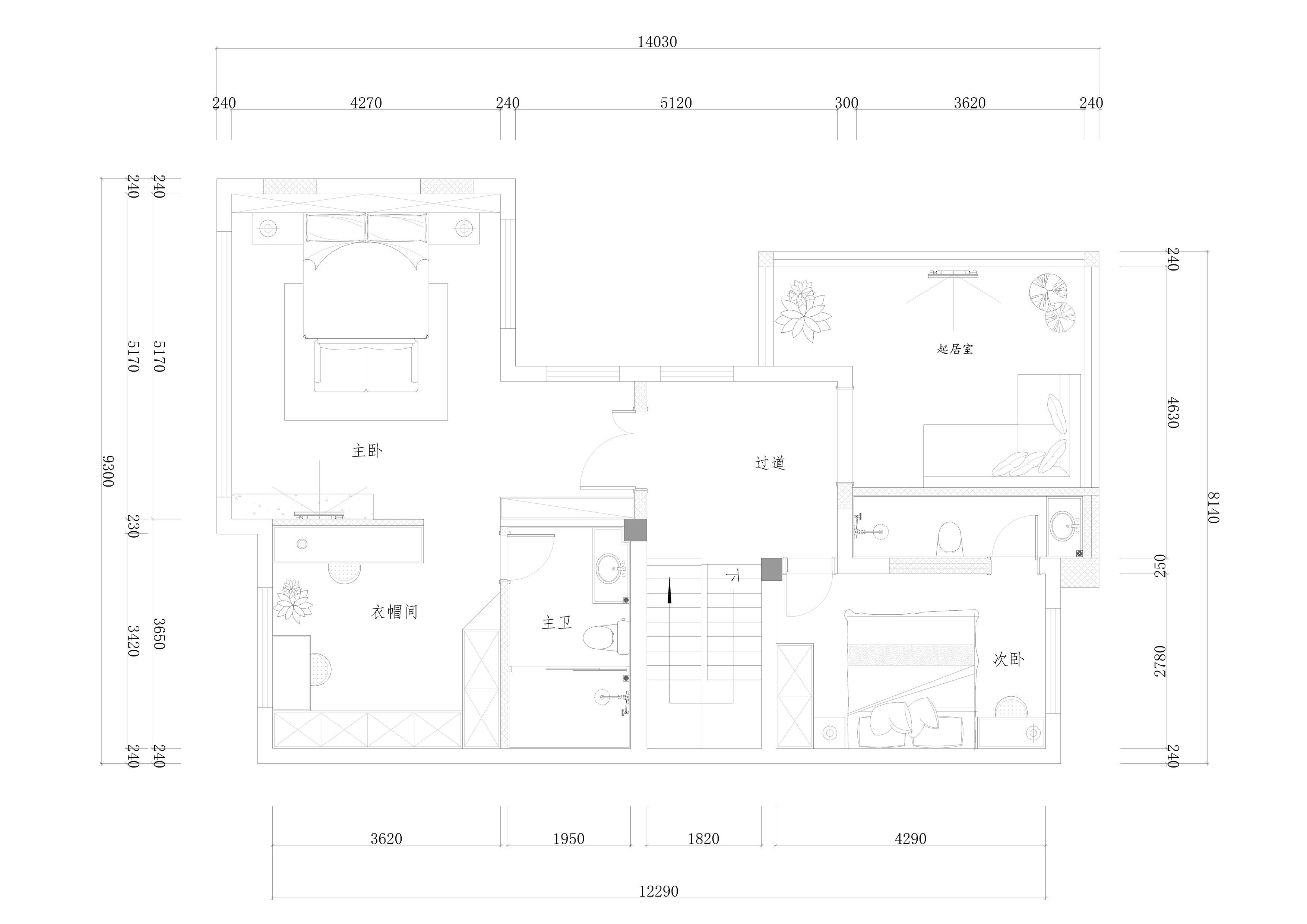
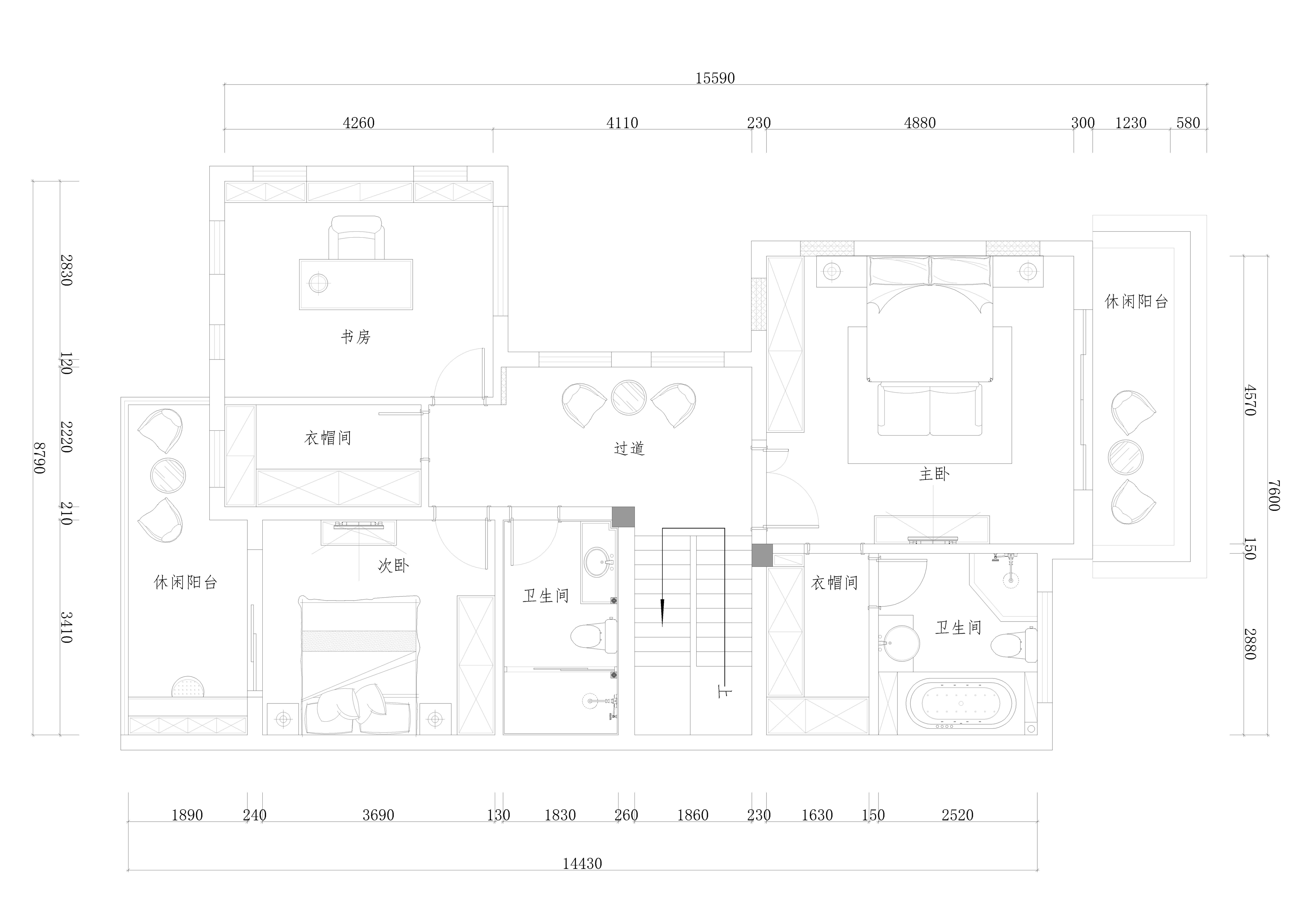
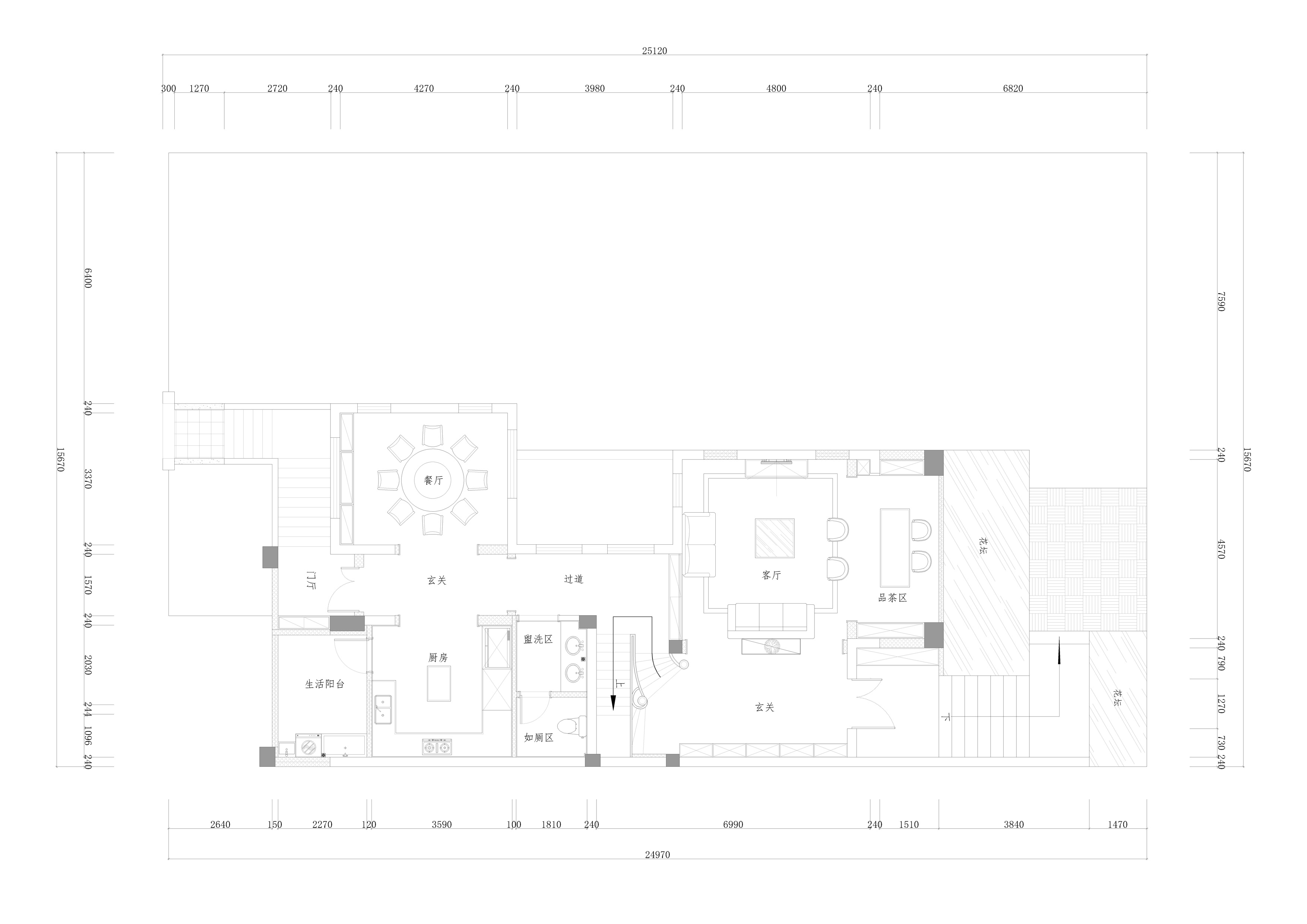
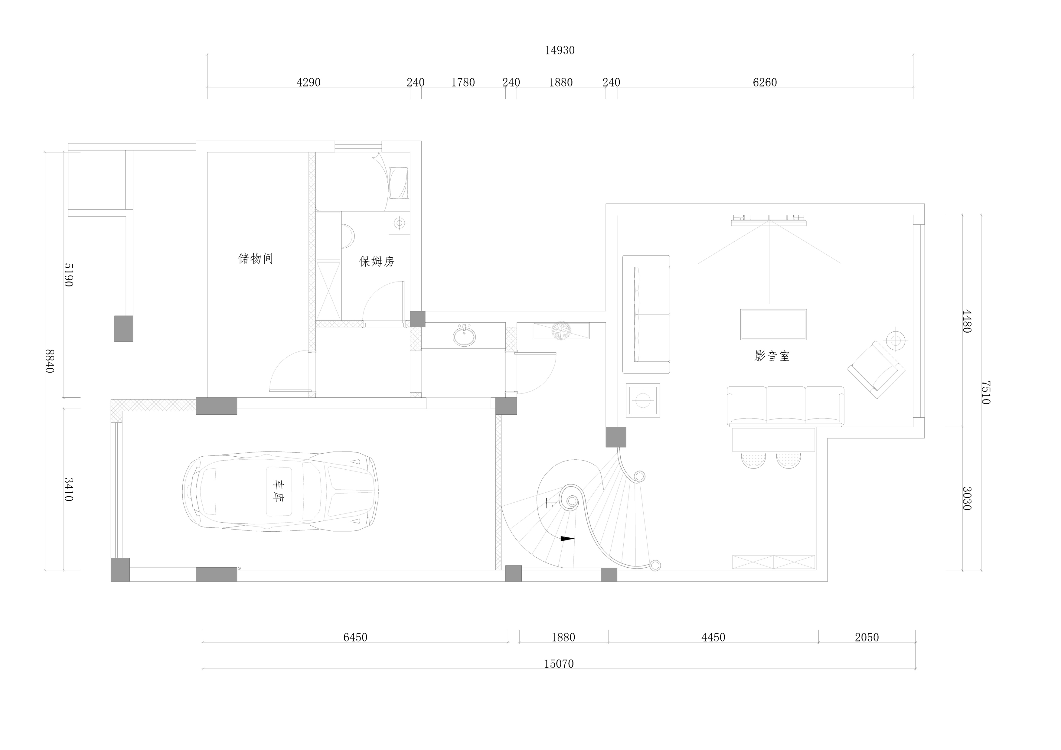
- 项目类型:别墅
- 项目地点:九江市
- 建筑面积:400.0000㎡
- 项目造价:200.0000万元
- 主案设计师: 高明
- 竣工时间:2021-01-12
- 设计机构:鑫居装饰
-
项目定位:SIMPLE WITH SPOTLESS
简净雅致
客厅空间用设计艺术最初的基调色白色墙面,
搭配深色来增强空间立体感,
以简单真实的形态展现功能之外的美学蕴意。
-
空间意境:SPACE COLOR
空间色彩
颜色,空间氛围的营造着者。
光影流转,细微的变化总在不经意之间。
浅紫,灰蓝、靛青,雾粉,
浓妆淡抹间勾勒下重重画意,
赋予空间一丝期许与遐想。
-
空间布局:从空间的形态、构成以及功能布局上,设计师提出了新的设想和实践,室外庭院飞檐翘角、软硬协调的景色,光影在此交互。将美的理解根植于感性形式,通过传统园林的元素组合作用于人的视觉感受。产生一种与简单、纯粹、舒适共鸣的居住环境。
-
设计选材:
METICULOUS SERVICE
细致入微
关注客户感受,尊重客户的情感需求也是设计重点。
为了更好地呈现实用与美兼具的优质环境,
设计师通过色彩、材质、造型、
软装陈设等多重元素的组合,
让空间色彩与质感的平衡产生了和谐的韵律。
多处大面积镜子将视觉进一步拓宽,
渴望打造一个突破原有束缚的自由空间。 -
用户体验:艳丽与素雅,
视觉的上的碰撞协调,
是新中式表达意象境界的视觉语言。
室内空间以黑白色为主基调,
搭配少许藏青、亮橙,
整个空间更加干净自然,
简单不落俗套的生活情调一目了然。
0
0

认证 · 让您身份增值