博瑞双廊合
257
作品说明
- 项目类型:住宅公寓
- 项目地点:深圳市
- 建筑面积:320㎡
- 项目造价:300万元
- 主案设计师: 刘平
- 参与设计师:刘平
- 竣工时间:2021-05-11
- 设计机构:深圳市高定设计工程有限公司
-
项目定位:这是城市中人常常要面临的,一个关于自我与家庭关系的命题:
平日里,彼此忙碌于事业和学业间,家人相伴时间本就很少,故不想在家里设置过多的隔断。
而开放式的家庭空间,如何去兼顾到适合每人独处,沉浸的环境。
我在设计阶段代入了场景体验,构建每一个生活画面,在静与动之间制造平衡点,这个项目应该是温馨而富有品质感的,却也让人感到宁静,安稳。 -
空间意境:遵循简奢原则,以木色作为基调,混合皮革与金属石材作为点缀,以此丰富的层次变化,立体的诠释了生活与现代都市之间的关系,从极简到奢华,从视觉及质感上呈现出多种变化,赋予居室极致的入住体验
-
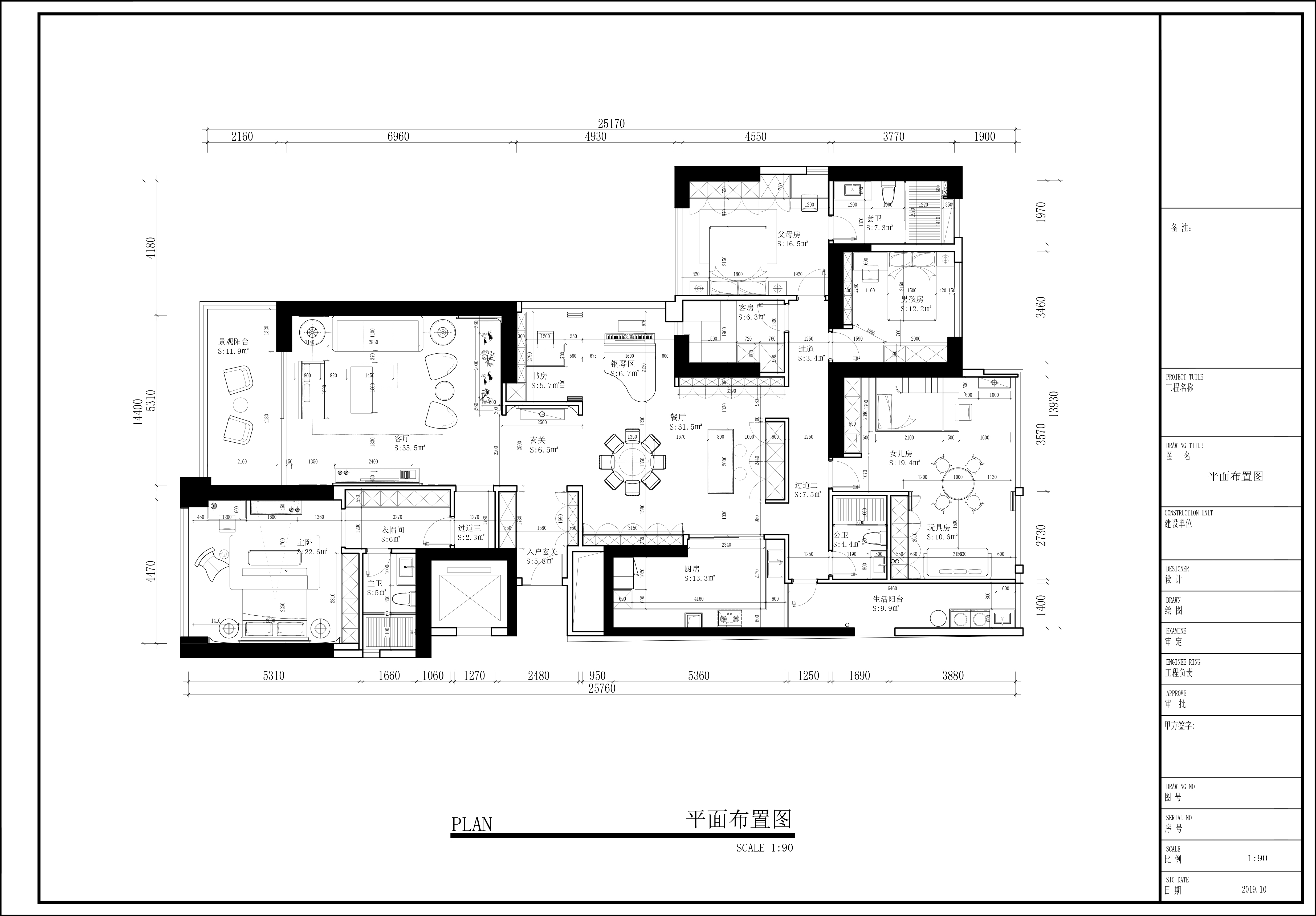
空间布局:1.客餐厅及西厨的开放式设计,更好的增进家人的和谐关系,增加成员的互动性。 2.西厨的高柜设计,划分了餐厅与卧室间的动静区界限,使得卧室具有更好的私密性。 3.步入式的衣帽间,增加空间的实用性。 4.独立洗衣间的配置,更好的分割洁污空间。
-
设计选材:1.墙顶面选用蛋壳光泽白乳胶漆,柔和室内光线。 2.地面采用柔抛的仿大理石瓷砖,提升了空间的品质,低调奢华。 3.墙面与天花的多种材质的结合(木,石材,金属)丰富空间层次的同时,给人一种低调奢华的视觉效果。
-
用户体验:业主非常满意,非常好的一次设计体验
客厅:以现代都市生活为审美考量,构建现代家庭生活的开放式格局。金属与皮质的碰撞,将低调奢华的格调渗透至空间各处,在彰显卓越工艺的同时,予人精致优雅的聚会氛围。
客厅:内敛与绅士般的沉稳是会客厅的写意,重视空间线条和比例的纯粹,精于细节和材质的组合。
黑色的镜面与大理石的拼接,拉伸空间的视觉体验
悬吊的大理石装置,俩只活泼的小鹿,彷如跳动的旋律
餐厅 大面积开阔的空间,将餐厅与吧台一以贯之,增加空间的互动性,搭配简洁而不失品质的餐椅与精致大理石餐桌,恰到好处的材质对比,让整体空间保持统一调性。
玄关吊装了整块大理石,独特的亚马逊绿为空间增添一抹生态。同时作为左右空间的分隔枢纽,丰富视觉效果。 如叶状的黄白色吊灯。寓意着秋冬俩季。天然的石材运用,人与自然的空间结合之类的。
书房:惬意的下午茶时间,沉浸在阅读里,空间与识海贯穿,留下温馨的记忆。悬浮的书房设计,为居者打造一个静谧的独处空间
主卧:遵循简奢原则,以木色作为基调,混合皮革与香槟色作为点缀,以此丰富的层次变化,立体的诠释了生活与现代都市之间的关系,从极简到奢华,从视觉及质感上呈现出多种变化,赋予居室极致的入住体验。
父母房:木色是空间的主要色调,金属的运用增添了空间的品质感
男孩房:这里是少年释放天性的热爱之地。和谐的色彩搭配与创意的造型,时尚且趣味,迸发未来的无限可能
女孩房:元气粉色调,搭配可爱的ZAZABABY的玩具,打造自由、灵动的成长空间。城堡床承载着公主童话般的故事。以女孩与动物的形象营造出一种童话情境,动静相宜,鲜活生动
平面布置图
0
1

认证 · 让您身份增值