被童趣和笑声包围的六口之家


作品说明
- 项目类型:住宅公寓
- 项目地点:厦门市
- 建筑面积:148.0000㎡
- 项目造价:45.0000万元
- 主案设计师: 张燊
- 参与设计师:张燊
- 竣工时间:2021-07-08
-
项目定位:这是我见过最有爱的一个家庭了,业主有两个活蹦乱跳的女宝,两只温顺的小美短和一双非常和蔼的父母,整个家里到哪都是充满了笑声。业主希望他们未来的家,一定要有趣的,可以不用太规矩,有色彩但是不要显得太乱
-
空间意境:我们在色彩上没有运用太夸张的色彩,而是大面积采用水泥色、白色及弧形元素来进行底色的处理,再用软装的设计来补充业主需要的童趣和色彩。由于梁位都比较低,所以我们在房屋的结构和细节上也做出了一些独特的改变,多彩和童趣的设计贯穿了整个空间。
-
空间布局:利用现在热泵烘干机的特点,弱化了阳台披晒衣服的功能,把传统的阳台利用起来做了全家人的运动区。
-
设计选材:主材:水磨石瓷砖、线性灯、百色熊进口环保涂料、嵌入式洁具
-
用户体验:客户已入住,两个宝贝特别喜欢。
进门迎面而来的是一个欢迎看家的机器人,肚子里面都是小朋友的小宝藏。门口有足够的空间置放鞋柜,所以就没有把鞋柜带到屋子里面来,尽量大的释放屋内空间。
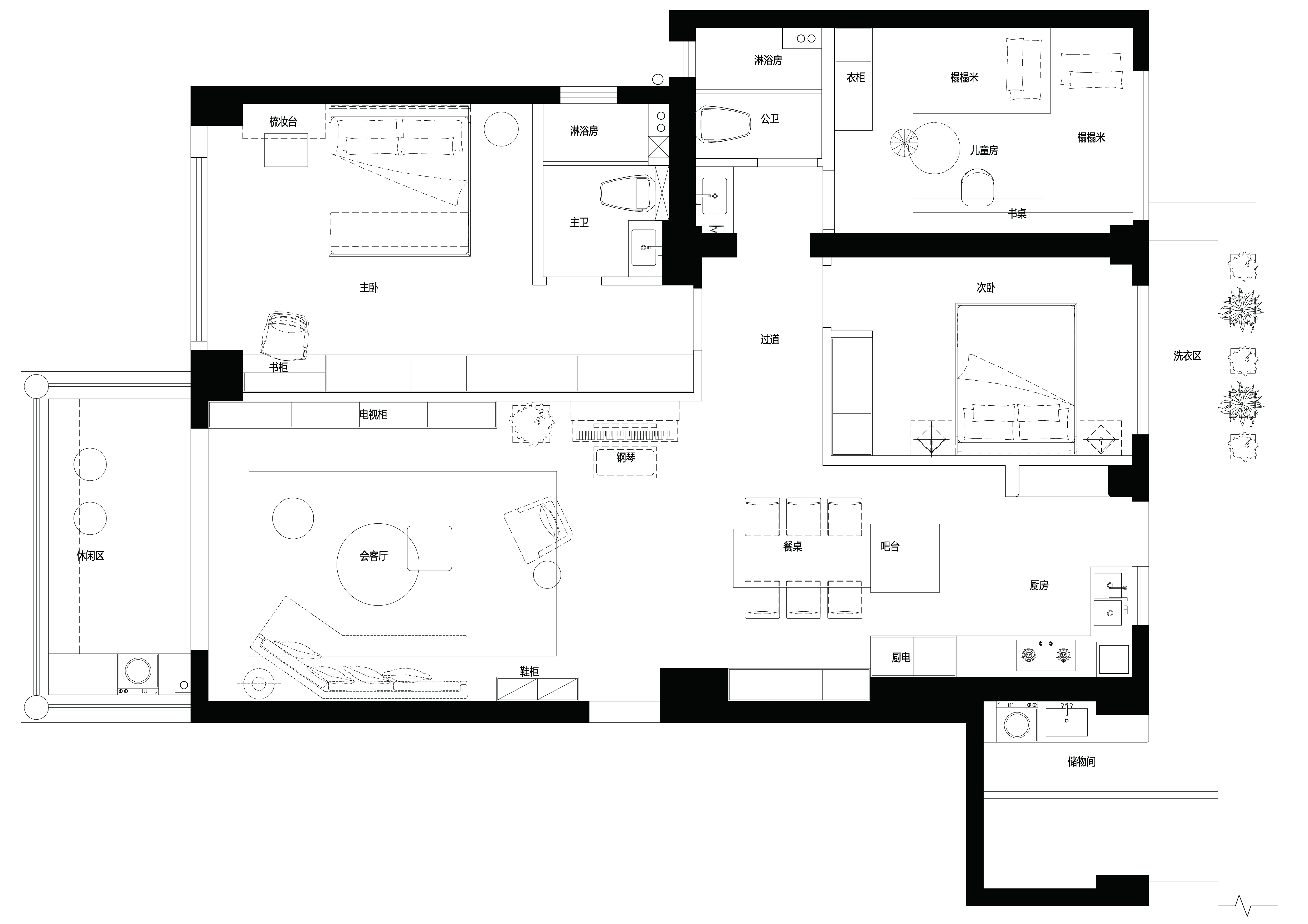
改造前的客厅,光线被遮住了一半,梁位也特别的压抑。首先我们通过双弧形的吊顶设计,解决了原来的梁位压抑的缺陷。电视墙方面,用了一整面的收纳柜进行组合,把两个宝贝的所有玩具都进行了整理。把原来客厅的推拉门进行了拆除,生活阳台扩大并变成了客厅的一个组成部分,把光线引了进来
我们把厨房,餐桌和中岛结合,让餐厅,中厨和西厨之间形成了良好的动线关系,同时又可以提升公共区域的空间感。
改造前的厨房显得非常杂乱,推拉门直接把餐厅的光线挡住了一半。我们柜体上用白色烤漆复古压纹搭配浅色系水磨石砖,嵌入式的双门冰箱让改造后的厨房显得更加的干净和整洁。
这是两个女宝的房间,原来想说做上下铺的设计,后来一起讨论担心上面的小朋友会比较压抑。于是我们就用了一个小窗做了个小隔断,同时又能置放东西。现在她们最爱的就是钻这个小窗户,有点惊喜。

