厦门宽窄火锅专门店(集美店)



作品说明
- 项目类型:餐饮
- 项目地点:厦门市
- 建筑面积:200.0000㎡
- 项目造价:500000.0000万元
- 主案设计师: 张燊
- 参与设计师:张燊
- 竣工时间:2021-06-06
- 设计机构:厦门龙铠装饰工程有限公司
-
项目定位:项目的定位,锁定人群为年轻90-00后的学生群体,结合时下年轻人喜欢喜欢打卡拍照的特点,打造一个既有高级感又可以很潮的火锅店。
-
空间意境:空间打造的是以“太空”主题为元素的火锅店,门口有作为IP形象的宇航员,每家店也都有特地调色定制的夯土并有特定的霓虹灯元素。
-
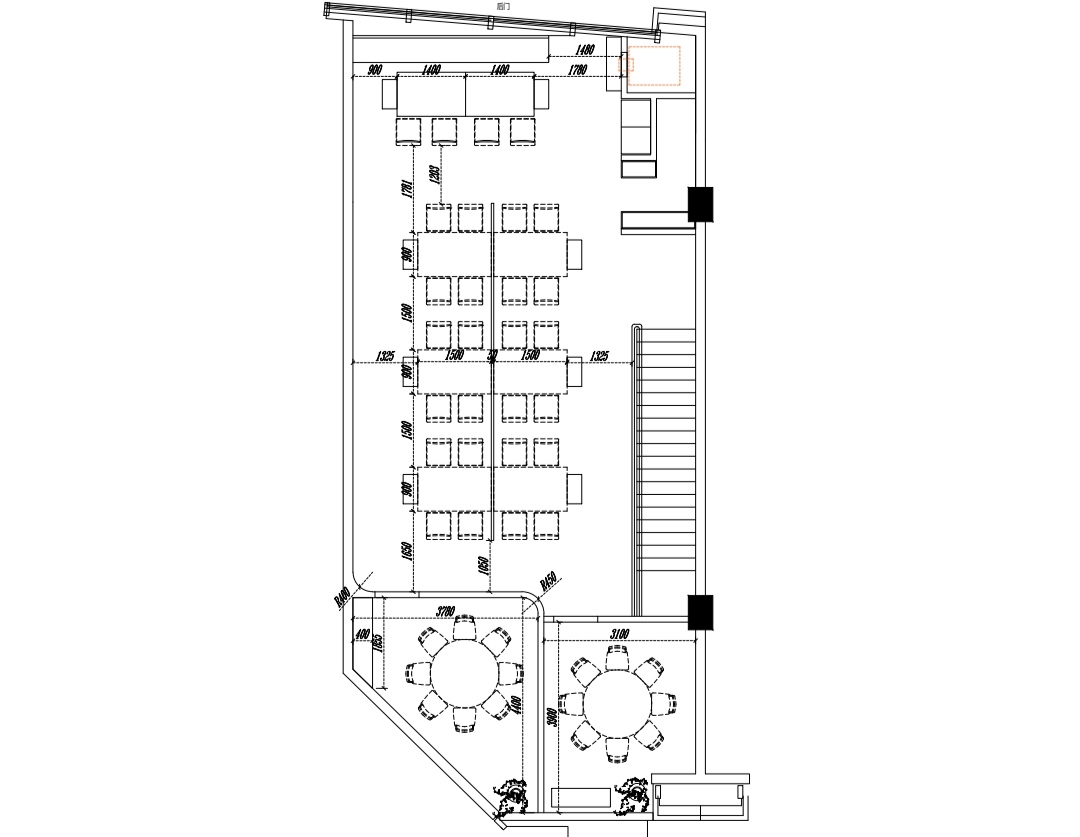
空间布局:舍弃了原来火锅店拥挤而杂乱的缺陷,把桌子延长,公共空间也放大,设计了多个打卡拍照店用于线上推广。
-
设计选材:设计选材:霓虹灯、清水混凝土、太阳纹玻璃砖
-
用户体验:目前在大众点评厦门区域火锅环境榜及热度第一名

