华侨城原岸别墅L13-X户型
1323- 项目类型:别墅
- 项目地点:武汉市
- 建筑面积:500㎡
- 项目造价:850万元
- 主案设计师:张纯
- 参与设计师:余宏伟
- 竣工时间:2021-07-24
- 设计机构:中国 . 武汉 . 出意汇设计机构
一楼会客厅空间设计↑
不受任何风格及元素的拘泥,我要我的个性!我的气质你模仿不了!
ChuiYiHui Design In China 中国 .出意汇设计
厨房餐厅空间设计↑
阴阳和合,水火既济!
ChuiYiHui Design In China 中国 .出意汇设计
楼梯间空间设计↑
步步高升,一步一个脚印,走稳自己的人生!
ChuiYiHui Design In China 中国 .出意汇设计
一楼会客厅空间设计↑
不受任何风格及元素的拘泥,我有我的气质!
ChuiYiHui Design In China 中国 .出意汇设计
一楼会客厅平面设计↑
小房子,大格局!
ChuiYiHui Design In China 中国 .出意汇设计
二楼会客厅空间设计↑
静!
ChuiYiHui Design In China 中国 .出意汇设计
二楼会客厅空间设计↑
ChuiYiHui Design In China 中国 .出意汇设计
二楼会客厅空间设计↑
ChuiYiHui Design In China 中国 .出意汇设计
二楼卧室空间设计↑
ChuiYiHui Design In China 中国 .出意汇设计
二楼卧室空间设计↑
ChuiYiHui Design In China 中国 .出意汇设计
二楼卫生间空间设计↑
ChuiYiHui Design In China 中国 .出意汇设计
二楼卫生间空间设计↑
ChuiYiHui Design In China 中国 .出意汇设计
二楼卧室空间设计↑
ChuiYiHui Design In China 中国 .出意汇设计
二楼卧室空间设计↑
ChuiYiHui Design In China 中国 .出意汇设计
二楼卧室空间设计↑
ChuiYiHui Design In China 中国 .出意汇设计
二楼会客厅平面设计↑
小房子,大格局!
ChuiYiHui Design In China 中国 .出意汇设计
负二楼会客厅平面设计↑
活跃设计元素,变化空间风格!
ChuiYiHui Design In China 中国 .出意汇设计
负二楼会客厅平面设计↑
活跃设计元素,变化空间风格!
ChuiYiHui Design In China 中国 .出意汇设计
主卧卫生间空间设计↑
光而不耀!
ChuiYiHui Design In China 中国 .出意汇设计
主卧卫生间空间设计↑
光而不耀!
ChuiYiHui Design In China 中国 .出意汇设计
负二楼会客厅平面设计↑
小房子,大格局!
ChuiYiHui Design In China 中国 .出意汇设计
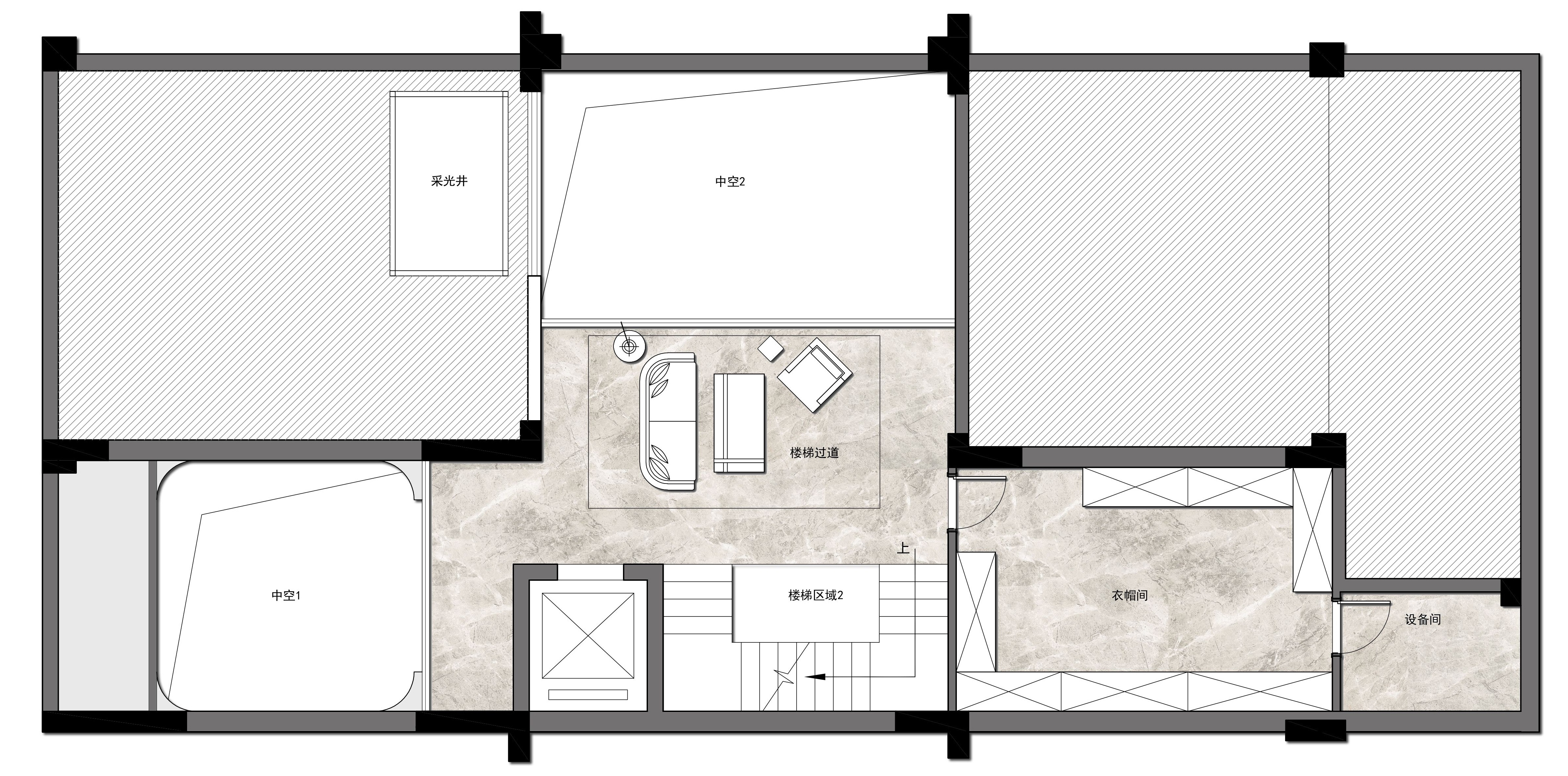
负一楼会客厅平面设计↑
小房子,大格局!
未完待续........
ChuiYiHui Design In China 中国 .出意汇设计
三楼会客厅平面设计↑
小房子,大格局!
未完待续........
#张纯设计 #室内设计 #装修案例 #家居美学 #软装定制#侘寂风 #餐厅设计 #卧室设计 #别墅设计 #户型改造 #装修记录 #客厅设计 #生活日常#灯光 #家装细节 #电视背景墙 #悬浮吊顶 #现代简约 #无主灯
ChuiYiHui Design In China 中国 .出意汇设计

认证 · 让您身份增值