华侨城原岸T1户型简约软装设计方案


作品说明
- 项目类型:住宅公寓
- 项目地点:武汉市
- 建筑面积:160㎡
- 项目造价:45万元
- 主案设计师:张纯
- 参与设计师:余宏伟
- 竣工时间:2021-09-13
- 设计机构:中国 .武汉.出意汇设计机构
华侨城原岸高层T1户型29楼外景视觉,站在阳台上,一览无遗的东湖美景尽收眼底!
ChuiYiHui Design In China 中国 .武汉.出意汇设计机构
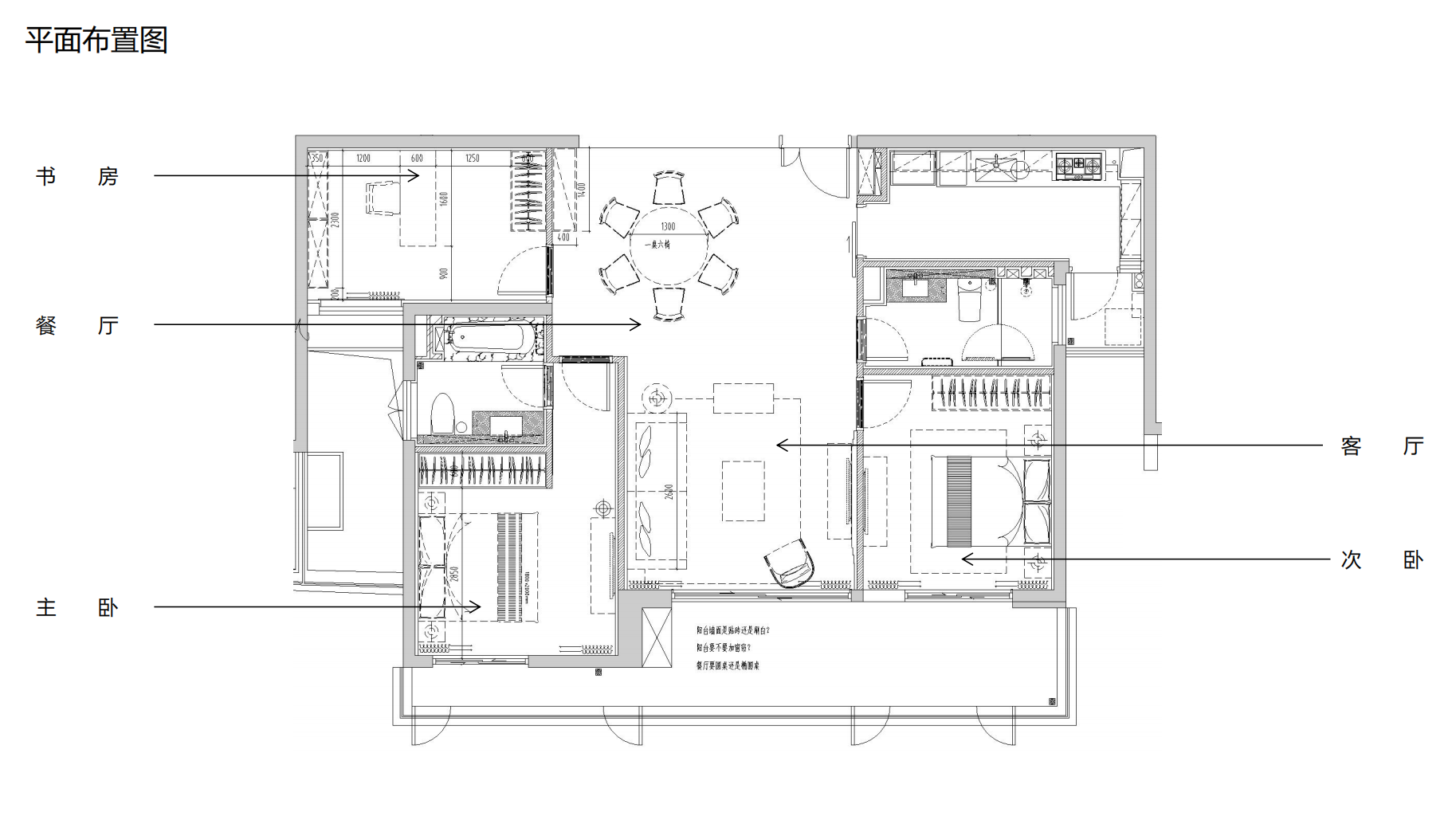
原有精装平面布局图
ChuiYiHui Design In China 中国 .武汉.出意汇设计机构
原有精装效果展示
ChuiYiHui Design In China 中国 .武汉.出意汇设计机构
原有精装效果展示
ChuiYiHui Design In China 中国 .武汉.出意汇设计机构
餐厅软装设计效果展示
ChuiYiHui Design In China 中国 .武汉.出意汇设计机构
客厅软装设计效果展示
ChuiYiHui Design In China 中国 .武汉.出意汇设计机构
主卧软装设计效果展示
ChuiYiHui Design In China 中国 .武汉.出意汇设计机构
书房软装设计效果展示
ChuiYiHui Design In China 中国 .武汉.出意汇设计机构
次卧软装设计效果展示
#室内设计 #装修案例 #家居美学 #软装定制#侘寂风 #餐厅设计 #卧室设计 #别墅设计#户型改造 #装修记录 #客厅设计 #易夫设计
ChuiYiHui Design In China 中国 .武汉.出意汇设计机构