华侨城原岸Y4户型


- 项目类型:住宅公寓
- 项目地点:武汉市
- 建筑面积:150㎡
- 项目造价:120万元
- 主案设计师:张易夫
- 参与设计师:余宏伟、赵博文
- 竣工时间:2021-06-23
- 设计机构:中国 .武汉.出意汇设计
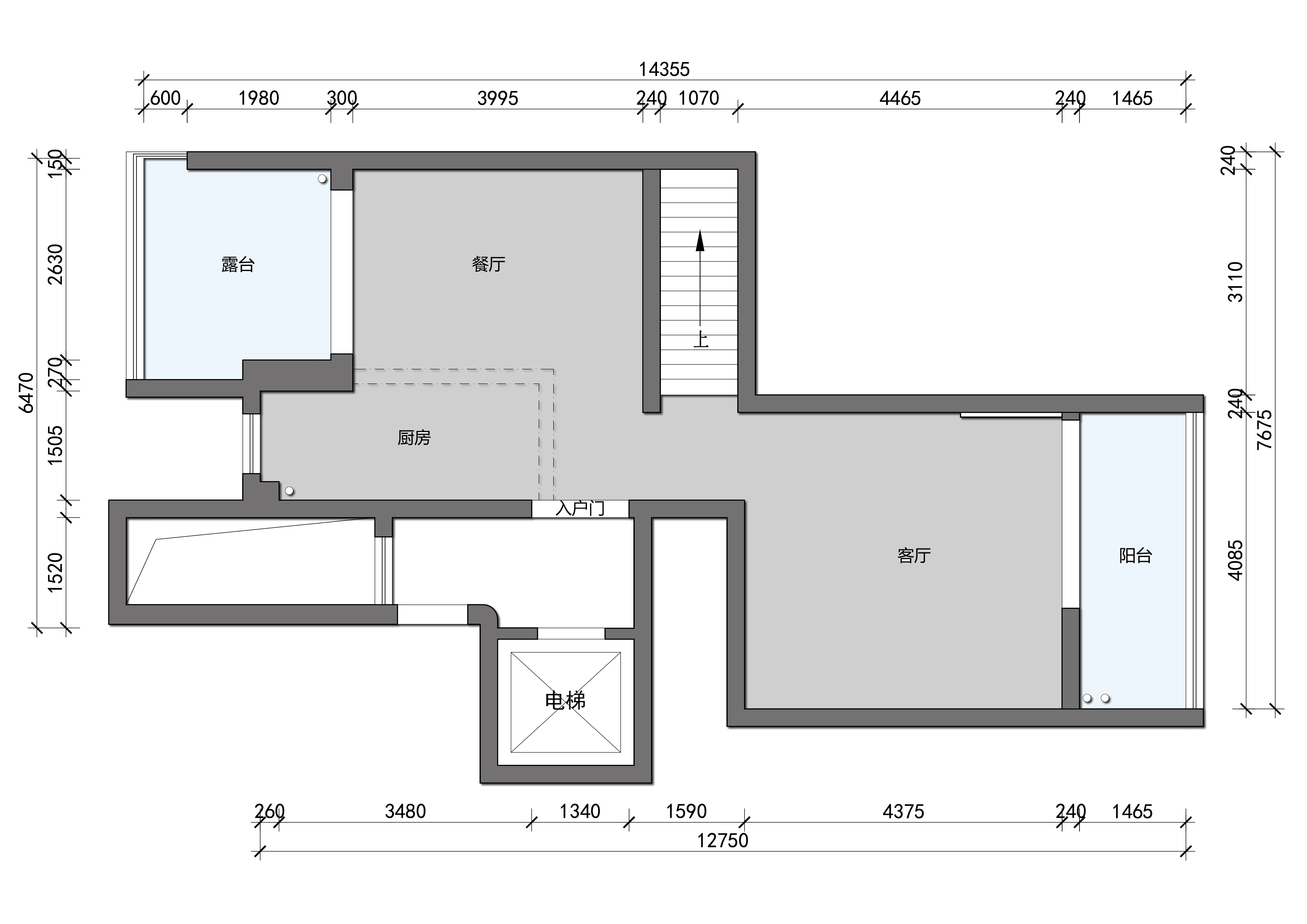
一楼平面结构设计思路分析:
1.入户左边是厨房,让入户显得非常拥挤,所以这个地方就直接取消了厨房,靠着墙打了一整排的鞋柜,然后把餐厅左边的露台改成厨房,让入户更开敞,让餐厅更大气,让厨房明亮,让楼梯更通透!让整体更协调!
2.楼梯这个地方的光线不是特别好,咱们就拆掉了餐厅和楼梯之间这一堵墙,让光线从厨房透过来,楼梯扶手做成了屏风的感觉,楼梯踏步做成了感应式的网红楼梯!
3.客厅空间我们拆掉了到阳台去的这一堵墙,让整个阳台和客厅形成一体,封闭阳台时尽量用整块落地玻璃,坐在客厅可以直接看到外面的景色!
ChuiYiHui Design In China 中国 .出意汇设计
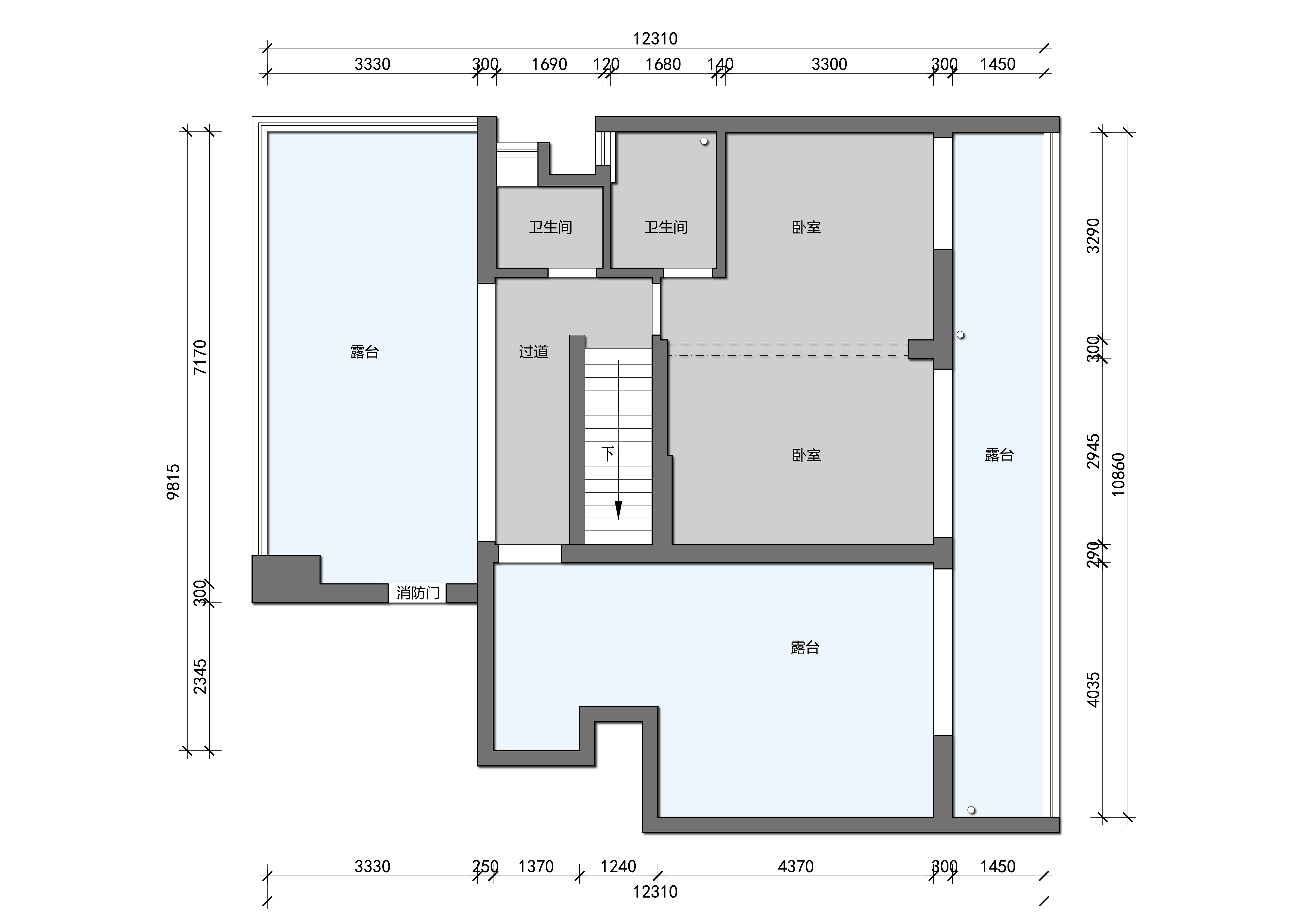
二楼平面结构设计思路分析:
1.原结构整套房只有两个两个卧室,咱们把客厅正上方的露台改造成一个卧室当成主卧,二楼的一个长条形大阳台咱们把它分成三份分别和三个卧室结合在一起,这样三个卧室都有了不小的空间。
2.原始的两个卫生间放在一起每一个空间面积太小,满足不了最基本的需求所以我们把它合成了一个卫生间,把多余的空间放进卧室,然后我们在主卧的位置又重新增加了一个卫生间,这个卫生间的下水问题,让我们花了很大的心思,最终还是得到圆满的解决!
3.洗衣晾晒的空间,我们把他考虑在卫生间外边的这个大露台上面,这个露台他不是一个绝对的露台,有局部的位置是有顶的,然后在洗衣机的位置做一些保护就可以了。
ChuiYiHui Design In China 中国 .出意汇设计
一楼原始平面结构
ChuiYiHui Design In China 中国 .出意汇设计
二楼原始平面结构
这个是我2019年5月份完成的一套房设计,第一次进入该房屋的感受就是这不像500多万的房子,除了是一个湖景房找不到其它任何优势,整套房子看起来像一个两室两厅多了个楼梯,并且每一个房间都非常小,一楼没有卫生间,二楼虽然说有两个卫生间,但是每一个卫生间连最基本的需求都不能满足!还好的是它有三个露台,两个阳台,所以接下来我们就在阳台和露台上面做文章!
ChuiYiHui Design In China 中国 .出意汇设计
客厅空间设计
万物相生相克之所以和谐是因为有度,极则生变!人与社会环境的和谐也在于各自有度!我们今天长期生活的室内空间设计更应该有度!这里的度主要体现在空间物质的比例以及色彩的协调性!
ChuiYiHui Design In China 中国 .出意汇设计
餐厅空间设计
该方案有两种风格,一楼为现代简约风格,二楼为小美式风格;扩大后餐厅让入户的视线更开阔!
ChuiYiHui Design In China 中国 .出意汇设计
主卧室空间设计
二楼小美式风格;主卧标准的小美式风格的调性,灯光在空间中起到至关重要的作用!
ChuiYiHui Design In China 中国 .出意汇设计
次卧室空间设计
标准的小美式风格的调性!
ChuiYiHui Design In China 中国 .出意汇设计
次卧室空间设计
标准的小美式风格的调性!
ChuiYiHui Design In China 中国 .出意汇设计
厨房空间设计/延续一楼现代简约风格
ChuiYiHui Design In China 中国 .出意汇设计
厨房空间设计/延续一楼现代简约风格
ChuiYiHui Design In China 中国 .出意汇设计
卫生间设计/延续一楼现代简约风格结合二楼小美式风格
ChuiYiHui Design In China 中国 .出意汇设计
卫生间设计/延续一楼现代简约风格结合二楼小美式风格
ChuiYiHui Design In China 中国 .出意汇设计
卫生间设计/延续一楼现代简约风格结合二楼小美式风格
#室内设计 #装修案例 #家居美学 #软装定制#侘寂风 #餐厅设计 #卧室设计 #别墅设计#户型改造 #装修记录 #客厅设计 #易夫设计
ChuiYiHui Design In China 中国 .出意汇设计
湖北省武汉市出意汇设计有限公司出品
华侨城原岸洋房Y4户型5楼外景视觉
外景确实很美,忍不住分享出来!
ChuiYiHui Design In China 中国 .武汉.出意汇设计机构