锐画空间
1415
作品说明
- 项目类型:办公
- 项目地点:郑州市
- 建筑面积:500.0000㎡
- 项目造价:500.0000万元
- 参与设计师:设计总监:黄云斌、宋磊
- 竣工时间:2018-09-26
- 设计机构:河南锐画装饰设计有限公司
-
项目定位:在图像技术高速发达的今天,我们对空间的理解方式逐渐扁平化:空间以平面的形式被映像在我们的视网膜上,再经过简单的文字描述,我们对一个空间的了解就此结束。但空间的设计过程绝不是如此——除基础的平面设计外,一个空间中的每个细节都需要我们仔细斟酌,反复实验才能得出最优方案。《锐画空间办公室》是我们团队每日工作、思考的地方,因此,我们期望她是令人舒适又助于效率的空间;她是我们团队会客时的主要使用场所,因此,我们期望她是能向访客诉说故事的空间。我们以这两大需求点出发,进行了无数次的方案推导、深化,做出了她最优的平面方案。后期在模型空间及在感受实际现场后我们再耐心打磨其细节,她的美丽初露端倪。由此我们也达成了最初的设想目标:舒适而效率,简单而灵动。
-
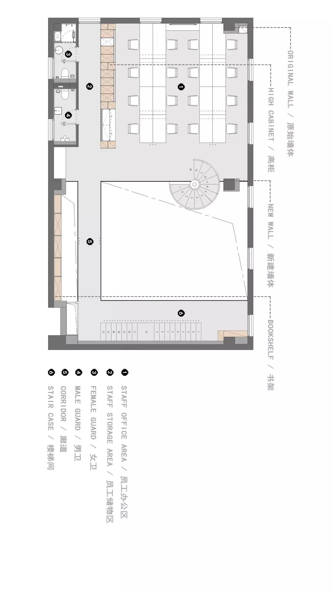
空间意境:办公空间里的休闲区域是令人自在,却又给人些界限、仪式感的。而利落的挑空给了休闲区足够的仪式感:与顶面齐高的三列超长窗户将一天里最好的阳光全部掬入其间——正午时骄横的日光透过纸幕后温顺的匀在空间,头顶通透的玻璃吊灯散发出些许暖意,把马醉木照的影绰;与其相对的整面书架在暖色灯带的映衬下显露出温润大气;通往二楼的黑色旋转楼梯外面板含蓄的发着金属特有的冷光,大理石纹的台阶在灯带的托捧下拥有了悬浮的精致感,给人以绝佳的使用体验。
经过员工办公区后,再通过一条半包围的长走廊就可到达通向三楼的楼梯入口。走廊右侧近乎通顶的书架(展示柜)在灯带的配合下给了访客无与伦比的观感体验,而出现在行走途中的黑色竖杆赋予了走廊线条的序列感,使此处富于变化的同时也给人留下一种空间在继续向上生长的无限想象——长走廊的设置给了访客足够长的回味时间,它的存在也达成了我们希望空间能诉说自我的最初期望。 -
空间布局:从三层楼梯间的天窗投射下的天光满足了白日里的照明需求,侧边的低位照明则用于夜间的光补充。白色楼梯间窄高而通透,营造出高级简单的氛围;大理石纹的阶面柔和融入进纯白色空间,给此处艺术性的空间增加了趣味。三层空间延续了整体空间的中性简约感:整面的落地窗的设置极大的延伸了空间感,直线简洁,弧线富于柔和变化;木质温暖,石纹材料带来精致冷感——而所有元素的克制运用得以被浅灰的色调和谐。灯光进一步营造出温暖、精致的通透氛围,最终成为访客与设计师无障碍沟通的交流场所。在这里,深色和浅色互衬,纯净的视觉感受是永恒的主旋律。
夜阑更深,星点光晕给了空间刚好的安静气氛。从室内看窗外院,在城市中也能感受到山静日长的美好。暖光孱弱,绿植盎然,生机与宁静并存。刚下过暴雨的地面留存着镜子般的反射,脚下就也成了浪漫。 -
设计选材:绿色人居
-
用户体验:作为设计总监,也是此案的甲方,能为自己的工作伙伴们提供一个共同的优质办公场所,很荣幸也很开心。
0
0

认证 · 让您身份增值