【Y3】买手店



作品说明
- 项目类型:展示
- 项目地点:郑州市
- 建筑面积:200.0000㎡
- 项目造价:120000.0000万元
- 参与设计师:设计总监:宋磊
- 竣工时间:2019-10-04
- 设计机构:河南锐画装饰设计有限公司
-
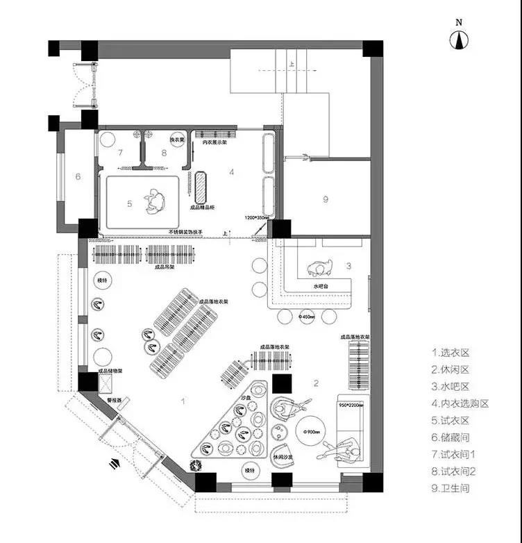
项目定位:当代艺术的丰富蕴意与空间相遇
-
空间意境:混搭的购物空间承托了服饰本身的时尚与创新,也为顾客带来了一次轻松愉悦的购物体验,将不同风格的服饰有序排列。透过角度、结构和材质之间的碰撞,组合成具有品质感的购物空间。
-
空间布局:总以为这样的珍贵,需要一个明亮透顶的环境来映衬它,但光芒太足反而被湮没其中。灰暗里的一丝丝光就足以让它绽放,成为周围唯一的闪耀。透过角度、结构和材质之间的碰撞,组合成具有品质感的购物空间。
-
设计选材:绿色人居
-
用户体验:非常满意

