日系小清新
777
作品说明
- 项目类型:住宅公寓
- 项目地点:常熟市
- 建筑面积:70㎡
- 项目造价:30万元
- 主案设计师: 张美
- 竣工时间:2020-03-01
- 设计机构:苏州大墅尚品装饰设计工程有限公司
-
项目定位:生活很有趣,一方面,科技为我们带来了更加现代化的都市生活图景,另一方面,迅速消逝的传统文化将我们的生活底座掏空,让我们悬浮在半空中,空虚迷茫。快慢、新旧、虚实之间我们在铆足了劲的都市里狂奔,却总是渴望回归自我,找到一处能与自己和谐相处的地方。
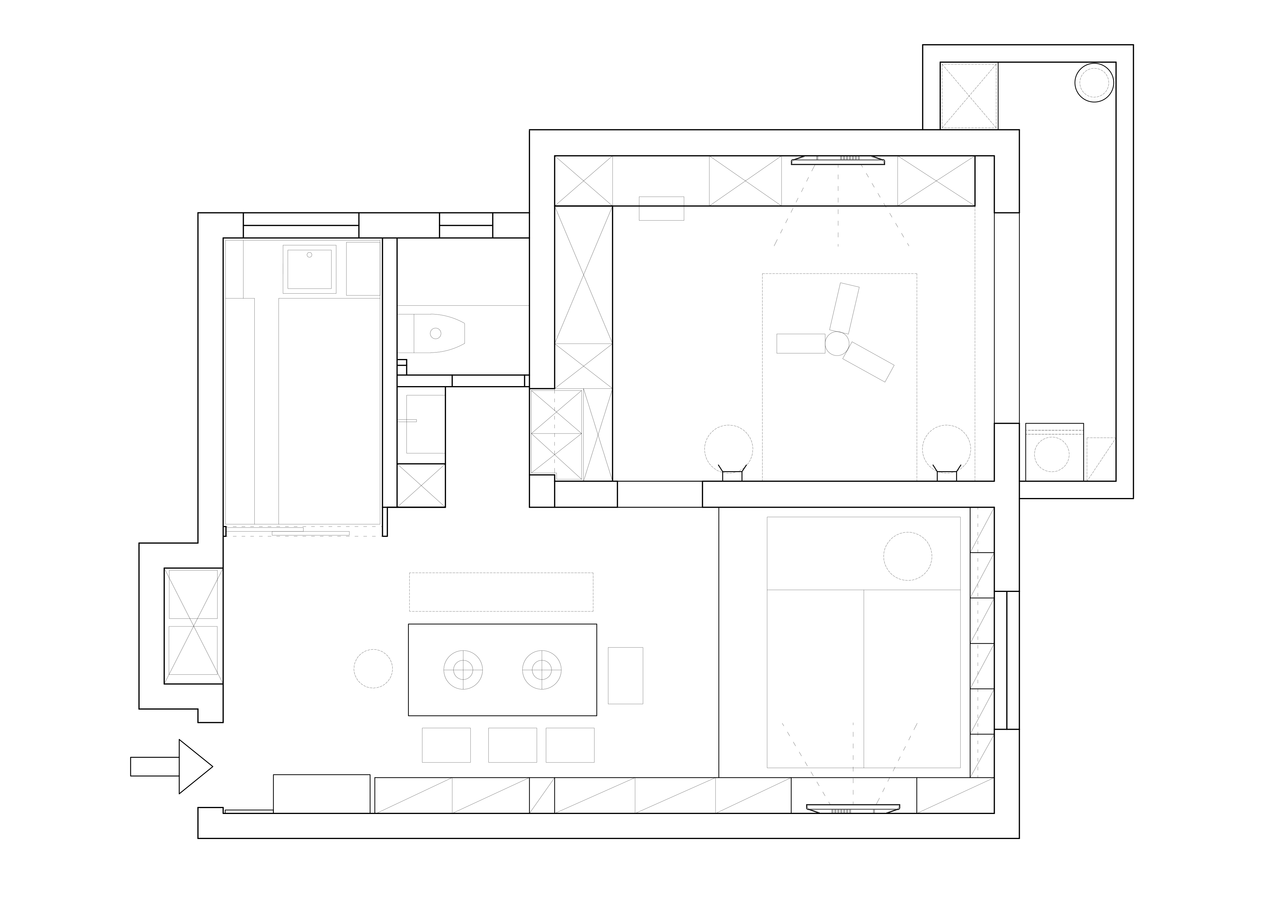
改造完这个65㎡的单身公寓后,身为设计师的张美终于可以与熟悉的一切安然相处了。走近她的新家,似乎总能找到一些我们渴望的东西。 -
空间意境:改造比较大的地方在于,将次卧并入客厅,拆除墙体,让客厅变成一个宽敞的活动室,将人活动的空间尺度加大。改变了原来主卧的门洞的方向,原户型中门洞朝向卫生间,改造后将原来的门用柜体遮挡,一部分收纳衣物,一部分放置软水机。而新门洞的方向则朝向客厅,功能分区明确。
-
空间布局:将整个卫生间划分为干区和湿区,用墙做隔断,并在门口做上挡水条,就不用再担心卫生间漏水破坏客厅地板了。将顶楼和侧面的外墙重新做了防水,很好地解决了老房子顶面漏水问题。
-
设计选材:无
-
用户体验:无
0
0

认证 · 让您身份增值