栖霞
1388
作品说明
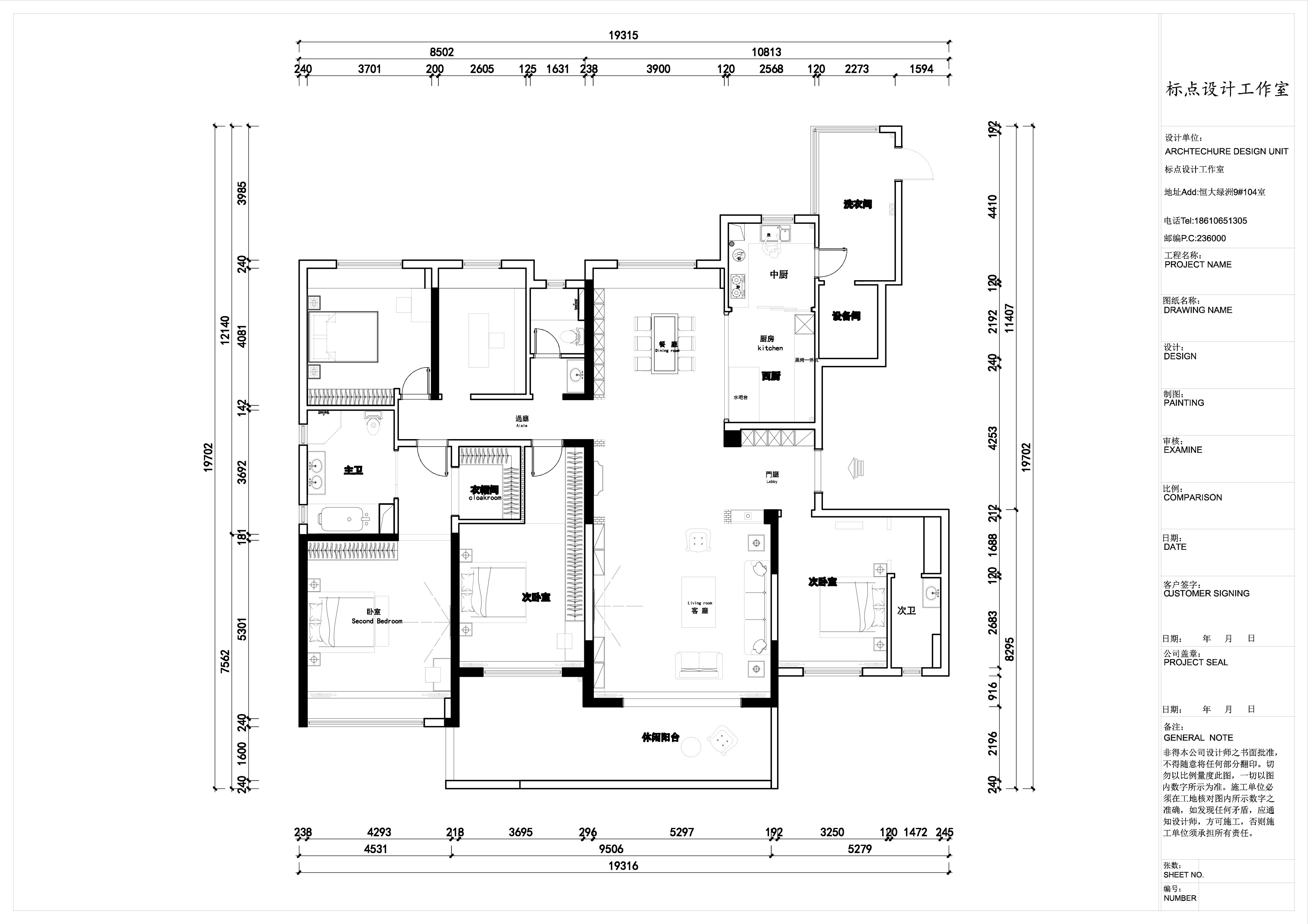
- 项目类型:住宅公寓
- 项目地点:阜阳市
- 建筑面积:270.0000㎡
- 项目造价:1280000.0000万元
- 主案设计师: 苏礼亮
- 参与设计师:王金飞
- 竣工时间:2020-06-13
- 设计机构:阜阳标点设计工作室
-
项目定位:男女业主从商多年,是一对地地道道的阜阳人;对生活品质要求极高,此房不仅是送给年幼外孙的礼物,更是一家人共享天伦之乐的圣地。
-
空间意境:愿你都能在这繁杂世俗,寻觅到一处清净之地。让家的温暖,血脉相传的温情得以交融萌芽。
-
空间布局:整体空间设计大体的纯粹的空间,恰到好处的温度,目之可及都是空间艺术,在艺术与生活之间,找到属于自己的那个平衡点,意式极简正是 如此。在某一次不经意的窥探中,发现设计的不凡之处。
-
设计选材:少即是多” ——建筑设计大师密斯·凡德罗影响了一代又一代人的艺术思维。“极简”已不仅是形式上的表达,更是一种生活态度,空间采用黑色橡木,岩板,灰色系大板砖,光,隐藏于场域里,属于动力的来源,牵动感官感知意象与叙述。从虚实色相间彼此循环,构成相生共存的涵构程序,空间透过光线传递形象与影廓,在层次、律动、通透之间,光影依随着时序,不断变化,形构的轨迹也成为居住的生活画面,具人文温度且适得其所。大理石与木饰面以自然原始的肌理,为空间注入无限生机,充满质感的皮质沙发和点缀的空间色系与之呼应,以细腻的触感丰富了空间层次,以流利笔挺的线条美学和低度的颜色,将设计理念娓娓道来。
-
用户体验:足不出户,感受四季变化,极简主义与灯光的变幻赋予生活别样的精彩与体验
0
0

认证 · 让您身份增值
金堂奖入围作品证书