黑白之外
651 - 项目类型:住宅公寓
- 项目地点:南京市
- 建筑面积:120㎡
- 项目造价:50万元
- 主案设计师: 吴艳丽
- 竣工时间:2020-07-10
- 设计机构:宇宙空间设计
-
项目定位:以往作品黑白灰做的很多,很多设计师对我的评价都是作品比较男性化的女设计师,色彩运用方面也是比较偏向男性化。这套希望色彩丰富,尝试用色彩做出硬朗的空间。
-
空间意境:多色彩搭配,既丰富又统一。
-
空间布局:错层楼板的设计,保证二层顺利通行,一层空间也不会过于压抑。
-
设计选材:水泥漆的选择是个难点,质感好的价格都比较高,为了完成这个案子,水泥漆找了很多供应商,最终再质感打了折扣基础上完成。
-
用户体验:装修前业主只留一句话,预算内,都听设计师的。入住后超喜欢这个既个性又色彩分丰富的家
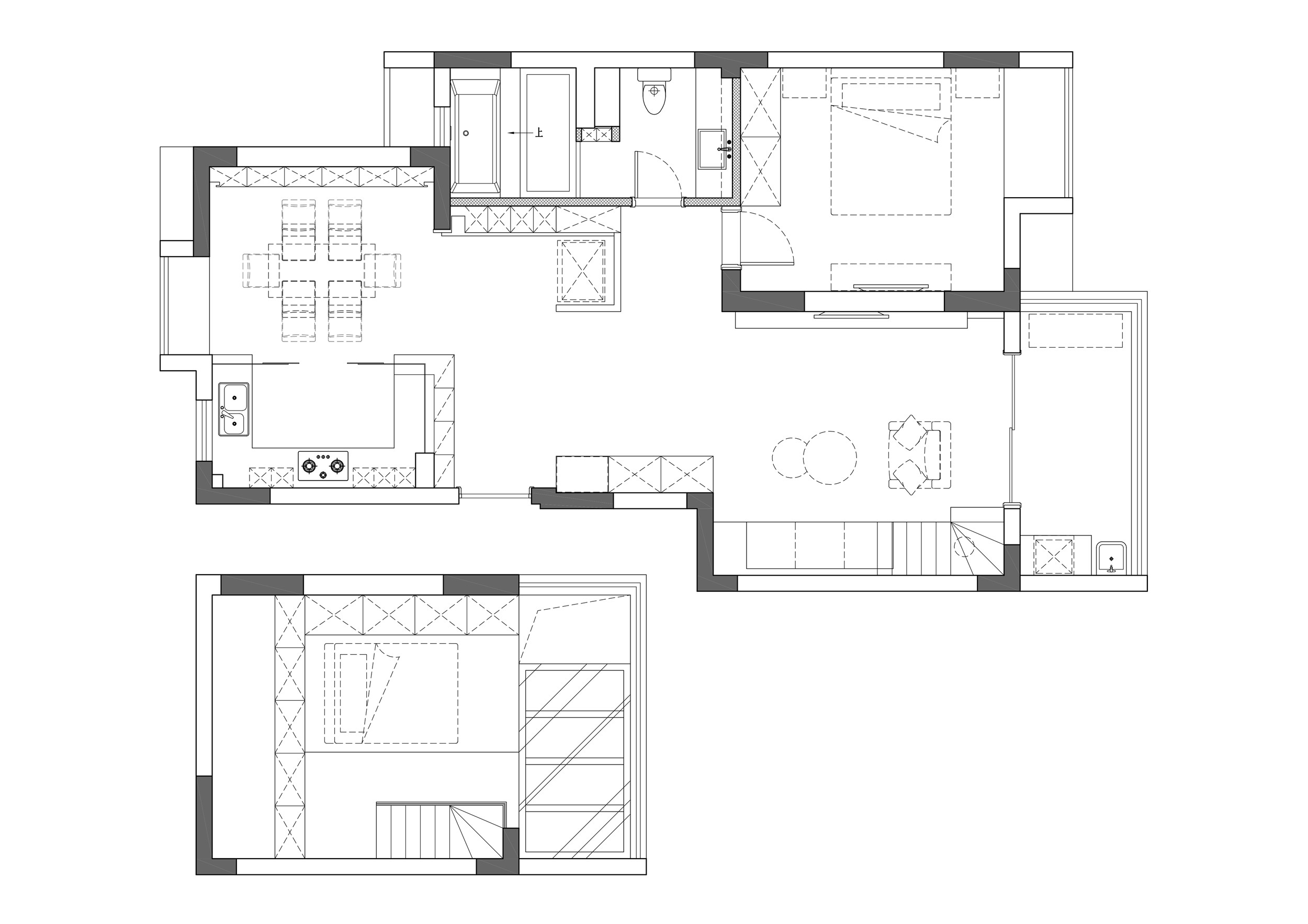
原户型两室一厅的格局,客厅挑高,不过客厅上方是斜顶,层高也不够,原装修是直接吊顶封起来并没有利用。 入户右侧与客厅交接的位置作为餐厅使用,既要作为玄关,又要摆放餐桌,空间相对局促。 阳台和客厅一样的斜顶阳光房,层高比较高,晾晒衣架安装在顶面,不是特别方便。 原厨房长方向开门,这种开间,利用率不高,门也会比较小。 原主卧室衣柜比较少,就在卫生间旁边的空间设置了一间衣帽间, 衣帽间的存在完全遮挡了卫生间光线,原卫生间窗户被封闭做成了收纳壁龛,这种格局卫生间既黑暗不通风空间也小。衣帽间衣柜背面充当着玄关,入户局促。
改造后的方案放弃了一间卧室,打开厨房与次卧室,餐厨一体,厨房向着餐厅方向开门,保证厨房开间的同时也增加了厨房台面长度,原厨房门的位置改成背对背地柜面向玄关的部分是鞋柜,面向厨房的部分是橱柜,厨房没有采用传统墙体加移门的形式,而是全玻璃的通透设计,进门视线无遮挡,小户型也可以有大平层的视野。 进门右侧设计了一组组合衣帽柜,结构的堆叠设计,集换鞋凳,鞋柜与衣帽柜一体,功能与美观齐聚。 卫生间在原有面积上扩建至衣帽间处,拆掉了衣帽间与卫生间之间遮挡光线的墙体,让卫生间拥有自然采光的同时也拥有一个浴缸淋浴结合一体的豪华洗浴空间。 次卧墙体有一段承重结构无法拆除,在这个墙体的基础上利用卫生间背面的墙体设计以一组玄关收纳柜,收纳柜旁边的护墙板造型隔墙完美的遮挡冰箱的侧面。 主卧室增加了一组衣柜,保留了外墙的斜面结构。 我们设计楼下放弃了一间卧室,只保留一间主卧室,偶尔有访客的话,就没有多余卧室可用。 我们利用客厅的斜顶层高偷出一个客房来,二层整体现浇的话,如果保证一层层高的话,二层层高不够,人无法正常通行,如果保证二层层高,一层客厅层高就会压低,相对压抑。 我们灵机一动,做了一个错层楼板的设计,两层楼板悬空中间不连接,各自独立的存在,悬浮的楼板灵动不压抑。沿着楼梯上到二层的楼板是下沉的,保证人可以轻松通过,楼板下面是客厅的沙发区域,人在沙发区域的活动的人基本上都是坐着,很难感受到层高不足带来的压抑感,客厅活动频繁的区域是楼上楼板抬高的部分,缓解了沙发区域层高不足的压迫感,二层利用这个30公分高差,刚好形成了一个榻榻米床,抬高的榻榻米既保证了楼下层高,又拥有了一张床,只需要配个床垫就是一间完美的客房啦。 二层四周的坡面打了一些抽屉柜体,空调内机也藏在抽屉柜上方的墙里面,谁说空调一定要装在顶上呢,在没有客人的大部分时间,二层可以作为储藏间来使用。
主卧室棕红色作为客厅红色的延续,棕红色木纹护墙板上方藏灯,起夜不用担心顶光源眩光影响另一半。衣柜柜门材质与床头统一。
进门右侧衣帽柜与客厅一角,白色烤漆衣帽柜下部分悬空暗藏灯光。
床头一角,棕红色的世界,我们曾经一直认为这种棕红色是老式装修老土的代名词,我们对某些材质的偏见,就像是我们对周遭人及事物的偏见一样。我想要表达的是我们可以放下偏见与执念,没有绝对的老土,要看我们怎么去思考,怎么去搭配。搭配好了棕红色木皮也有春天。
玄关装饰柜,深灰柜门搭配明黄装饰柜,黑白花大理石台面横穿过柜体与餐厅承重墙相接。
入户玄关,大面积深灰色柜门,搭配黄色装饰柜,黑白花大理石层板横向插入柜体与餐厅承重墙相接。右侧护墙板墙体背后藏着双开门大冰箱,灰色的墙面一抹亮黄色线条打破沉闷。 进门左手边石材台面下是与厨房地柜背靠背的鞋柜,进门拿取鞋子非常方便。
深灰色护墙板与悬空电视柜纵横交错,斜面线条造型斜插入电视柜,斜面的出现打破电视墙的严肃氛围,增添了些许趣味性。墙面背景墙壁灯与电视柜下的藏灯,灯光层次更加丰富。
二层的高差地面,两层楼板悬空中间不连接,各自独立的存在,在楼下看过来,悬浮的楼板灵动不压抑。下沉的楼板保证层高畅通无阻,上浮的楼板的高差30公分刚好是一张床的高度,利用高差形成一个榻榻米床,摆个床垫这里就是客房,榻榻米的高度给楼下客厅留出足够的层高,三全其美。空调内机藏在侧面抽屉上方的墙面里,阁楼夏天比较热,中央空的配置也相对提高了些。
改变开门方向的厨房,拥有U型橱柜,充足的操作台面。墙面用灰色的水泥漆代替了瓷砖,色彩延续玄关的深灰色与明黄搭配,全明的厨房,视野通透采光充足。
餐厅延续玄关的配色方案,餐厅收纳柜悬空设计,一条暖色光带沿着顶面绕过柜体,形成一个U型光环。两盏红色小水晶灯与客厅的红色呼应。
楼梯沙发局部,墙面与顶面水泥漆。红色扶手椅与楼梯红色玻璃扶手及红色摆件色彩呼应。
客厅顶面错层楼板,两层楼板悬空中间不连接,各自独立的存在,悬浮的楼板灵动不压抑。下沉楼板下面部分是蓝色固定式的沙发,大面积水泥漆的使用给空间增添了些许中性审美。 蓝色踏步延申至客厅作为沙发骨架,嵌入蓝绿色绒布软垫,高定款沙发落座。 红色水晶吊灯呼应红色弧形玻璃扶手,蓝色小茶几与沙发装饰画的蓝色呼应。 黄色茶几又与地毯装饰画的黄色呼应,这里的红色与黄色又与餐厅色彩呼应。 彩色多而不乱,各自呼应。
全水泥漆的楼梯搭配红色玻璃扶手,灰色世界中的一抹红。蓝色三角形踏步隐约可见。
餐厅收纳柜局部,深灰与明黄。
意外出镜的设计师
客厅配色小景,红色摆件与红色扶手椅。
0
0

认证 · 让您身份增值