新城 漯河云著 售楼处



- 项目类型:样板间/售楼处
- 项目地点:漯河市
- 建筑面积:600.0000㎡
- 项目造价:300.0000万元
- 竣工时间:2020-09-16
- 设计机构:上海牧笛室内设计有限公司
-
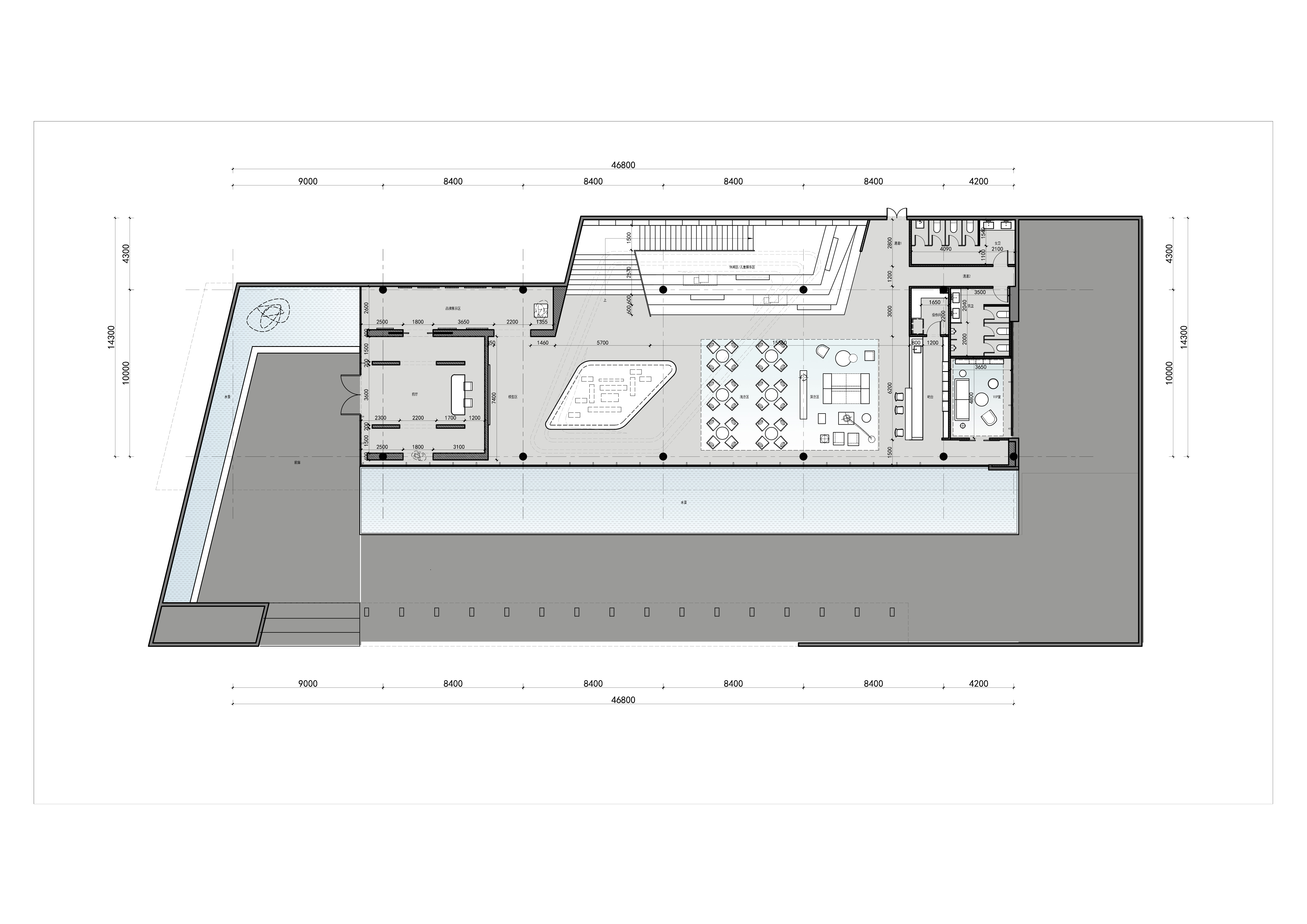
项目定位:设计师运用现代化的手法刻画了本案,踏入售楼处印入眼帘的接待前厅,线条明朗且充满张力的造型从墙面一直延伸到天花,通过品牌区序列感的柱墙进入品牌展示区,出彩的软装点缀成为空间的焦点。我们以光,风,影等自然元素作为空间的灵感点,通过空间与空间的叠加,形成空间形态的复杂性和秩序性,用极具逻辑性的导图模式来塑造空间的形态,空间的塑形决定了他的气质,而装饰只是我们为其穿上了一件衣服。
-
空间意境:进入大空间,引入眼帘的是主沙盘的方形设计,以一种极具张力的感受呈现在空间之中,墙围绕的主沙盘区及户模区,依次轴线排列,空间的秩序感自然而起。通过自然的灵感元素,形成律动流淌的曲线,再通过光影本身的斑驳变化,精心打造自然美学的体验。
-
空间布局:弧形造型与天然材料的叠加不但起到了与前场的呼应,这更是对于材质探索的一种延续。我们也极力的做到多种场景模式的转换,让空间真正呈现出自然生活的感受。在色彩上,设计师选用了大面积米色作为空间的底色,通过素雅大气的自然色系,讨巧的点缀着素雅之下的跃动。
-
设计选材:秉承环保低碳理念,广泛融入当代艺术,诠释奢华回归自然的生活。旨在低调优雅,流畅的设计布局保证了室内充足的阳光。通过引入艺术和自然材料作为肌理,我们开始为现代生活方式和优雅的生活方式提供一个新的定义。
-
用户体验:透露出现代化的精致与典雅,生活不仅仅是柴米油盐,年轻人看到这个空间,有来自对生活更美好更有趣的憧憬,安静朴雅的色彩搭配,简洁时尚的金属线条,贴合居者对生活的需求、对美学的向往,赋予品位生活细腻的优雅。
漯河,有着“中原之中”的美誉,牧笛希望通过古代漯河城“水旱码头”的繁华景象塑造诗意空间,滨水地带从古至今都有一种持久的吸引力,“傍水而居”承载着一座城市的诗意和梦想。用水一般的柔情与浓郁的东方当代美学打造一个“门庭若市”中的怦然心动。
不同空间所表达的意蕴截然不同,置身其中,感受中式与现代结合的双重感官体验、寄情山水是设计的核心所在,在山石之间踏步、树木掩映之间感受自然的魅力。
通过对传统影像的记忆,我们用现代东方设计的手法用简练禅意的设计语言进行诠释,更贴合现代东方设计的同时也对于历史记忆深感敬意。
整个设计通过虚实结合、移步换景的空间表现,营造优雅的现代东方意境空间。
通过材质质感之间的融合,块与面的穿插关系,以及自然禅意的色彩组合上的共振,将东方美学高古气韵的气息引入到空间,为当代空间注入古典诗意表达。
通过挑空区的装饰木格栅以及夹绢玻璃形成的元素节奏化了空间,通过光的引入,投射出朦胧与透明的东方美学记忆,整个模型区空间与建筑手法相同,通过顶面与立面造境的空间关系形成序列的、中轴对称的空间仪式感。
通过墙面虚与实结合的空间做法,以一种含蓄的美暗示着走入空间后的怦然心动。
从刻意收窄的意境过道空间进入洽谈区,节奏转换,移远就近,由动的节奏引跃入另一重空间感觉,同样延续了模型区的设计手法,讲究东方风格的中轴对称关系,通过柱廊关系形成空间的韵律。
水吧区采用做了局部下沉区,保证了室内与室外景观的呼应视觉空间关系。
端景强有力的发光盒体,唤起人们对于另一个空间的期待和好奇。
总有一霓秋裳 载着岁月的浓妆 轻橹桨 哼着一首相思 从桥东划来...

