新城 棠颂云著 体验中心



作品说明
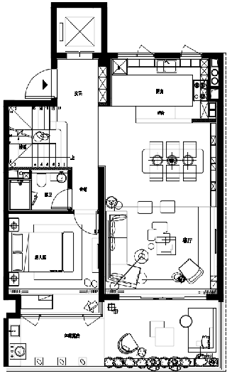
- 项目类型:样板间/售楼处
- 项目地点:苏州市
- 建筑面积:500.0000㎡
- 项目造价:200.0000万元
- 竣工时间:2020-09-09
-
项目定位:本案位于苏州,设计师运用现代化的手法刻画了本案,以苏州为题,赠予宾客一抹风景,感受到协调而自然的现代诗意。
-
空间意境:不同空间所表达的意蕴截然不同,置身其中,感受自然与原木元素结合的双重感官体验、感受自然是设计的核心所在,在微风中漫步、灯光掩映之间感受自然的魅力。运用简洁的线条美,表达出自由高贵的气质。出彩的软装点缀成为空间的焦点。赋予了空间生命,诠释一个自然灵动的空间。
-
空间布局:沙盘灯的灵感来源于对世外桃源生活向往所产生的衍生物,装置外形既像飞机又像飞鸟,表示挣脱世俗束缚,翱翔天空,自由高飞。
-
设计选材:秉承环保低碳的理念,该设计广泛地融入了当代艺术,诠释了从奢侈回归自然的生活。
-
用户体验:当空间不再是一个封闭的环境,落地窗外的世界仿佛近在咫尺,却又与全新的体验融为一体,将情感带入到空间,用纯粹的思维感受充满都市感的环境。一场自然之旅悄然而至。
本案位于苏州,设计师运用现代化的手法刻画了本案,
以苏州为题,赠予宾客一抹风景,感受到协调而自然的现代诗意。
沙盘灯的灵感来源于对世外桃源生活向往所产生的衍生物,
装置外形既像飞机又像飞鸟,表示挣脱世俗束缚,翱翔天空,自由高飞。
不同空间所表达的意蕴截然不同,置身其中,感受自然与原木元素结合的双重感官体验、感受自然是设计的核心所在
出彩的软装点缀成为空间的焦点。
赋予了空间生命,诠释一个自然灵动的空间。
当空间不再是一个封闭的环境,落地窗外的世界仿佛近在咫尺,却又与全新的体验融为一体,
将情感带入到空间,用纯粹的思维感受充满都市感的环境。一场自然之旅悄然而至。
在微风中漫步、灯光掩映之间感受自然的魅力。运用简洁的线条美,表达出自由高贵的气质。

