新力 金海湾 平潭 售楼处


- 项目类型:样板间/售楼处
- 项目地点:福州市
- 建筑面积:1000.0000㎡
- 项目造价:200.0000万元
- 竣工时间:2020-01-23
- 设计机构:上海牧笛室内设计有限公司
-
项目定位:金海湾选址平潭,与平潭综合实验区实行“政区合一”(行政区和实验区)的管理体制,位居福建省东部,与台湾隔海相望,是中国大陆距离台湾岛最近的地方。
金海湾示范区致力于打造都市会客厅,崇尚美学,注重体验 ,渴望社交与互动,追求精致的高品质生活,为国际化视野的都市人群打造成高格调社区。 -
空间意境:“与艺术对话,回归更好的生活”
建筑外部造型线条简洁大气,室内空间延续化繁为简的手法,采用解构、现代、简约、交错等设计理念,通过点、线、面,规则与不规则巧妙的搭配组合,可见与不可见的结构演绎,交织出空间的节奏感,诠释艺术的魅力。 -
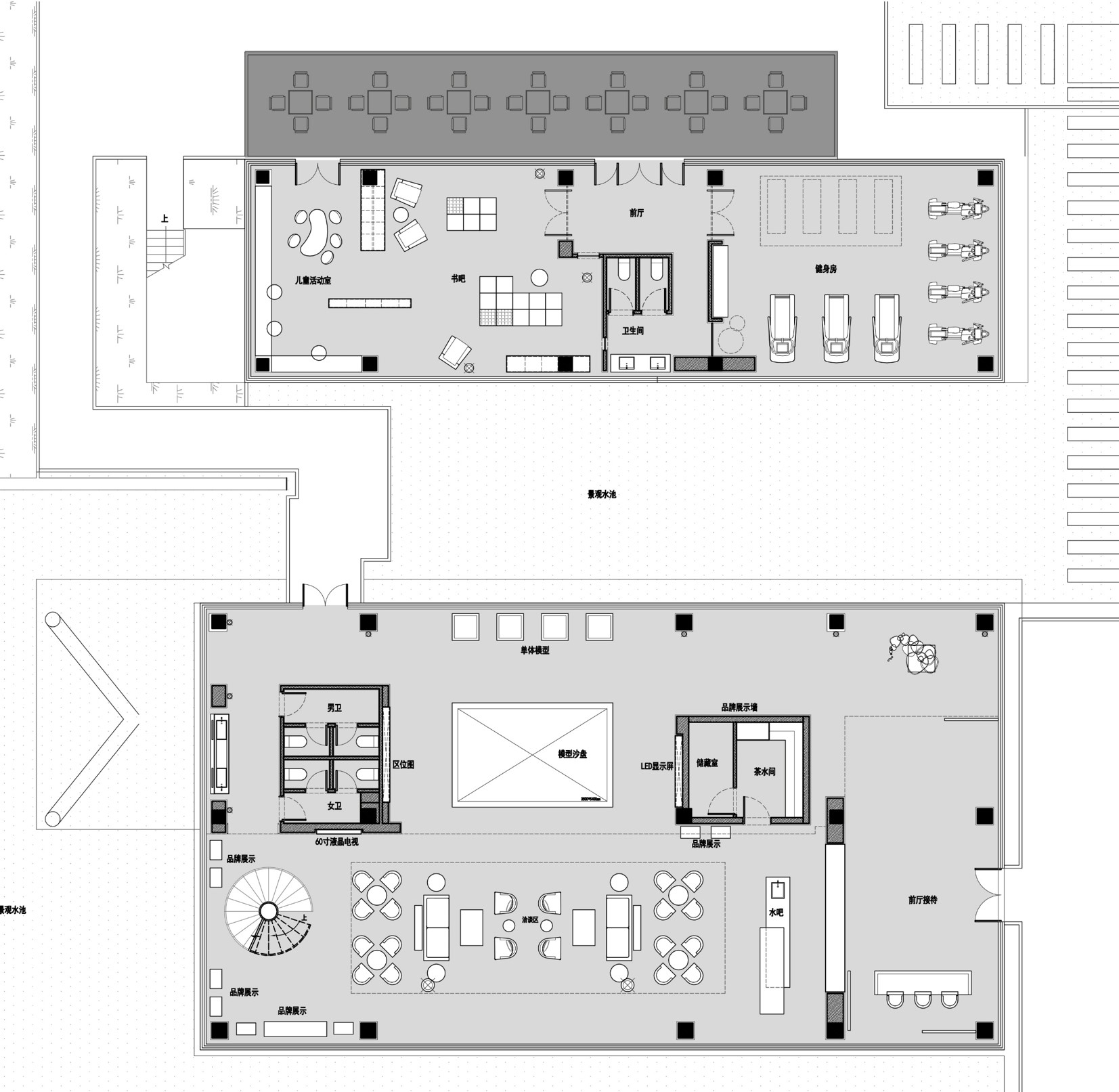
空间布局:(前厅-层次感的极简格调)
设计师引入自然的光线,与室内器物形构美学的对话,将自然与空间的分寸美感抒发到极致,简洁又清宁的空间格调呼之欲出。前厅入口处接待台凝练极简的线条,抽象极具张力美感的吊灯。温暖而精致的质感让空间和人更贴近,宁静且富有层次的空间,将客户带入多元立体的视觉体验。
(沙盘区-纯粹的内外搭配)
沙盘区的设计清澈纯粹,大幅玻璃窗连接起室内与天空的光影关系。依次叠进的设计动线贯穿整个售楼处,简单之中蕴含考究细节。大面积高透的白玻连接内外的空间,清雅简净的室内装饰,大气开阔的沙盘区搭配室外 -
设计选材:秉承环保低碳的理念,该设计广泛地融入了当代艺术,诠释了从奢侈回归自然的生活。
-
用户体验:平潭新力金海湾
以至简艺术空间奏响生活乐章
将每一个空间的善意与温情传递给业主
通过人与空间的充分互动
感知生活、享受生活
金海湾选址平潭,与平潭综合实验区实行“政区合一”(行政区和实验区)的管理体制,位居福建省东部,与台湾隔海相望,是中国大陆距离台湾岛最近的地方。 金海湾示范区致力于打造都市会客厅,崇尚美学,注重体验 ,渴望社交与互动,追求精致的高品质生活,为国际化视野的都市人群打造成高格调社区。
建筑外部造型线条简洁大气,室内空间延续化繁为简的手法,采用解构、现代、简约、交错等设计理念,通过点、线、面,规则与不规则巧妙的搭配组合,可见与不可见的结构演绎,交织出空间的节奏感,诠释艺术的魅力。
设计师引入自然的光线,与室内器物形构美学的对话,将自然与空间的分寸美感抒发到极致,简洁又清宁的空间格调呼之欲出。
前厅入口处接待台凝练极简的线条,抽象极具张力美感的吊灯。温暖而精致的质感让空间和人更贴近,宁静且富有层次的空间,将客户带入多元立体的视觉体验。
沙盘区的设计清澈纯粹,大幅玻璃窗连接起室内与天空的光影关系。依次叠进的设计动线贯穿整个售楼处,简单之中蕴含考究细节。
大面积高透的白玻连接内外的空间,清雅简净的室内装饰,大气开阔的沙盘区搭配室外镜面水池,整个空间收放自如,张弛有度。
旋转而上的扶梯,将空间分割重组成登顶云端的天阶,以最本质的木色与空间协调本真又不失摩登气息。
旋转楼梯实现了两层建筑丰富的空间变化,完成了聚合到疏散的空间过渡。
空间另一侧构设了书吧、健身房、儿童娱乐区三个功能区,以置物墙为一体式背景,串联彼此。
为业主创造一处放松身体。与心灵对话的空间,在这里休息、相聚、锻炼、交流,重获生活的温暖与希望。
书吧模块【星光阅读栈】整个空间以优雅、放松为主调,温润的皮质与质朴的木质交相辉映,
浓郁艺术气息的油画点缀其中,书香、咖啡香、茶香交融在一起,让空间呈现出休闲、舒适质感。
也为孩子来了活动空间,在这里,手工小课堂、亲子阅读等。都可以带给孩子欢乐时光。
健身房模块【智能健身舱】,基于现代人日益增长的健身需求,让业主不出小区,就能享受到专业健身房的健身设施。

