新城 凤凰台 体验中心



- 项目类型:展示
- 项目地点:六盘水市
- 建筑面积:1150.0000㎡
- 项目造价:500.0000万元
- 竣工时间:2020-07-09
- 设计机构:上海牧笛室内设计有限公司
-
项目定位:TOP
-
空间意境:六盘水,别名中国凉都,位于贵州西部乌蒙山区。
当地文化历史悠久,底蕴深厚,民族风俗浓郁,
穿梭于这座城市,会感受着当地独有的红色文化肌理。
这些红色文化,被深深的烙印在城市每个角落,
同时也成为了本案创作灵感,
牧笛希望为这座城市打造一所古今相融、
时尚雅奢的“文化行馆”,
通过富有文化情谊的手法表达融汇古今的深意 -
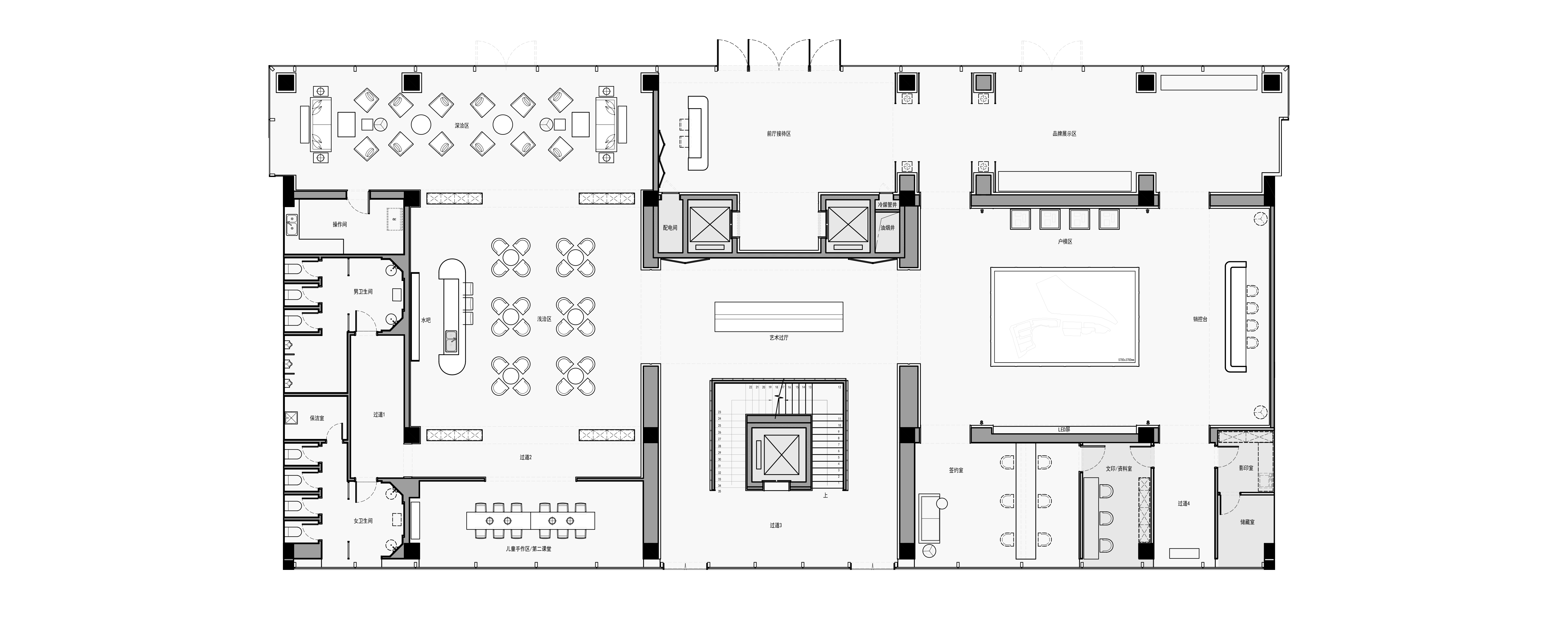
空间布局:以贵州山脉为元素,以震撼的金属装置画来描绘贵阳的秀丽山川,竹栅隔断将视线引入到大型金属立体装置,层叠的近山远山,极赋代入感,增加空间的丰富性,层次感,增强视觉冲击力。空间由柔和的中性色展现,通过雕塑的形态、装饰灯的搭配、大理石的质感、简洁的线条、色彩的运用……一系列与空间相得益彰却又饱含诗意。光一寸一寸地落于空间,神秘感与序列感也由此产生。
-
设计选材:秉承环保低碳的理念,该设计广泛地融入了当代艺术,诠释了从奢侈回归自然的生活。
-
用户体验:空间中刻意营造出简洁的线条感,更显生动深邃,与装饰相辅相成,惊艳空间的繁花是艺术的馈赠,尊贵典雅的空间体验感更使诗情画意与线条合二为一。
六盘水,别名中国凉都,位于贵州西部乌蒙山区。 当地文化历史悠久,底蕴深厚,民族风俗浓郁, 穿梭于这座城市,会感受着当地独有的红色文化肌理。 这些红色文化,被深深的烙印在城市每个角落, 同时也成为了本案创作灵感。
牧笛希望为这座城市打造一所古今相融、 时尚雅奢的“文化行馆”, 通过富有文化情谊的手法表达融汇古今的深意。
凤鸣朝阳,超逸绝尘 演绎那一抹红的诗情画意 以贵州山脉为元素,以震撼的金属装置画来描绘贵阳的秀丽山川,竹栅隔断将视线引入到大型金属立体装置,层叠的近山远山,极赋代入感,增加空间的丰富性,层次感,增强视觉冲击力。
横平竖直的线条,既融合了中国传统文化的韵味,又与现代建筑风格相融,整体空间通透,空间内大面积的落地玻璃有着强烈的视觉冲击,沉浸其中,细细品味城市肌理与空间中的联系。
艺术展区展现了浓厚的贵州建筑文化,以贵阳文昌阁为设计灵感,吊装的建筑装置吸引宾客的眼球,放置文昌阁建筑模型及书籍进行造景,艺术展区墙面以贵阳古建筑剪影做点缀,增强视觉体验及艺术感,长桌的饰品及书籍体现了贵阳的建筑文化及人文情怀,供宾客的翻阅及赏析。
洽谈区以舒适简洁的四人位为宾客提供舒适洽谈的场所,禅意的桌椅及极具古典韵味的饰品都体现了浓厚的贵州文化。红色的花艺点缀整个空间,增加了空间的色彩活跃度。
运用独特的山石艺术造型雕塑作为吧台元素,顶面的水滴吊灯犹如绵绵细雨中雨滴,打造简洁禅意的艺术氛围,在隔断墙外侧增加壁灯,增加画面感及仪式感,赋予空间浓郁的中式韵味。
繁花似锦,美景连绵 寻觅一段诗意时光 繁花纹样的吊顶将诗意与柔情融入空间,营造出繁花似锦的艺术氛围,一花一影,一亮一暗,一虚一实,增添了诗情画意的柔美感,与自然相融相生。
空间中刻意营造出简洁的线条感,更显生动深邃,与装饰相辅相成,惊艳空间的繁花是艺术的馈赠,尊贵典雅的空间体验感更使诗情画意与线条合二为一。
如沐春风,心旷神怡 行走于空间中的全新体验 空间由柔和的中性色展现,通过雕塑的形态、装饰灯的搭配、大理石的质感、简洁的线条、色彩的运用……一系列与空间相得益彰却又饱含诗意。光一寸一寸地落于空间,神秘感与序列感也由此产生。

