西装暴徒



作品说明
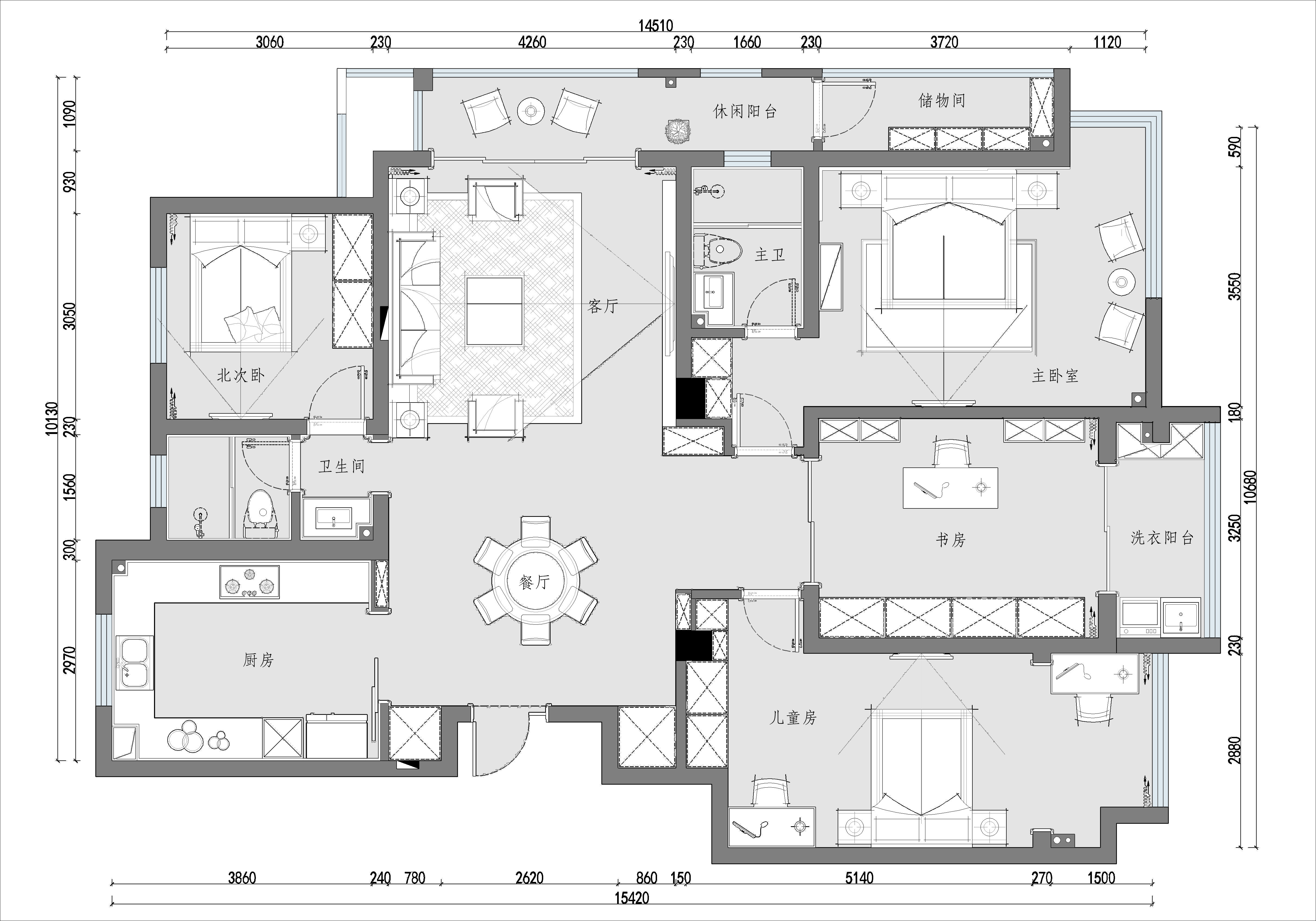
- 项目类型:住宅公寓
- 项目地点:扬州市
- 建筑面积:160.0000㎡
- 项目造价:100.0000万元
- 主案设计师: 王飞
- 参与设计师:王飞
- 竣工时间:2020-09-08
- 设计机构:华浔品味装饰集团
-
项目定位:接触到业主时候,对业主的第一感觉是,业主的接受度还是很高的,所以在做设计的前期就规划整体色系偏向于黑金系列,从中进行调色,增加家的温度!
-
空间意境:整体风格营造的不是大众客户能接触的黑金系列风格,在市面上都是很难找到的风格,与众不同,不做雷同的设计风格
-
空间布局:空间布局,把所有的能打通的墙体都打通了,因为整体色系比较深一点,所以在空间上一定要做的更大!
-
设计选材:选材方面选用液体雾化器,代替传统的酒精壁炉,第一更加的安全没有危险的隐患,第二更加经济实惠,第三雾气可以在冬天增加空气中的湿度
-
用户体验:客户从看到整体效果出来的时候特别激动,因为我们给他设计了一个他喜欢的家,整体的色调达到他预期,而且也选用了智能化的设备,更加的方便他的生活!

