武汉诺兰花园酒店



- 项目类型:酒店
- 项目地点:武汉市
- 建筑面积:300.0000㎡
- 项目造价:100.0000万元
- 参与设计师:丁李陈,胡清泉,方禅,向梦莲
- 竣工时间:2020-07-14
- 设计机构:湖北思瀚装饰设计有限公司
-
项目定位:在有限的空间中如何表达建筑意 ,无疑是个挑战,作为一种负向的思维。建筑本质是减法,除去必要的承重,构件以最单纯的形式,穹洞遮挡阻隔,塑造空间的每个转折,留出的开间进深,体块分明之间,令人置于层层迂回,富于变换的空间意向,展露给众人的是,流动性的使用空间。
-
空间意境:设计看似一种精确的空间操作,这是用来示人的表象,而草蛇灰线的是,一种对于观者心理预期的设定。空间尤其如此,动线流动中灯光灯灭,亮与暗的转化,暗示出幽深的雅意,在有限的面积中,作出曲径通幽般的丰富专场,光影配合整个空间变得妙趣横生,如同被置入那个心灵的乌托邦。
-
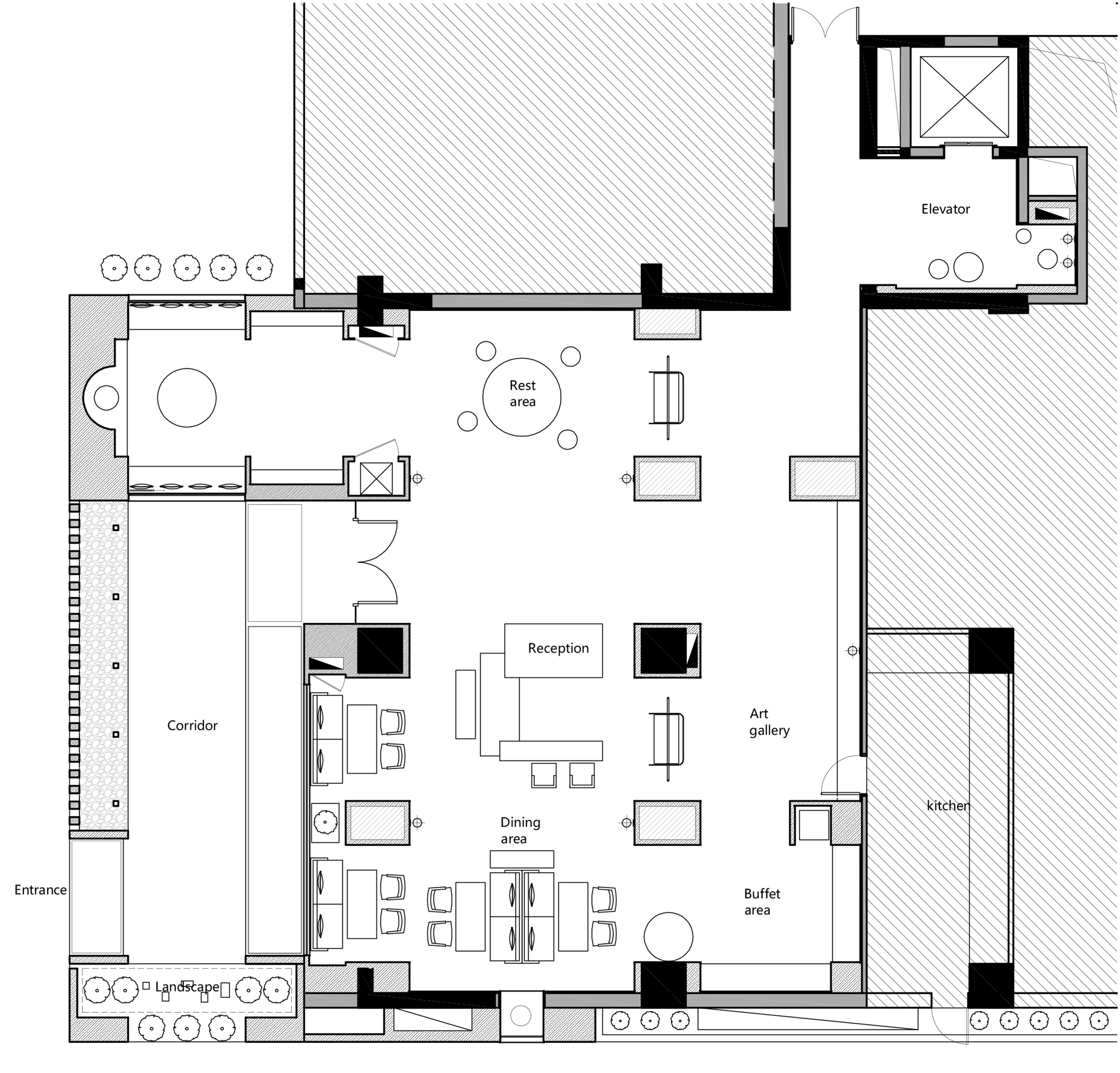
空间布局:空间中的线性语汇,起到引导作用,串联起承转合的空间环圜,灯带的亮和沟槽的暗,两条弯转的平行线,可以凭此探索前进。
-
设计选材:突出建筑的体量感,大面积肌理漆配合LED光源,采用工厂定制现场装配,极大降低物料和人力成本支出
-
用户体验:古典的审美观念不仅仅局限于外形,还在于规则与比例,源于对自然抽象的总结,建筑的永恒真理是秩序,空间和比例占据着古典美学的至高点。设计就教于神,使元素成形,艺术创作使形式的整体性得以显现,被挑选的元素奏起交响乐在元素间节点唤起情感。超高尺度配合以古代拱劵为原型的弧顶,赋予了生活一种庄重的仪式感,比起日常,它更像是一座普通人可以居住使用的宫殿,崇高的情感,数学的秩序。
ARCHITECTURAL SENSE 建筑意 在有限的空间中如何表达建筑意 ,无疑是个挑战,作为一种负向的思维。建筑本质是减法,除去必要的承重,构件以最单纯的形式,穹洞遮挡阻隔,塑造空间的每个转折,留出的开间进深,体块分明之间,令人置于层层迂回,富于变换的空间意向,展露给众人的是,流动性的使用空间。
LIGHT SHADOW 光影 设计看似一种精确的空间操作,这是用来示人的表象,而草蛇灰线的是,一种对于观者心理预期的设定。空间尤其如此,动线流动中灯光灯灭,亮与暗的转化,暗示出幽深的雅意,在有限的面积中,作出曲径通幽般的丰富专场,光影配合整个空间变得妙趣横生,如同被置入那个心灵的乌托邦。
TRANSITION 转圜 空间中的线性语汇,起到引导作用,串联起承转合的空间环圜,灯带的亮和沟槽的暗,两条弯转的平行线,可以凭此探索前进。
MEDITATION 冥思 曾经的酒店大堂功能至上,放置杂乱无章,甚至目不暇接,然而五色令人盲,密不透风的布置,无法与人交流。现今所完成是精神的置换,游走过程中的冥思和保持距离的欣赏,让生活方式得以浮出水面。穹顶营造气场,灯光画龙点睛,精神气度自然不凡。体验是过程,记忆是结果,最终将美学内化于心。
CEREMONY 仪式 古典的审美观念不仅仅局限于外形,还在于规则与比例,源于对自然抽象的总结,建筑的永恒真理是秩序,空间和比例占据着古典美学的至高点。设计就教于神,使元素成形,艺术创作使形式的整体性得以显现,被挑选的元素奏起交响乐在元素间节点唤起情感。超高尺度配合以古代拱劵为原型的弧顶,赋予了生活一种庄重的仪式感,比起日常,它更像是一座普通人可以居住使用的宫殿,崇高的情感,数学的秩序。

