广东展诚办公空间
848
作品说明
- 项目类型:办公
- 项目地点:佛山市
- 建筑面积:790.0000㎡
- 项目造价:1000000.0000万元
- 参与设计师:张贵才,萧炜奇,李志豪,何绮敏
- 竣工时间:2020-11-13
- 设计机构:佛山市点海装饰设计工程有限公司
-
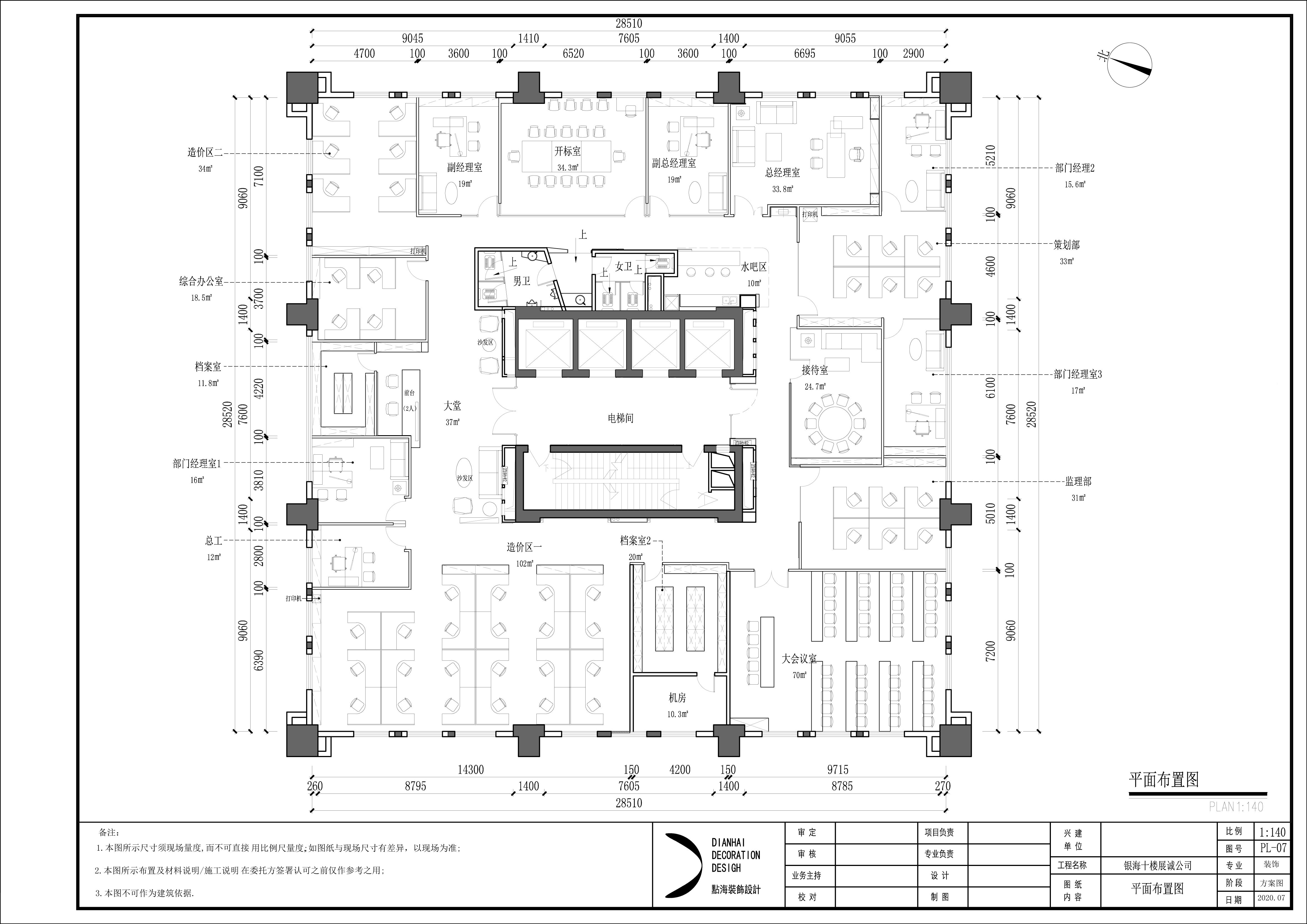
项目定位:项目是一个工程造价咨询公司,定位休闲商务,打造简洁明了的办公环境
-
空间意境:把连通所有空间的走廊打造成一个具有虚实结构感的通过空间,搭配不同的画品,让每个角度都能感受精彩
-
空间布局:以一条富有装饰性的走廊贯通所有空间,并把开放式办公区融入走廊中,扩大了视觉延伸。
-
设计选材:以涂装板和案例隔断为主材,构件虚实结合的通过空间,纯粹而成本可控
-
用户体验:形象的提升不但让业主和员工感到舒适和自豪,同时觉得空间和灯光都更加合理,而且结合了休闲与水吧,把员工和客户的满意度大大提升!
0
1

认证 · 让您身份增值