正商·祯瑞上境体验中心



作品说明
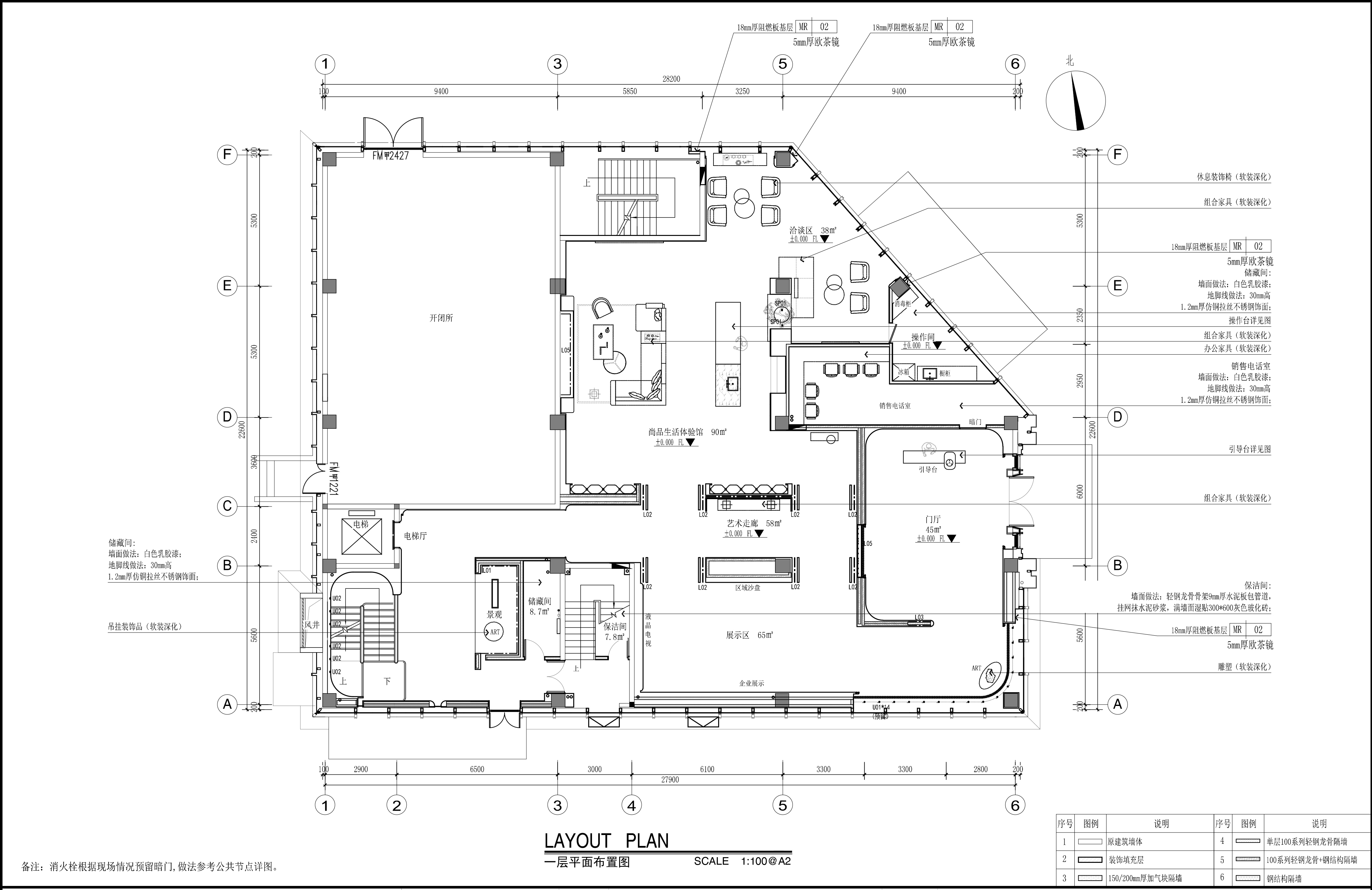
- 项目类型:样板间/售楼处
- 项目地点:郑州市
- 建筑面积:1900.0000㎡
- 项目造价:79.0000万元
- 主案设计师: 钟凌云、秦丽
- 参与设计师:何高永、刘杰、崔利国、周理杰、尚旭升、王军亮
- 竣工时间:2019-09-11
- 设计机构:河南励时装饰设计工程有限公司
-
项目定位:构建人文艺术与国际视野的都市理念,延伸品牌的品质精髓,亦融入了摩登的文化思想。把国人对“家”的理解深植到空间的每个细节,透出家的温情,为目标客户创造的更是一种在艺廊行走的体验。构诗意空间,为智者而生。
-
空间意境:晶莹剔透的玻璃砖让整个空间模糊了界限,在室内也能感受自然的云影变幻。一缕缕光线倾洒而入,线条间隔使空间深度拉长,光线在这里穿梭流泻,流光溢彩,吸引着参观者追随它的脚步行走,感觉世间烦扰都在此沉寂,仅存空灵与静谧。
-
空间布局:“构建成“家”的大客厅,而长长的厨房是“家的心脏”。对于”美食家”来说,在”家”里精心布置出一个后厨,是划定家庭“领地”的第一步;把家变成一个“美食实验室”是一种生活方式体现。定制的客厅壁炉和精致的地块符号图案演绎,与陈列架的交互体验,舒缓自然。只要你喜欢,生活其实随时可以是一场“秀”。
-
设计选材:主要材料:马尔代夫蓝石材、定制浅咖色玻璃砖、定制金属网、旋切树瘤木、定制艺术丝绸漆、金属、壁布
-
用户体验:项目完成后得到建设单位的高度认可。用户体验较好。

