NEST西式简餐旗舰店



作品说明
- 项目类型:餐饮
- 项目地点:佛山市
- 建筑面积:380.0000㎡
- 项目造价:280.0000万元
- 主案设计师: 江铭深
- 参与设计师:江铭深,曾志荃
- 竣工时间:2018-12-10
- 设计机构:广州本立设计装饰有限公司
-
项目定位:我们希望通过设计的策略来调和室内外的关系,达到一个最佳的平衡点,创造一个理想的安乐窝。
-
空间意境:项目位于商场室内中庭与室外中庭之间,室内无论是温差、光比还是风压等都存在极大差异。犹豫阴阳相互交织的剧烈状态,本案设计重点是利用空间体块、材料特性、空调系统、水等等元素把不利因素化为项目亮点。
-
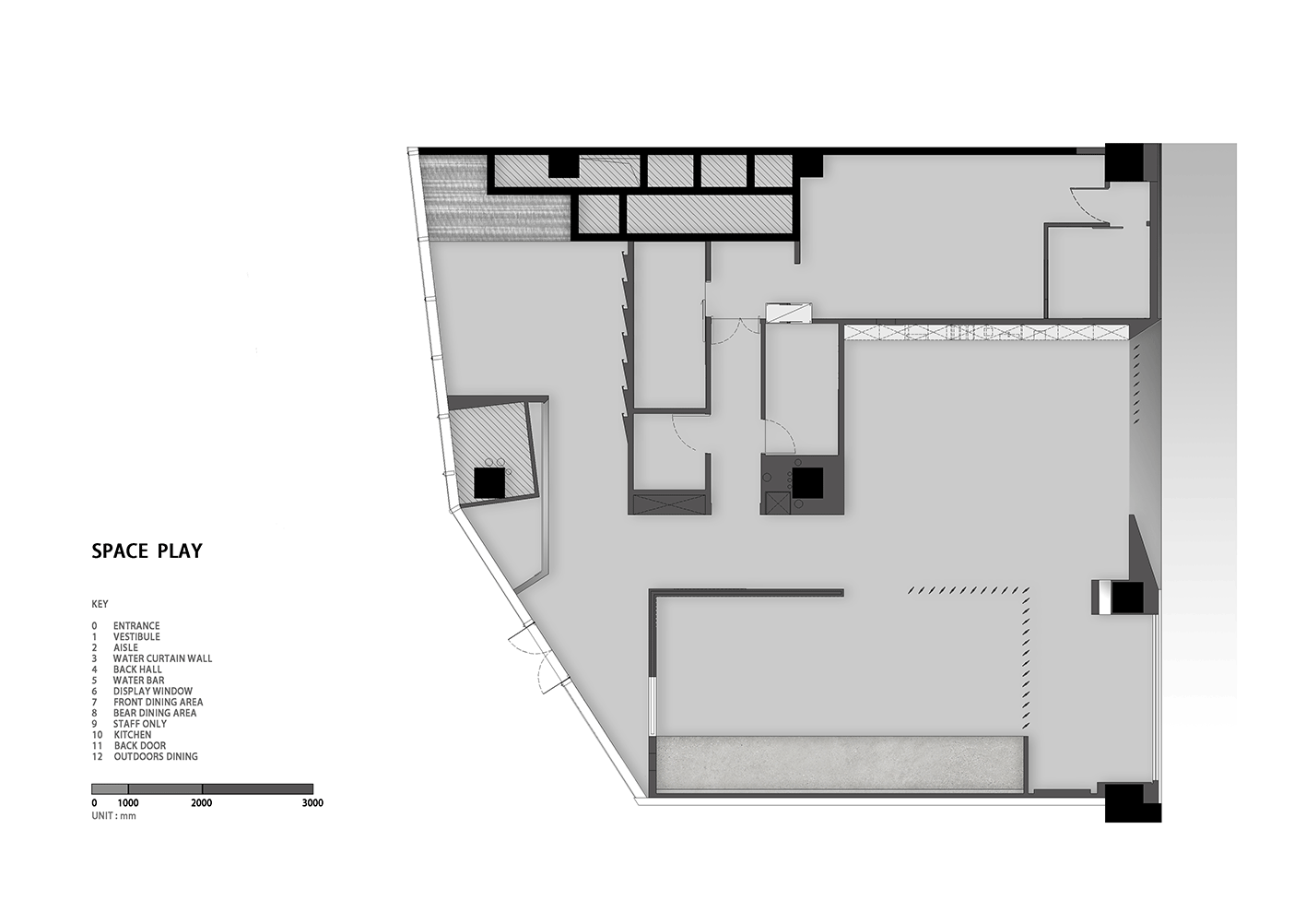
空间布局:项目所在建筑体位于广东省金融高新区中轴线上,餐厅中心线与城市中轴线一致,主动线与中心线重合。用一条贯穿门厅、廊到水幕的无形脊梁支撑起了整个空间。餐厅位于建筑体首层,前后两个入口分别朝向建筑体的室内和室外中庭。室内一侧光线柔和、气流和气压恒定;室外一侧光照强烈、气流和气压多变。在这样的建筑环境下,容易造成内外能量不均衡,体感弱的情况。
-
设计选材:空间整体采用莫兰迪色系的材质进行搭配。
餐厅的视觉深处,水幕墙端景不仅在视觉上及体感上有降温、滋润的感觉;在听觉上也形成一道隔离外界嘈杂的音障。
光线经过墙身、地面等粗糙肌理的二次过滤后变得非常柔和,内部空间照度得到有效控制,非常适合坐下来细细品味食物带来的幸福感。
后用餐区是相对私密的阳光房。阳光至强属阳,久坐必然容易造成心情烦躁,所以设计把空间属性往偏女性偏阴的方向去营造,达到一种阴阳调和的状态。阳光经过遮光材料的过滤变得柔和,灰调的空间、漂浮的吊灯、雅致的家具仿佛都被这般柔和的光线洗礼。 -
用户体验:截止到报名时间本项目已经连续10个月于大众点评app环境榜上蝉联TOP1,项目已经拥有大批老顾客、粉丝数量持续增加,拥有相当高口碑。
F9669023-853E-44B8-BCB1-247AAECEEDCF
9AFCFB66-CB77-451A-9299-99E226992CBB
8D001891-6E45-408C-98FF-948550DDF6E1
CDE97F97-C0D0-416E-9B5C-26295B1B22FC
7594260E-589A-4D4D-8F19-0DA6F17DF8EC
38E3B001-06F5-4148-9CDE-F4EEA00B9A64
2AD4E891-A4E0-48D1-A490-5FDB8C7C25B1
2F40715B-84A6-4F3E-8EE7-4B3BBF53C9FF
C9316E91-A77B-416D-8B96-91F047434E86
28678341-34BA-40CD-9D1C-4C4B94FD3EAB
天花图,天花造型中心线对齐城市中轴线

