灵韵
1259
作品说明
- 项目类型:别墅
- 项目地点:潍坊市
- 建筑面积:300.0000㎡
- 项目造价:120.0000万元
- 主案设计师: 徐妮妮
- 竣工时间:2020-06-06
- 设计机构:缮居设计
-
项目定位:业主是政府官员,定位低调中彰显品味,业主女儿是专业舞者,定位时尚不浮夸
-
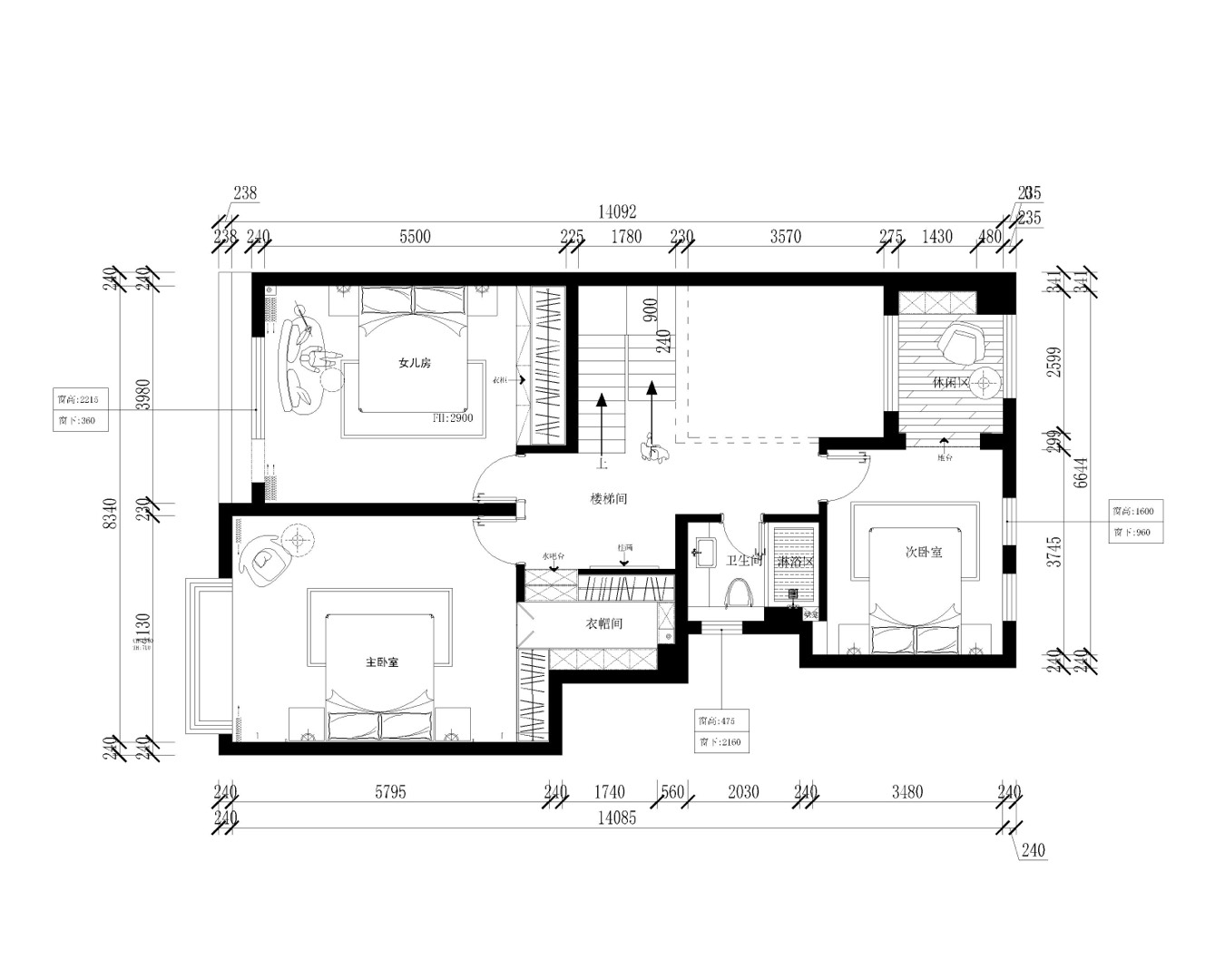
空间意境:功能分区相隔又相容,比如三楼茶室和舞蹈室,功能上是分离的,但空间上又是互通的;室内空间虚实相济,木制格栅和石墙相交,石材和木制相交,硬包和软包相交,凸现中国人刚柔相济的性格特点
-
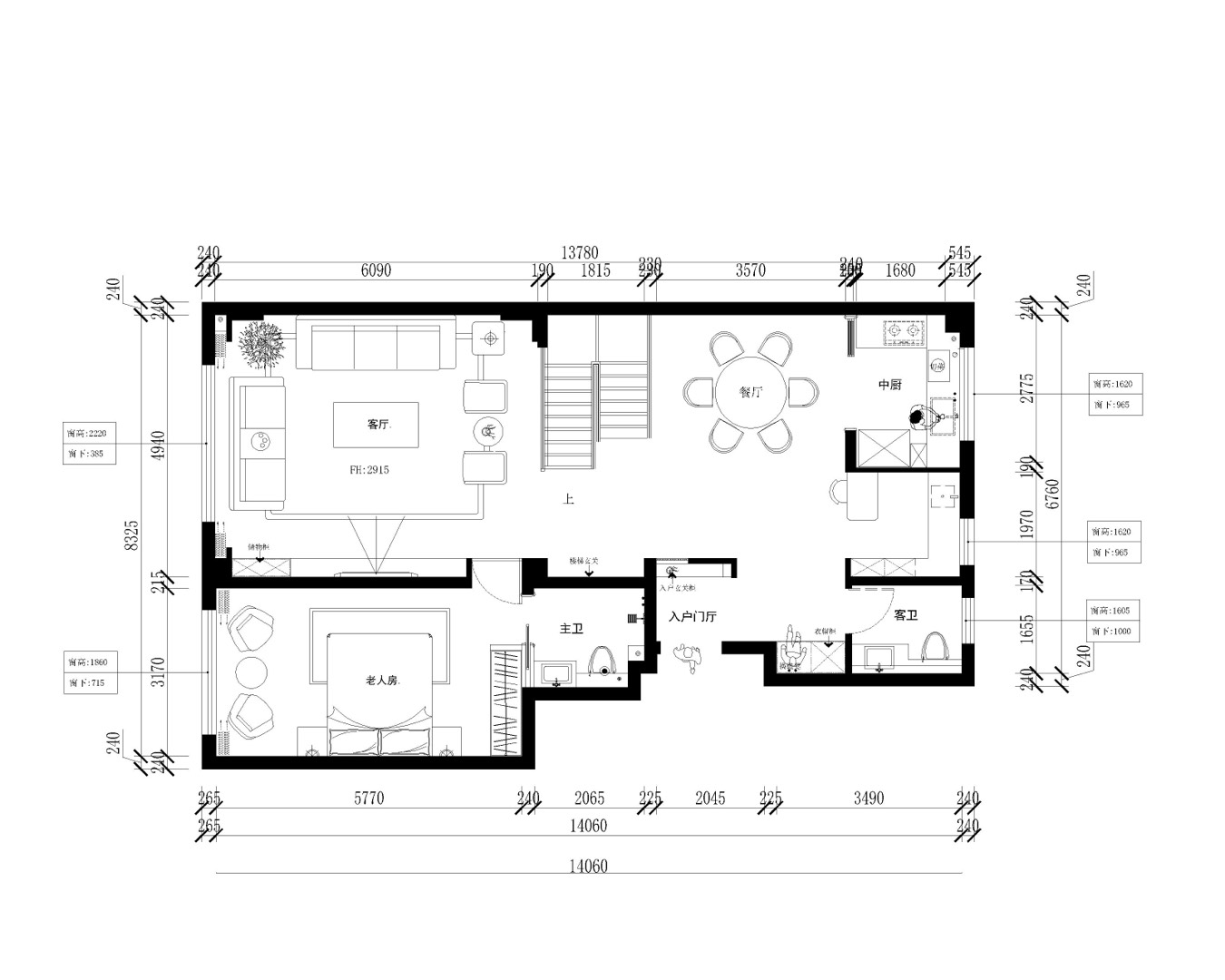
空间布局:空间布局除了考虑到功能和动线协调,更从人的角度出发,注重家人感情的交互,多出来一条感情线,如中西厨在餐厅相交,客厅摆脱电视为中心,而是选择围坐格局,茶室和舞蹈室相同,让父母和女儿有更多的感情渗透机会
-
设计选材:多处走廊采用感应灯照明,人来即亮,人走即灭,分区采用点光源,放弃大灯漫照式传统照明。房顶家装毛细管设计,冬暖夏凉,恒温恒湿,节能减耗
-
用户体验:客户满意度较高,基本实现了业主的全部期望,并且满足了家庭成员对家的要求
0
0

认证 · 让您身份增值