在线支付安全认证
您的信息将完全加密
享受更多优质会员服务
已扫码
请在手机上完成支付
支付即同意并接受
一楼平面布置图
二楼平面布置图
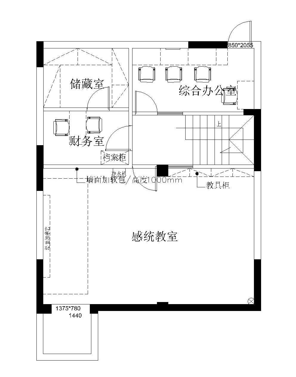
负一楼平面布置图
一楼大厅1
一楼大厅2
一楼大厅3
一楼大厅4
一楼幼儿教室1
二楼图书角
二楼幼儿教师2
二楼幼儿教师3
负一楼感统教室
负一楼综合办公室
临沂市
工作地点
联系方式
15725791319