Buzz Lightyear·盛世光年



作品说明
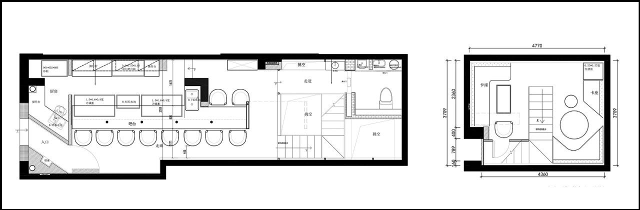
- 项目类型:餐饮
- 项目地点:郑州市
- 建筑面积:70.0000㎡
- 项目造价:40.0000万元
- 主案设计师: 姚清轩 侯豫
- 参与设计师:主案设计 : 姚清轩 设计总监 :侯豫 张千千 徐莉莉 刘明帅 郭芝良 张建
- 竣工时间:2019-09-15
- 设计机构:徽宗建筑设计(河南)有限公司
-
项目定位:一面仿如金字塔墓穴的石墙,一条隧道,一个地下室
-
空间意境:打开石墙,隧道深深深深深几许
前方幽暗,却是光朔迷离把 -
空间布局:时间的直线扭曲,往下,仿如达利
时间变成了空间的一部分 -
设计选材:你我同往,沿着隧道,漂泊时空
任你何去,我都追随
时光无边,寂静无痕 -
用户体验:过去,转瞬即逝。当下,如同玫瑰凋零
我们在黑暗中被稀释掉。

