减法·加法



- 项目类型:住宅公寓
- 项目地点:南京市
- 建筑面积:130.0000㎡
- 项目造价:60.0000万元
- 主案设计师: 周留成
- 竣工时间:2020-10-08
- 设计机构:木桃盒子室内设计
-
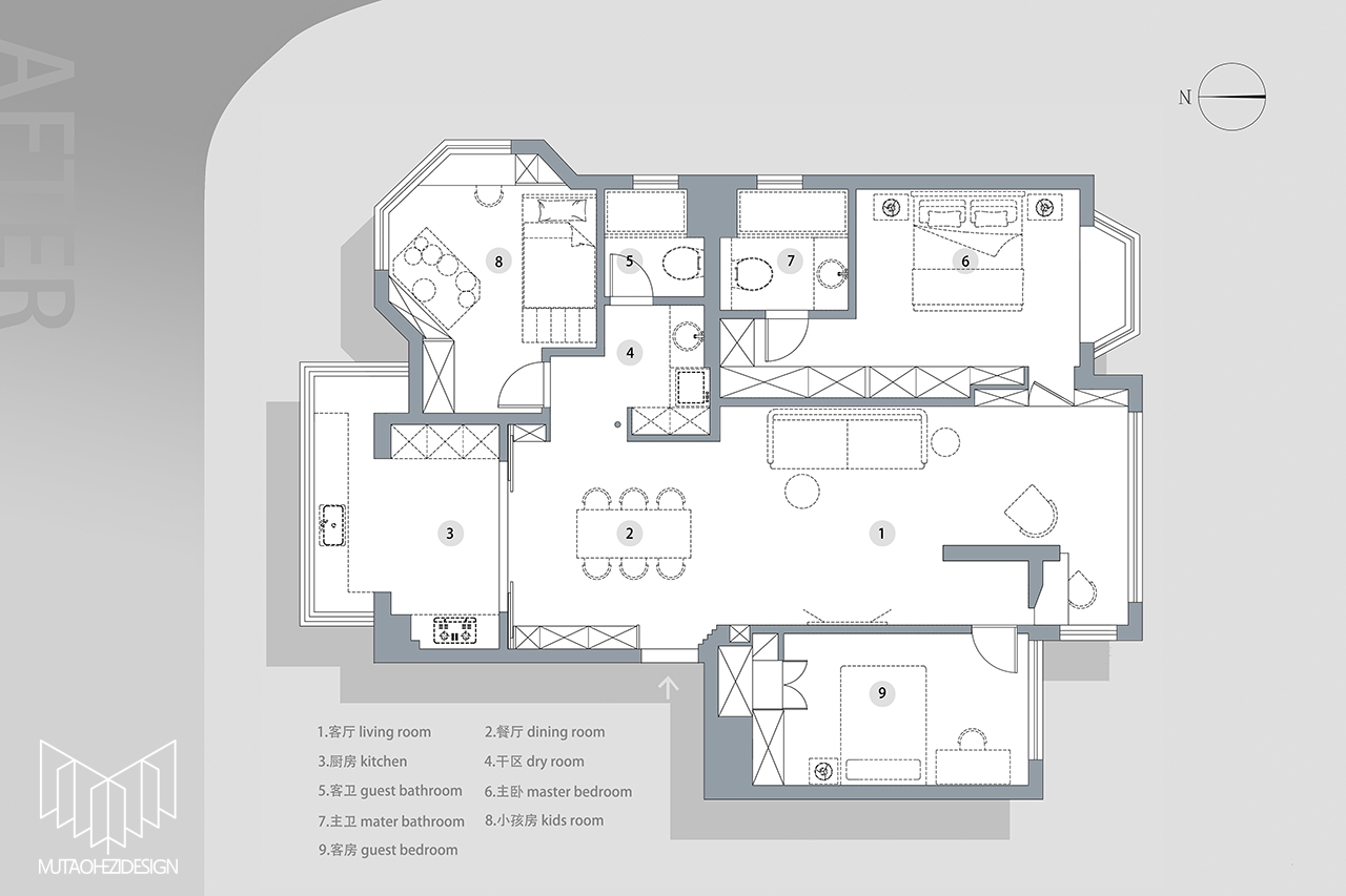
项目定位:本案是一套旧房改造,原有结构不够合理。因此做了以下优化处理: 1、客厅和次卧室对调,让客厅和餐厅一体化,让整个空间规整明亮,通风顺畅,光线通透。 2、鸡肋的北阳台归纳给厨房,扩大了厨房面积,增强实用性趋于合理,同时拆除墙体后,增加采光量,视线开阔。 3、南阳台归纳于客厅,进一步增大客厅面积,同时利用承重墙体结构,制作写字台,增强互动性,让阳光真正洒进客厅。 4、洗衣机烘干机嵌入柜体,至于公卫干区,并制作储物柜用于存放洗衣用品及杂物,让整个空间更加整洁。 5、微调主卫墙体,调整主卧和主卫之间的面积关系,置入
-
空间意境:本案是一套旧房改造,原有结构不够合理。因此做了以下优化处理: 1、客厅和次卧室对调,让客厅和餐厅一体化,让整个空间规整明亮,通风顺畅,光线通透。 2、鸡肋的北阳台归纳给厨房,扩大了厨房面积,增强实用性趋于合理,同时拆除墙体后,增加采光量,视线开阔。 3、南阳台归纳于客厅,进一步增大客厅面积,同时利用承重墙体结构,制作写字台,增强互动性,让阳光真正洒进客厅。 4、洗衣机烘干机嵌入柜体,至于公卫干区,并制作储物柜用于存放洗衣用品及杂物,让整个空间更加整洁。 5、微调主卫墙体,调整主卧和主卫之间的面积关系,置入
-
空间布局:本案是一套旧房改造,原有结构不够合理。因此做了以下优化处理: 1、客厅和次卧室对调,让客厅和餐厅一体化,让整个空间规整明亮,通风顺畅,光线通透。 2、鸡肋的北阳台归纳给厨房,扩大了厨房面积,增强实用性趋于合理,同时拆除墙体后,增加采光量,视线开阔。 3、南阳台归纳于客厅,进一步增大客厅面积,同时利用承重墙体结构,制作写字台,增强互动性,让阳光真正洒进客厅。 4、洗衣机烘干机嵌入柜体,至于公卫干区,并制作储物柜用于存放洗衣用品及杂物,让整个空间更加整洁。 5、微调主卫墙体,调整主卧和主卫之间的面积关系,置入
-
设计选材:客厅、餐厅等公共空间的顶面及墙面使用肌理感很强的仿水泥艺术涂料。
-
用户体验:客户入住后满意度很高!
本案是一套旧房改造,原有结构不够合理。将客厅和次卧室对调,让客厅和餐厅一体化,让整个空间规整明亮,通风顺畅,光线通透。 入户的第一视角。改造后客餐厅一体化,给人通透明亮。简约的造型,克制的色调,整体氛围把控恰当。
客厅整体色系控制为统一,去除对比,灰色、白色、木色、铬色交叉出现,彼此包容、平衡。全屋客餐厅区域采用内凹黑色金属踢脚线,增加细节处理。
客厅全景,右侧为电视墙面,材质是仿水泥艺术涂料,次卧隐形门和电视墙面一体化,符合整体简约氛围,蓝色槽缝线条和沙发背景壁龛蓝色槽缝呼应,增加趣味和细节记忆点。
客厅看向主卧门,远处是原有的阳台,现已归纳于客厅,让采光和通风以及视觉得到优化。顶部也保留电动晾衣架,不用时采用风琴帘遮挡,让实用和美观兼得。
电视墙处看向主卧门,整体简约克制。近处是不可动混凝土墙体,顺势做弧形处理,和沙发墙面呼应。
L型墙体为不可动混凝土部分,此墙也刚好处理为次卧门和主卧门之前的挡墙,让两个空间增加私密性。后方放置写字台,写字台与墙的结构留缝形成重叠,气、光、行、情互通。
客厅沙发墙面和主卧门处理为统一立面,整体中有细节。蓝色脱缝勾勒处壁龛和柜体边界。脱缝处理也是为了处理两种材质之间的平面对接关系。
沙发墙面,铬色、白色、灰色,少量的蓝色。壁龛内也暗藏线性灯光。
此墙为混凝土,也刚好处理为次卧门和主卧门之间的挡墙,让两个空间增加私密性,后方放置写字台。
右侧为电视墙面,材质是仿水泥艺术涂料,次卧隐形门和电视墙面一体化。阳台选用电动蜂巢帘,有全透、半透、不透三种选择。
客厅角落现场制作的写字台。
客厅看向餐厅。客厅和餐厅边界较为模糊,其实没有必要过于清晰,在满足功能后,通过家具和灯光的布置就能划分出各自的领地。
餐厅看向厨房。左侧为定制的鞋柜衣柜,黑色区域为入户门边框。厨房采用窄框同步移门,增加开启范围,有开放式厨房的体验,也保留关上后隔绝油烟的功能。
餐厅看向入户门。远处为电视墙面的壁龛,可放置视听设备。
原厨房面积过小,所以将鸡肋的北阳台归纳给厨房,扩大了厨房面积,增强实用性趋于合理,同时拆除墙体后,增加采光量,视线开阔。
左侧为两台内嵌式冰箱和蒸烤箱,中间黑色为窄边同步移门,右侧为客卫干区。
左侧为两台内嵌式冰箱和蒸烤箱,中间黑色为窄边同步移门,右侧为客卫干区。
主卧区域,无论在家具选型还是色彩控制上都做到克制。
主卧室床头背景。
主卧和通往卫生间的过道处理上,通过黑白色彩的强烈对比,色块分界处嵌入可调色温和亮度的线性光源,和整体氛围协调,时尚现代。
主卧床头。
大量黑白柜体之间置入木色多功能台面,同时搭配灯光,实用美观兼得。
主卫空间同样采用黑白搭配。
主卫黑色门口放置全身镜,扩大空间感受,也增加了实用性
客卫干区看向客卫。
客卫干区洗衣机烘干机柜。右侧为储物柜。
客卫干区,储物柜背墙同时也起到干区和餐厅遮挡划分作用。定制不锈钢铬色立柱和沙发后吊灯呼应,样式上和整体协调,同时也起到保护墙角的功能。
原始结构图
平面布置图

