完美手工


作品说明
- 项目类型:零售
- 项目地点:郑州市
- 建筑面积:500.0000㎡
- 项目造价:150.0000万元
- 主案设计师: 李战强
- 参与设计师:李战强、李世杰
- 竣工时间:2020-09-20
- 设计机构:YI&NIAN壹念叁仟
-
项目定位:旨在打造一家集合编织、刺绣、手工diy等各式玩乐展览于一体的生活美学馆。
-
空间意境:建筑保留原有采光窗最大程度引入自然光线,临窗设置休闲区和洽谈区,在编织盒子里,感受阳光、手工、和宁静,小鸟灯浮动着明媚的阳光、欢笑的暖意,让我们在复杂的交织关系中也不会迷失自我。
-
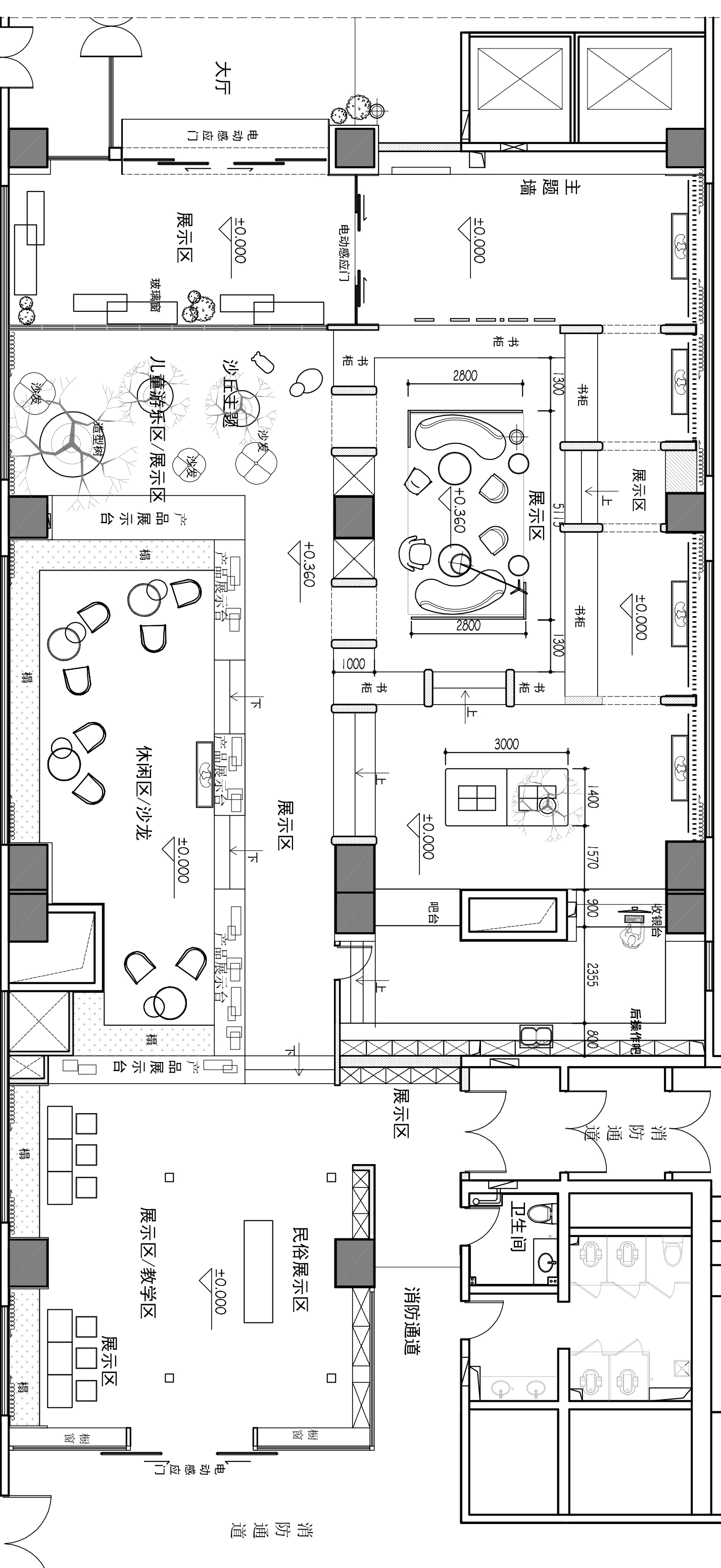
空间布局:在布局上,我们采用下沉、抬高、围合,阅读、体验、分享……编织工艺和布艺围合的半通透空间为多种场景下的功能布局提供可能。
-
设计选材:木纹pu膜,塑胶地面,穿孔板。在材料上我们最大程度的结合手工、布艺、及编织元素,从标识延伸到家具组合,在软装系统中融合编织工艺形成手工艺与品质感的对比,赋予空间新的体验。
-
用户体验:通过叠加营造多元生活方式使得空间体验氛围更加浓烈。保证空间串联又兼顾动线趣味体验
巨大的拼布作品上表现的是河南科技出版社举办的中国国际手工文化创意博览会的标志—蜂鸟。
布艺装饰可以加强室内空间的划分和增强空间效果。 布艺创造的温馨氛围给人的心灵带来了安慰,营造了一个宁静的空间氛围。
在机器批量生产的时代,手工制品愈显珍贵。手工成品各不相同,凝聚了制作者的创意和灵感,受到追求个性崇尚自然的人们的喜爱。
建筑保留原有采光窗最大程度引入自然光线,临窗设置休闲区和洽谈区,在编织盒子里,感受阳光、手工、和宁静,小鸟灯浮动着明媚的阳光、欢笑的暖意,让我们在复杂的交织关系中也不会迷失自我。
在毛线编织的树形装置支撑与通透的自然采光中,建立出一种人与自然、生活、文化之间的美妙关系。布艺创造的温馨氛围给人的心灵带来了安慰,营造了一个宁静的空间氛围。
在材料上我们最大程度的结合手工、布艺、及编织元素,从标识延伸到家具组合,在软装系统中融合编织工艺形成手工艺与品质感的对比,赋予空间新的体验。

