建业 | 周口·山水湖城售楼处



作品说明
- 项目类型:样板间/售楼处
- 项目地点:周口市
- 建筑面积:1200.0000㎡
- 项目造价:230.0000万元
- 竣工时间:2020-07-10
-
项目定位:售楼处的建筑主体为“飞扬的音符”,基于这样的建筑设计理念,将直线与弧线在室内设计中有韵律的穿插,以人与自然和谐共处作为主要的设计理念,用流动性的线条和流水的律动等自然元素,结合简洁、典雅、精致的现代表现手法,为人们打造出不一样的空间感官体验。
-
空间意境:设计以人与自然和谐相处为出发点,在空间中打造了一个中央花园。流动性的线条结合有机绿植,为人们营造出一个伊甸寻梦、绿叶丛林的感官空间。
-
空间布局:灵动的鲸鱼雕塑在律动的水流下也显得熠熠生辉,用植物、动物、水等元素呼应了自然的主题。走入洽谈区就像走入了艺术走廊,这里用了荷兰艺术家Levi Van veluw 的艺术作品,将当代艺术融入自然空间,给空间体验者带来美轮美奂、赏心悦目的视觉体验。
-
设计选材:将植物运用到各类灯具中,让光影也成为一种自然元素之一,赋予空间以灵动之美。
-
用户体验:回归自然,在繁忙的城市生活,在这个被赋予诗意的空间中,觅得属于自己的一隅清静。设计的本身是时尚的,它赋予空间特有的情感,每一次的选择都关乎我们对家、对生活方式的理解和感知,这是空间与美的连接,是艺术与家的融合。
山水湖城售楼处 中庭 山水湖城位于河南省周口市川汇区,售楼处的建筑主体为“飞扬的音符”,基于这样的建筑设计理念,将直线与弧线在室内设计中有韵律的穿插,以人与自然和谐共处作为主要的设计理念,用流动性的线条和流水的律动等自然元素,结合简洁、典雅、精致的现代表现手法,为人们打造出不一样的空间感官体验。
山水湖城 售楼处
山水湖城售楼处 中庭 进入前厅,放眼望去,温室花园映入眼帘。生机勃勃的植物在灯光的照耀下显得格外郁郁葱葱。 设计以人与自然和谐相处为出发点,在空间中打造了一个中央花园。流动性的线条结合有机绿植,为人们营造出一个伊甸寻梦、绿叶丛林的感官空间。生动的鲸鱼雕塑在律动的水流下也显得熠熠生辉,用植物、动物、水等元素呼应了自然的主题。
山水湖城售楼处 中庭
山水湖城售楼处 沙盘区
山水湖城售楼处 沙盘区
山水湖城售楼处 洽谈区 走入洽谈区就像走入了艺术走廊,这里用了荷兰艺术家Levi Van veluw 的艺术作品,将当代艺术融入自然空间,给空间体验者带来美轮美奂、赏心悦目的视觉体验。此处也将植物运用到各类灯具中,让光影也成为一种自然元素之一,赋予空间以灵动之美。
山水湖城售楼处 洽谈区
山水湖城售楼处 洽谈区
山水湖城售楼处 洽谈区
山水湖城售楼处 洽谈区细节
山水湖城售楼处 洽谈区细节
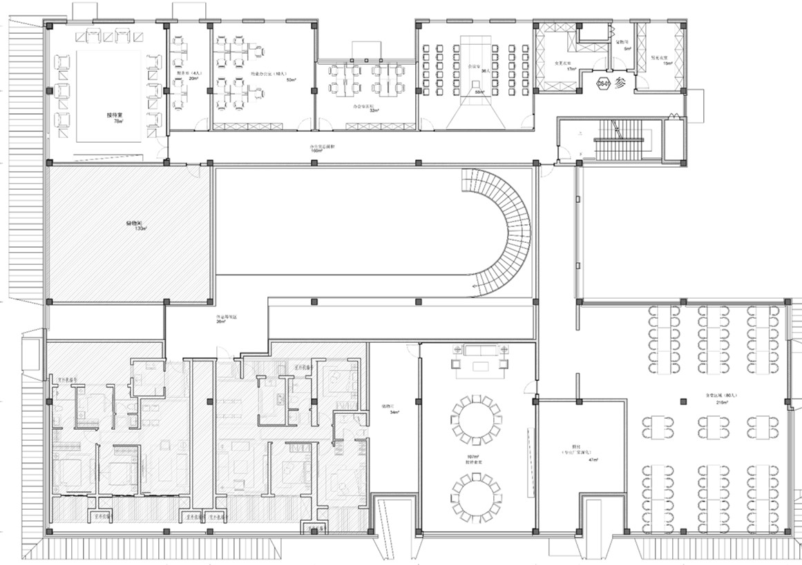
一层平面
二层平面

