镇江·江南岸别墅
314
作品说明
- 项目类型:别墅
- 项目地点:镇江市
- 建筑面积:960㎡
- 项目造价:550万元
- 主案设计师: 李朋
- 参与设计师:李朋
- 竣工时间:2020-10-07
- 设计机构:镇江万家基和装饰公司
-
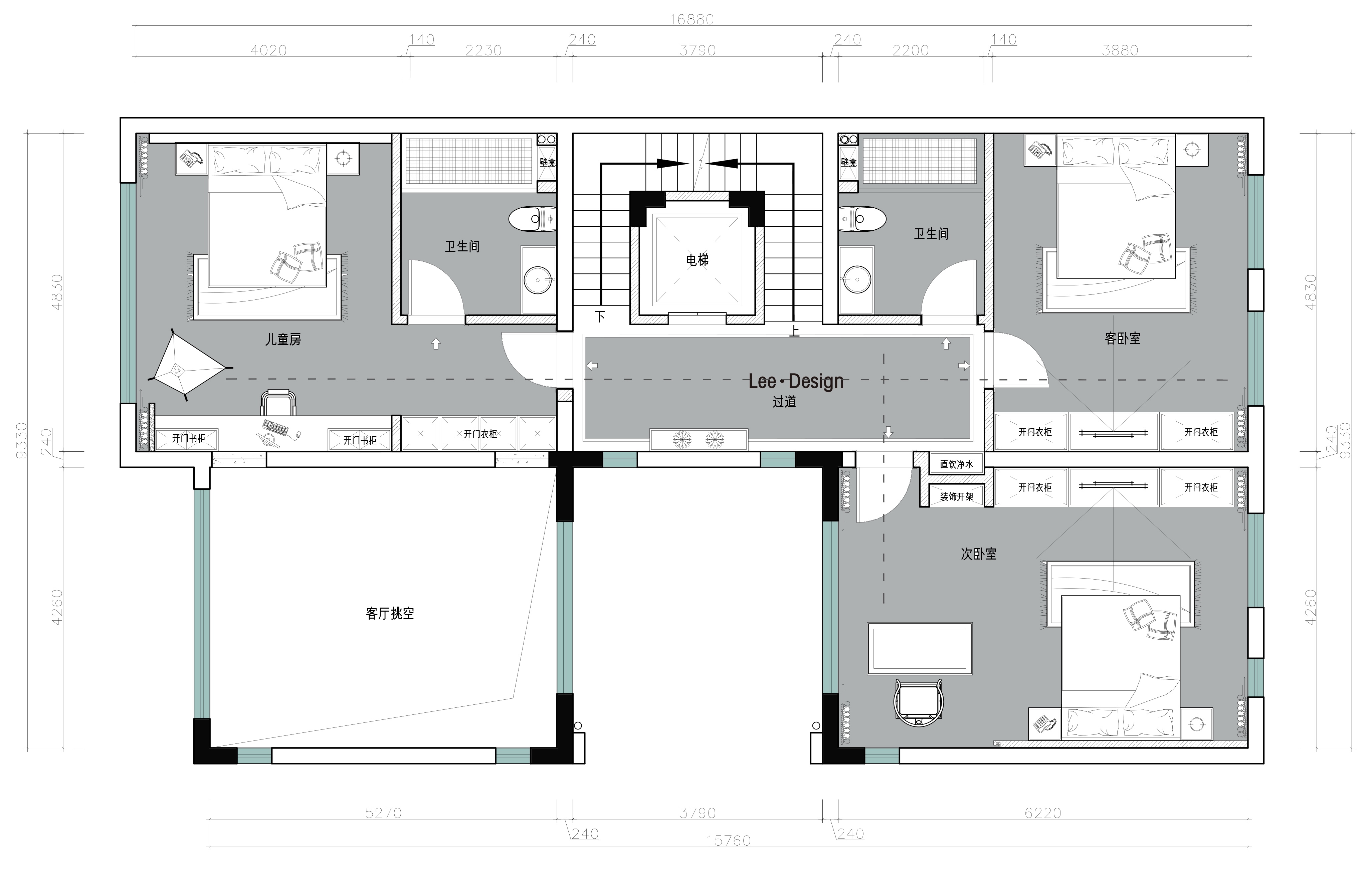
项目定位:江南水乡中式院落
-
空间意境:结合整个楼盘的徽派建筑风格,营造出一种内敛的中式风格
-
空间布局:布局合理,动静分开,动线流畅
-
设计选材:墙布、石材、皮革硬包、金属线条等
-
用户体验:业主对负一层影音室及娱乐设施使用频率非常高,对空间布局也非常认可
1
1

认证 · 让您身份增值