旧时岭南·顺意
396
作品说明
- 项目类型:餐饮
- 项目地点:佛山市
- 建筑面积:418㎡
- 项目造价:50万元
- 参与设计师:郭清华
- 竣工时间:2020-05-28
- 设计机构:广东菲迅和邸建筑设计工程有限公司
-
项目定位:顺意顺德家乡菜是致力于成为顺德美食的传承者的优秀品牌。顺德作为世界美食之都,粤菜发源地之一,在八方食客的心中都有着无与伦比的吸引力。本项目将岭南文化与顺意顺德家乡菜品牌文化相结合,立足于项目的选址——位于老城中心的佳宁娜酒店侧门,进行量身定制设计,打造出适合周围消费人群属性、符合顺德菜味道本质、迎合外来消费人口尝新的五感六觉式食府。
-
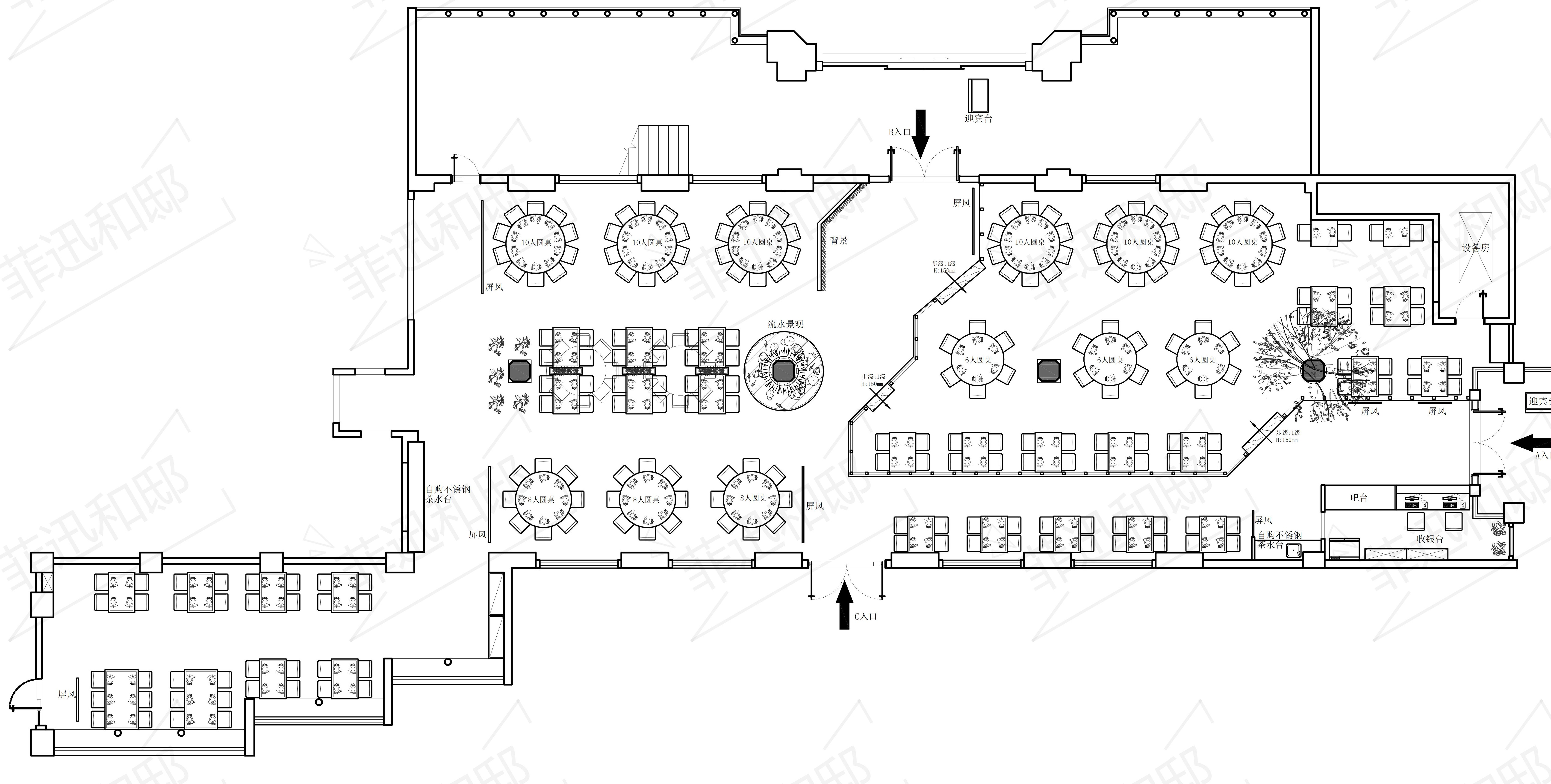
空间意境:“岭南底蕴厚,广府文化多。”为了让来客更好地体验当地文化特色,本项目选取岭南文化中的代表之一“岭南八景”作为落地方向。视听触嗅知觉与味觉交融,通过划分偏厅,打造“岭南八景”。
-
空间布局:本项目的入口有两处,从酒店外直接进入食府,左手边是八景之一的“桃园”区,服务小桌散客;径直走是“岭南荟萃”区,服务小桌散客和大桌散客;转右穿过“岭南荟萃”走到一个偏厅是“荷花园”,服务小桌散客;同排另一个偏厅是“古灶薪传”区,有不同主题的包厢,分别是“古灶”、“绿舟”、“陶制”。不同景设不同陈设,有荷花池、有古树、有竹林、有锅耳屋、有蚝课墙,极有特色又和谐统一。在浮躁中寻求顺意,美味中寻求意义。
-
设计选材:主要采用灰瓦片和粗麻绳作为亮点材料,立柱贴饰仿古灰砖造景。门头做旧时角楼设计,既大气又简洁,简单点缀就能出效果。天花喷黑搭配喷漆方通,控制成本。最后用软装陈设丰满空间,绿色植物净化视觉。在高性价比要求下,营造出岭南风情的写意画卷。
-
用户体验:来到顺意顺德家乡菜,不单单是享受美食,更是文化之旅。在繁忙冗杂的城市中心,有那么一处天地,带给人的是情怀和乡情。常言道“念念不忘,必有回响”,留住回头客才是经营之本,改造后一位难求。
1
1

认证 · 让您身份增值