熊成猫串串锅
1231
作品说明
- 项目类型:餐饮
- 项目地点:北京市
- 建筑面积:240.0000㎡
- 项目造价:60.0000万元
- 主案设计师: 李娜
- 参与设计师:李娜、李志龙
- 竣工时间:2019-06-02
-
项目定位:时尚创新的室内设计颠覆了人们对串串锅店的传统印象。
-
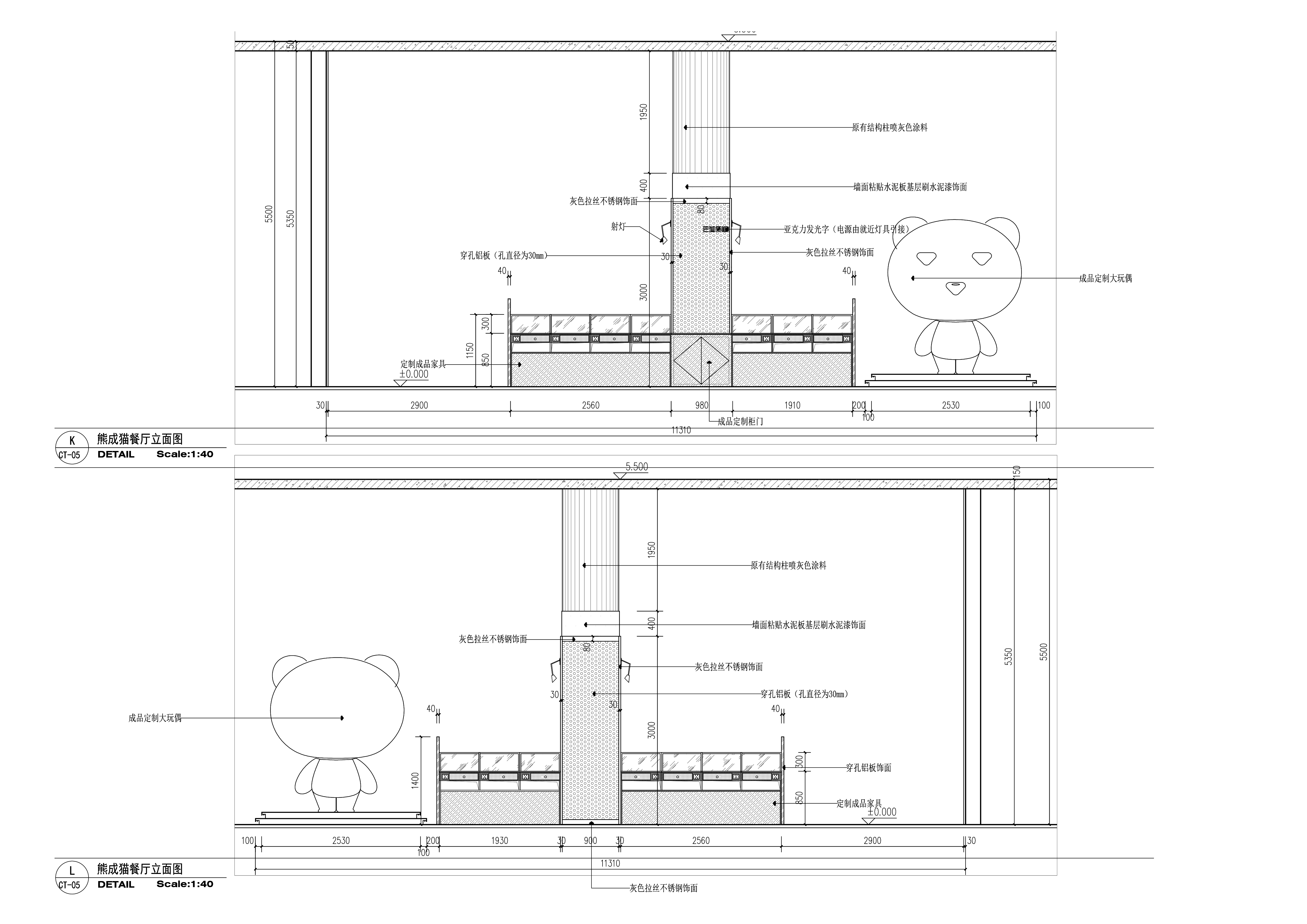
空间意境:我们想到了我们四川的熊猫,熊猫的呆萌可爱,深受全球的喜爱,容易给人印象深刻,便于记忆的品牌效应。首先从门头出发我们考虑当下流行的风格,同时加入我们的创意点。
-
空间布局:在空间布局上以单人,四人桌为主,强调空人们之间的交流。
-
设计选材:在选材上以金属材料为主,拉丝不锈钢与冲孔板。
-
用户体验:作品投入后受到顾客的喜欢,年轻人很喜欢来到这里与空间种的玩偶合影。
0
1

认证 · 让您身份增值