山语城别墅
130347 - 项目类型:别墅
- 项目地点:辽源市
- 建筑面积:420.0000㎡
- 项目造价:370.0000万元
- 主案设计师: 张引瑄
- 参与设计师:张引瑄
- 竣工时间:2019-07-30
- 设计机构:吉林省上止营造别墅设计机构
-
项目定位:别墅设计以人为本,为人设计以心为本。本案设计师不在意表面形式,不拘泥所谓风格,只将目光投射至业主的心灵,看到了他们深层次的精神诉求和意识中高度契合的人生观。这个家宛如一个梦境,是一份浪漫、纯真、美好的“初梦”,这个梦承载着这对中年夫妇对这场相恋的纪念、对两人相爱半生的印记、对他们相守一生的期意。
回首悠悠岁月、匆匆韶华,也无法忘怀,刚刚在一起时那份最纯真、纯美的梦。这份“初梦”是人生最珍贵的,所有的幸福都源于对这份“初梦”的守护。设计师将这份“初梦”已绝妙的方式还原成现实,将一个如梦一般 -
空间意境:本作品不拘泥于所谓风格,设计师主张去风格化设计。以浪漫纯美作为表达的意境,设计师将白色作为这座梦幻天堂的主色调,用米色、咖色等统一的色彩绘制了一幅纯美的画面,奠定了空间的感觉和基调。用柔和的圆角处理方式弱化边界的棱角,将顶面的纯铜金属封边、白色木质墙板的纯铜金属封边和地面理石的纯铜金属封边精致化、圆润化。统一和谐的设计手法、高贵优雅的材质搭配、精美绝伦的施工工艺,描绘出一个理想化纯净、甜美、高贵又富有情调的艺术空间。
-
空间布局:本作品将原始入户方式进行改变,添加曲径通幽又豁然开朗的中式建筑文化理念。使得这种先抑后扬的入室感觉与建筑本身的美感浑然一体,将建筑本身的优势发挥到极致,挑空空间的张力和美感贯通整个一层二层。三层夫妇二人主卧设计,开放通透、各个空间与功能相互联动、隔而不断,空间气场与动势形态相交呼应。整个空间这气质既有国际范大宅别墅的通透性,又有唯美浪漫朦胧内敛的中式文化。
-
设计选材:设计师就是一个造梦者,在让这个梦实现的途中,因梦想和现实的差距,整个设计还原的途中总有重重困难。如负一层入户和一层大厅电视背景墙上,宽度为三毫米的铜丝与理石交接的工艺;还有每一块白色木质墙板上,纯铜金属条四角的倒角与无缝热压镶嵌工艺;再比如白色天然理石和铜条镶嵌,且预防理石受潮反碱的高级工艺。整个方案落地还原困难重重。但还原这个“初梦”是设计师的“初心”,在反反复复研究实验,日日夜夜呕心沥血的努力下,最终设计师以梦想战胜了现实,让这份“初梦”完美的呈现、精致的还原。
-
用户体验:设计师的服务对象是客户,所有的创想与理念也均从客户的气质文化、追求与夙愿中产生。设计师从客户本身实际出发,体会客户所需、客户所愿,尽心为客户打造一个心意的居所。客户从设计时期到最终入住,一直都对设计师的设计思想、专业指导、尽职尽责十分满意。入住后也不忘联系设计师上门拍照、热情相待。
别墅设计以人为本,为人设计以心为本。本案设计师不在意表面形式,不拘泥所谓风格,只将目光投射至业主的心灵,看到了他们深层次的精神诉求和意识中高度契合的人生观。这个家宛如一个梦境,是一份浪漫、纯真、美好的“初梦”,这个梦承载着这对中年夫妇对这场相恋的纪念、对两人相爱半生的印记、对他们相守一生的期意。
客厅的挑空空间端庄大气,一层与二层沆然一气浑然天成。设计师将建筑结构本身的美和特质发挥得淋漓尽致。方圆之间,东西南北,气场融合,完美统一。硬装结构与软装家具线条搭配曲直之间有种乐章般的自然韵律。
设计师将纯净的白色作为这座梦幻天堂的主色调,用温暖的米色、高雅的咖色、柔和的灰白色绘制了一幅纯美的画面,奠定了整个别墅空间的感觉和基调。统一的色彩和谐的融为一体,明暗关系有致、深浅变幻不一。
用柔和的圆角处理方式弱化边界的棱角,将顶面的纯铜金属封边、白色木质墙板的纯铜金属封边和地面理石的纯铜金属封边精致化、圆润化。统一和谐的设计手法、高贵优雅的材质搭配、精美绝伦的施工工艺,描绘出一个理想化纯净、甜美、高贵又富有情调的艺术空间。
设计师就是一个造梦者,在让这个梦实现的途中,因梦想和现实的差距,整个设计还原的途中总有重重困难。如负一层入户和一层大厅电视背景墙上,宽度为三毫米的铜丝与理石交接的工艺;还有每一块白色木质墙板上,纯铜金属条四角的倒角与无缝热压镶嵌工艺;再比如白色天然理石和铜条镶嵌,且预防理石受潮反碱的高级工艺。整个方案落地还原困难重重。但还原这个“初梦”是设计师的“初心”,在反反复复研究实验,日日夜夜呕心沥血的努力下,最终设计师以梦想战胜了现实,让这份“初梦”完美的呈现、精致的还原。
设计的精巧之处在于细节,统一的设计语言、设计形式、设计符号都展露着设计师对作品独到的精雕细琢。线条、纹理、材质、造型反复的出现会形成强烈的气势,也就是一种气场。单品展现于小场、整体造型展现于整体空间。让统一形成一种强大的动势和力量,从而整个空间端庄瑞丽、高雅尊贵。
相对于一层空间的唯美浪漫、高端雅致,负一层的感觉更安逸自然、贴近生活。设计师将日常居家生活的繁杂琐碎化零为整,巧妙地把厨房、餐厅、客厅化为一个整体。让负一层的空间合理巧妙地加以运用,提高了负一层的利用率也扩大了加人的活动区域范围。这一层的灯光设计是由明到暗,自然光和人造光相结合的方式进行科学化设计。
二层是孩子们的生活空间成长空间,公共区域和楼梯间的感觉追随整体空间风格,把统一的设计语言展现的淋漓尽致。地面与楼梯的铺装采用天然理石,在土耳其灰、波斯灰和雅士白的交相辉映中再搭配入高级质感的双层纯铜金属条。共同结晶进行无缝处理后,四种纹理搭配出极为高贵精美的视觉感。
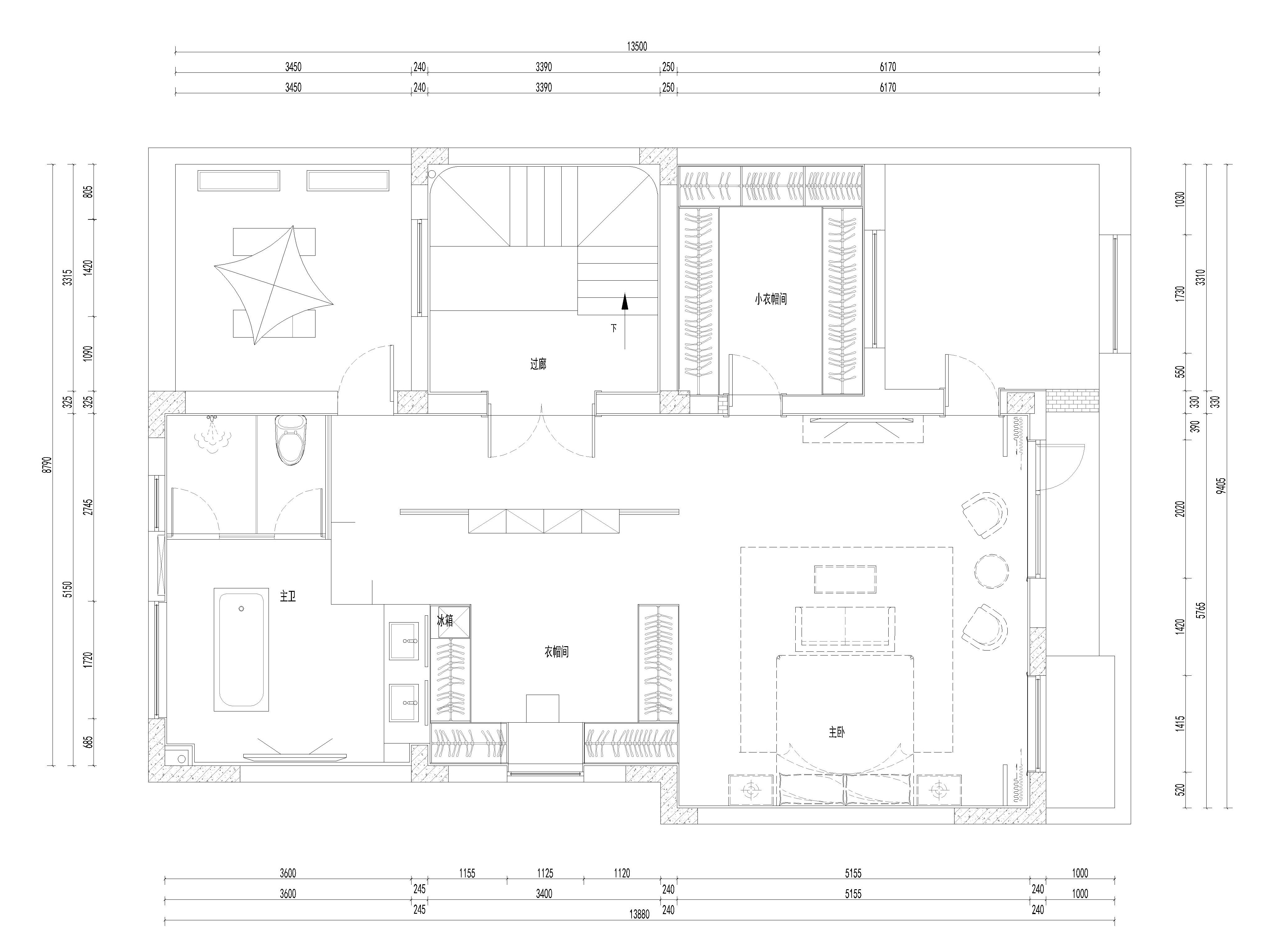
一个女孩最美的时刻,是对爱情与未来家庭充满幻想的爱做梦的年纪。一个永远貌美如花的女孩,是因为心中有爱、并被人所爱。业主夫妇二人至今都心怀初梦不曾遗忘,所以幸福是他们面庞的笑靥,幸福是他们世界的满足感。所以三楼空间以人为本进行开放大胆的处理,让整个空间国际化,高雅时尚的音符流动在其中,诗意浪漫的感觉在空气中荡漾。
空间最为强大的力量在于整体的统一,在整个设计中所有的方形尖角都进行了四分之一正圆的倒角处理,顶面、墙面、地面三方位立体合一。地面的人字拼地板和白色理石无缝拼接也是与顶面边吊的设计造型相互呼应。
卫生间与衣帽间半开放的设计增大了空间的体积感,在动势和流动性上这个空间畅通无阻,且不影响相对私密和隐蔽的特殊空间。半开放性卫生间材质的选择也是精挑细择,在浴屏和隔断的选择上,设计师选用朦胧迷幻的夹绢玻璃,这不仅满足私密性的需要还给生活带来一丝情趣。在墙地面铺装材质的选择上,采用高级进口仿理石瓷砖,避免了天然石材长期浸水受潮容易病变反碱的弊端,高雅端庄又洁净大方。
5
5

认证 · 让您身份增值