品茗之道


- 项目类型:住宅公寓
- 项目地点:台湾
- 建筑面积:270.0000㎡
- 项目造价:200.0000万元
- 主案设计师: 游濱綺
- 竣工时间:2018-03-30
- 设计机构:創研俬.集設計
-
项目定位:茶道
-
空间意境:新東方
-
空间布局:宜老智能空間
-
设计选材:atr decor
-
用户体验:住戶者的互動性
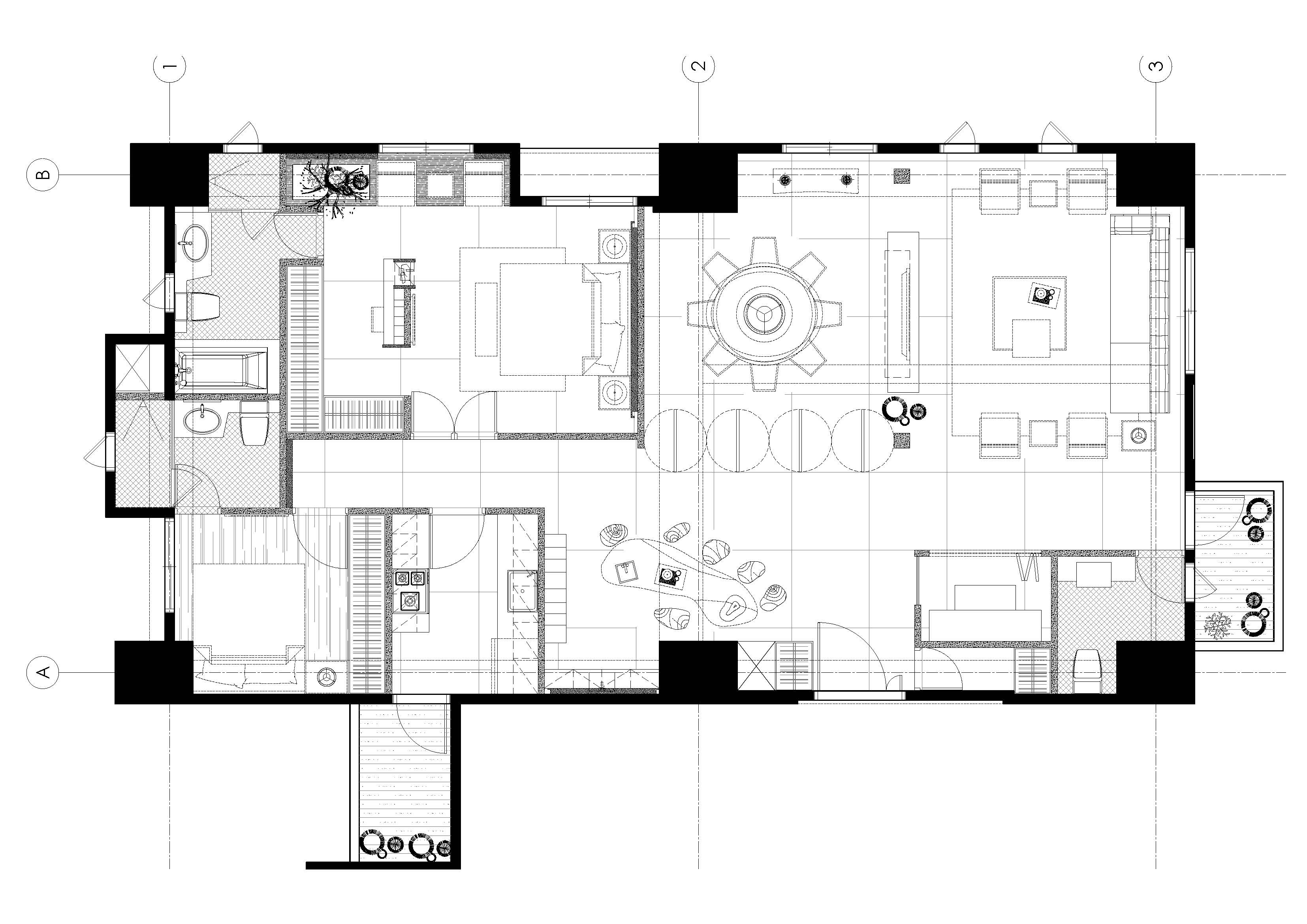
靜謐禪風調和東方意象,譜一曲悠揚的雋永人文藝術氣息… 第二階段的人生,本就該以悠閒、優渥的生活內容作開場,配合居住成員僅夫妻兩人的需求,融合高科技的智能環控與專業音響學的計算,完成合身且人性化的機能配置,風格設定上則調和日式禪風的閒逸和東方文明的古雅,致力新東方美學的演繹。 一進門的玄關適度的開放尺度,跳脫刻意分割或制式高櫃的思考,在平面規劃階段,就善用佛堂隔間催生隱藏式衣帽間,並將大門到餐廳格柵間的開放區域規劃為品茶區,讓第一眼的目光即能享受深邃且轉折分明的環景之美。 兩面開窗的客廳與同享採光面的餐廳之間,利用一道反應力結構的電視牆區隔客廳與餐廳空間,兩側上下皆留下視線與光影可自由流動的路徑,電視牆六個面都包飾紋理粗獷卻富雅趣的仿古石頭,增加多面向的觀賞價值,並以紮實的預鑄鋼構工法,強化上懸吊的安全穩定,上方因應鐵件結構抬升的天花板黑色燈溝線條一路延伸至餐廳區,掌握沈穩中軸線,也賦予視覺仰角的律動節奏。 餐廳的佈局主要考慮親族聚會功能,因此象徵團聚的圓形大餐桌居中安置,上方裝設華貴吊燈共構和諧比例。除了窗景之外,餐廳三個面皆有風景,以及六扇格柵軸心旋轉門,隨著門片開闔;餐廳的景深也隨之變化無窮。 佛堂的設計是種淬鍊過的雅緻,鐵灰色背景搭配木質天花板,勾勒靜謐莊嚴的基調,三個面都以金屬網格拉門界定,讓以往不好處理的佛堂能毫不突兀地融入空間。 為了框住主臥室的光線,以立體木框語彙,劃出窗框的區域,讓大量的陽光滋潤整個臥房空間,光與影的交織豐富格局與材質上的變化,床架的末梢以鐵件格屏區分梳妝空間,為空間注入時尚的奢華大宅氣息。主浴牆面使用大幅拼畫馬賽克彰顯藝術性,描繪極致抒情的視覺、感官享受. 中國茶道在於修身養性,悟在自我,空間本質上同茶道精神內涵,純淨.清寂.怡和,透過空間自明性, 憑藉著五感一心,人與場所的對話,經由心靈感受,延續鋪陳.昇華與啟發,如儒家中合思想,達成人與 空間和諧與平和. 新東方元素的創新,空間行為的改變提升居住品質,搭配全室智能系統,全自動門片管制室內空間,安全,宴會,獨享,品味時間透過空間分配區劃出各空間表達的特殊性與鍍鈦構件呈現細節之美。 古樸的覆面,以漸層方式做為色系的鋪陳加重視覺穩定性,粉色石材的運用柔化拘謹調性產生,如山水畫風的寫意「拖泥帶水皴」寫山石,瀟灑「直點」寫樹叢,完成一幅畫,擺設部分,更如同渲染方式去用心的營造意境.

