瞬間永恆
833
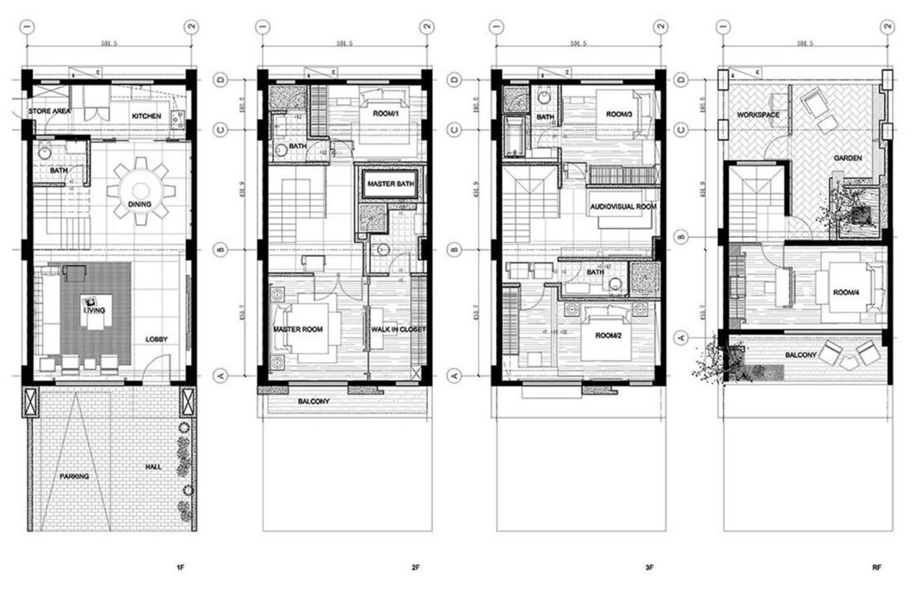
作品说明
- 项目类型:住宅公寓
- 项目地点:常州市
- 建筑面积:450.0000㎡
- 项目造价:500.0000万元
- 主案设计师: 游濱綺
- 竣工时间:2019-06-02
- 设计机构:創研俬.集設計
0
0

认证 · 让您身份增值