万科花园和城别墅《筑爱别院》
1131
作品说明
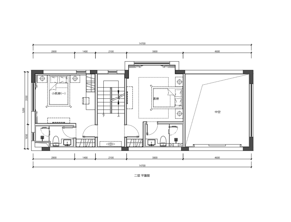
- 项目类型:别墅
- 项目地点:东莞市
- 建筑面积:300.0000㎡
- 项目造价:6500.0000万元
- 参与设计师:王华磊、尤义俊、沈兹畑、胡娟、欧阳瑞芬
- 竣工时间:2019-11-15
- 设计机构:壹新设计(深圳)有限公司
-
项目定位:本案是软硬装全屋定制设计,基于业主的信任,我们从软硬装设计到施工整体把控,过程中虽然涉及到各个界面的交互问题,但是在团队的默契协作下,我们通过平衡空间几个界面的关系,解决了许多的细节问题,让空间更好的落地,呈现出预期的品质效果。
-
空间意境:风调皮的掀开了纱幔,仿佛不经意间就能看见餐桌上的可口美食,家人之间其乐融融,窗外绿竹随风而动,屋子里的剪影精灵般跳跃着,层层叠叠的踏步形成一种秩序,同时又是空间的一处装置,蓝色的亚克力画作最为惹眼,既有一分山水意境,又多了一分时尚前卫。
院子里,风景无时无刻都在变幻着,阴晴不定、时间推移,皆有其自然之美,高低错落,井然有序,闲坐在树下,光影斑驳于身,看着孩子们嬉戏追逐,青苔、绿植、碎石都有着岁月静好的样子。
-
空间布局:我们希望透过光、空间、材料相互的关系带给感官一种微妙的平衡,打造当代生活美学框架,以简洁、素雅的空间体系表达,希望主人回到家是一种轻松、舒适的状态,随着时间、岁月的流逝,家与人的情感愈加浓厚细腻。
-
设计选材:光透过薄薄的纱帘,悠悠撒落在房间里,便莫名多了一分让人心生安详的气息,一切归于平和,米色的大理石承载着,温润的木饰面包裹着,自然而温暖,高低错落的圆圈吊灯悬挑下来,一只可爱的气球狗(杰夫·昆斯的艺术作品)凝望着,多了一分随性和趣味,大幅画作又诉说了一分深邃和悠远,庭院中那株枫木对景,增添了丝丝宁静惬意的氛围。
-
用户体验:鲜明的几何地毯,黄色的睡枕,大大的飞机结构背景,错落的圆球灯,色彩跳跃,活泼有趣,都是小朋友喜欢的样子。
这个家是不但只是一目了然的廓形,
更是一壶茶、一杯酒,可以慢慢细品,
渐渐与主人融合产生一种温度、质感.....
0
0

认证 · 让您身份增值