DR.NIE和他的孩子们儿童齿科诊所(凯德广场店)
3384
作品说明
- 项目类型:公共
- 项目地点:西安市
- 建筑面积:240.0000㎡
- 项目造价:80.0000万元
- 参与设计师:钮俊
- 竣工时间:2019-04-30
- 设计机构:苏州麦贝贝建筑空间设计有限公司
-
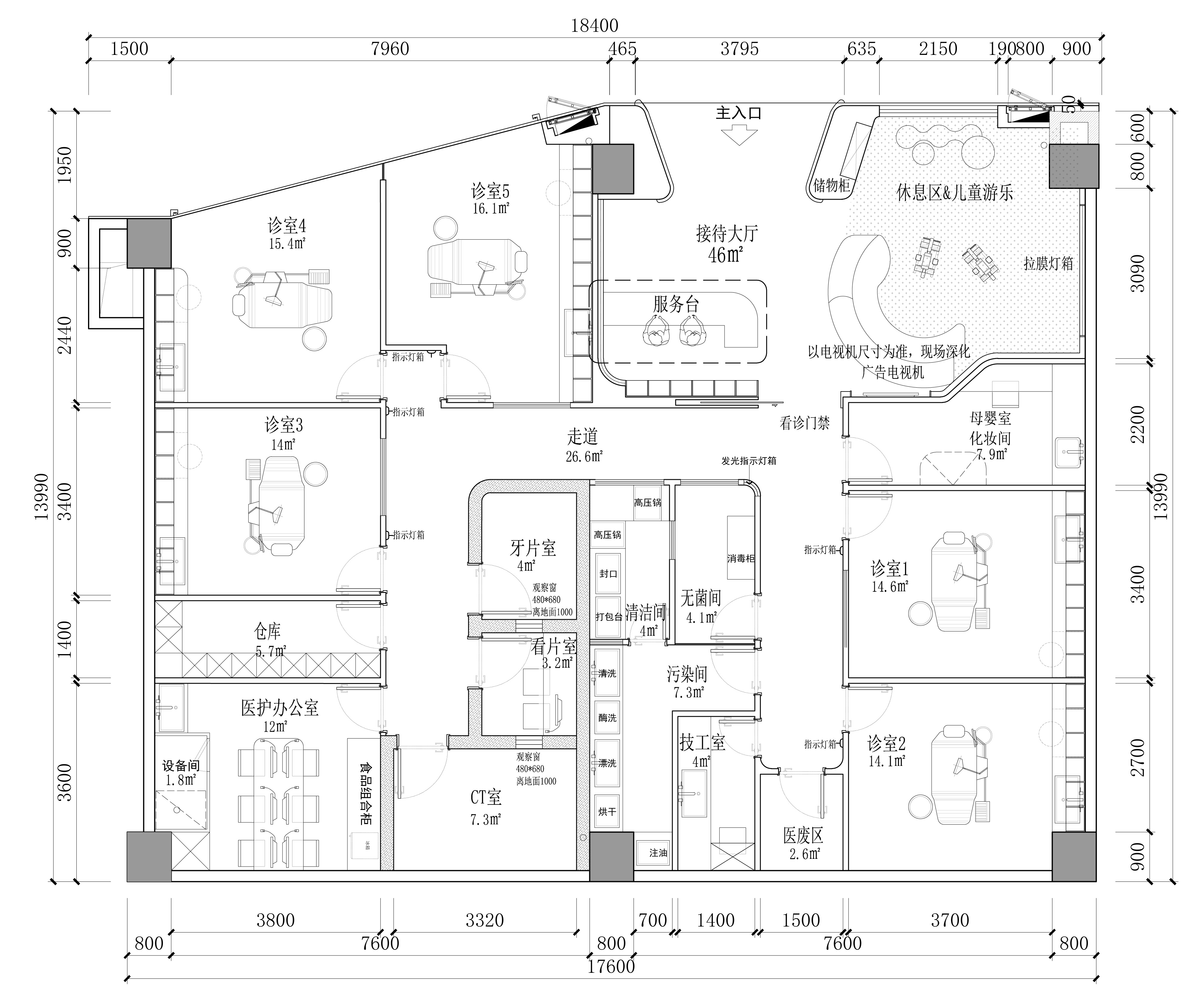
项目定位:全国第一家儿童齿科诊所品牌,精准定位了儿童为目标客户人群,所以我们的诊所设计更加的聚焦围绕儿童的需求展开,同时也刷新家长们对牙科诊所的认知,给到顾客超预期的消费体验,开拓了儿童齿科行业的一个细分市场。
-
空间意境:我们打破传统牙科诊所街边店的模式,率先入驻商业综合体,打造新型的齿科就诊模式,将其高端的品牌定位和温馨的空间氛围融为一体。更高效的给顾客节省了宝贵的时间,给孩子看牙的同时家长们完全可以放心的去购物,孩子们享受到的是一对一的托班式服务。
-
空间布局:空间没有锐角,物理和心理上都给到顾客充分的安全感,消除紧张的就诊情绪。
-
设计选材:墙面大面积使用了环保的科技木皮为主。
-
用户体验:我们的设计理念是在游乐园里打造齿科诊所,环境上给到孩子们舒适和自在感,投入后确实获得了广大好评。配合诊所医生的精湛技术,有孩子在拔牙时睡着的情况,孩子们看牙的恐惧感消除了,为前来的家庭带来了不一样的体验。
0
1

认证 · 让您身份增值