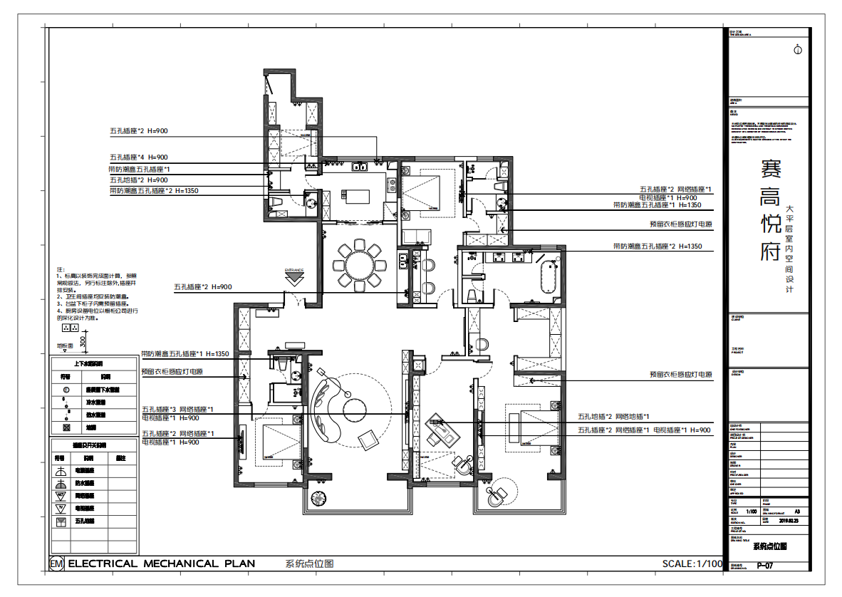
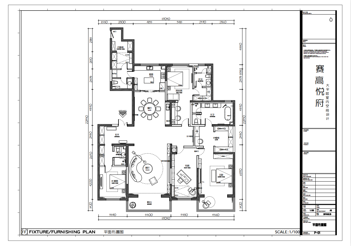
赛高悦府


作品说明
- 项目类型:私宅
- 项目地点:西安市
- 建筑面积:330.0000㎡
- 项目造价:150.0000万元
- 参与设计师:王玮
- 竣工时间:2019-12-31
- 设计机构:木赢设计
-
项目定位:轻奢不属于某种风格,可以说它是一种调性;一种生活态度或者是一种消费观念。超越了珠光宝气、奢华昂贵,是一种健康而又理性的态度和消费观念。比起外表的奢华浮夸更注重细节和内在的精致优雅。
-
空间意境:摒弃多余的装饰,保持简洁的外观造型,将重点放在了品质与细节上,降低华丽程度,达到低调的奢华是轻奢的主要特点。也是大多数人所追求的理想生活。
-
空间布局:整体感觉素净淡雅而又不失奢华,优雅精致却又不失生活气息。
-
设计选材:时尚的现代家具和造型简洁的硬装背景,让这个空间拥有了不可抗拒的魅力。
厨房餐厅采用一体化的设计,色调与客厅保持一致。奶茶色的储物柜增加空间的轻奢感,纤细垂直的柜体分割线条,打造出干净利落的就餐环境。 -
用户体验:开放式的布局充分的利用了大平层的优势,整体空间看起来开阔而又自在。
轻奢不属于某种风格,可以说它是一种调性;一种生活态度或者是一种消费观念。超越了珠光宝气、奢华昂贵,是一种健康而又理性的态度和消费观念。比起外表的奢华浮夸更注重细节和内在的精致优雅。 摒弃多余的装饰,保持简洁的外观造型,将重点放在了品质与细节上,降低华丽程度,达到低调的奢华是轻奢的主要特点。也是大多数人所追求的理想生活。
客厅 客厅整体感觉素净淡雅而又不失奢华,优雅精致却又不失生活气息。时尚的现代家具和造型简洁的硬装背景,让这个空间拥有了不可抗拒的魅力。开放式的布局充分的利用了大平层的优势,整体空间看起来开阔而又自在。轻松的勾勒出一个轻奢空间。
餐厅 厨房餐厅采用一体化的设计,色调与客厅保持一致。奶茶色的储物柜增加空间的轻奢感,纤细垂直的柜体分割线条,打造出干净利落的就餐环境。搭配水晶吊灯、大理石台面吧台,成就了一个轻奢而又富有态度的空间。
玄关 简约的硬装造型,精心挑选的施华洛世奇水钻的装置画坐落在精致的玄关桌上,右侧放置水晶蘑菇造型饰品,俨然一副茂密树荫下的奇妙画面。细看装置画的工艺,以及家具细节收口都展示出了精致精湛的工艺技巧。
玄关末端 玄关末端的大气旋转桌奠定整个房间沉稳而又富有张力的基调。清晰的天然石材纹路,让政客空间更有层次感,低调中透露着点点奢华。

