木赢设计工作室


- 项目类型:商业
- 项目地点:西安市
- 建筑面积:220.0000㎡
- 项目造价:10.0000万元
- 竣工时间:2019-10-01
- 设计机构:木赢设计
-
项目定位:纯粹的情绪,应找到一处可以静默的地方让艺术与时光彼此相遇,也应该让你我相遇。
-
空间意境:希望空间是谦逊的,在原有空间的基础上让出一些尺度,将轴线拉平后给予空间原有的端庄,这正如我们做设计的态度。
希望空间是宏大的,空间作为载体,其边界的消融,让人和人的关系更加紧密。
希望空间是包容的,玻璃墙面的“虚”与漆面墙体的“实”形成宏大的夹角,以其包容的姿态迎接每一个人。 -
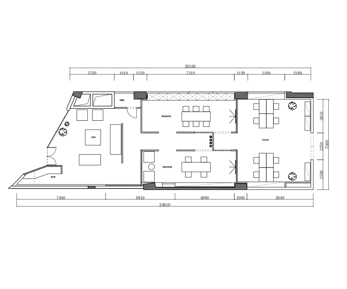
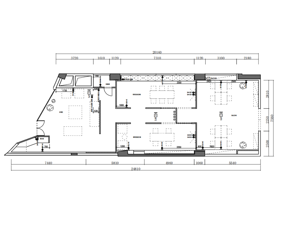
空间布局:开放的前厅,家具陈设的直线与曲线与空间白色装置呼应,诉说着几何美感。
-
设计选材:基础结构 拒绝了缤纷的色彩,灯的“点”、地角的“线”、壁的“面”————只留灰与白的交融,使得胚底一如画布。
但自由的留白似乎缺少一丝张力,于是克莱因蓝冷静而沉稳,形成一种特殊的孤独感,与前厅蓝色体块有了延续和反复性。
-
用户体验:作为空间使用者 ,主要表现为两种情景模式:一方面是工作时伙伴之间的隔空对话,另一方面是客人对设计如同观展的探索之旅。同时在另一维度上构成空间回转的“气韵”。
空间构成: 基础结构 我拒绝了缤纷的色彩,灯的“点”、地角的“线”、壁的“面”————只留灰与白的交融,使得胚底一如画布。 但自由的留白似乎缺少一丝张力,于是 克莱因蓝冷静而沉稳,形成一种特殊的孤独感,与前厅蓝色体块有了延续和反复性。 黑白人像,有种莫名的情绪,是平静? 是愤怒?是热烈?或是绝望?画面留给记忆做伴,时间里都会遇见自己。 黄铜的炙热光泽映射着壁上画中墨笔,视觉平行构成秩序的美。 绿色是生命力,枝叶给予了新生的可能,是象征自然的载体。 所以我期望,不仅是生活,还有设计要真实且鲜活。
空间故事线: 空间中镜头的截取让人于行走或驻留之间感受一场探索之旅,沿途的空间装置给人以思考感悟,以环绕空间形成循环又好似一场游戏...
设计理念: 纯粹的情绪,应找到一处可以静默的地方让艺术与时光彼此相遇,也应该让你我相遇。 空间故事线: 空间中镜头的截取让人于行走或驻留之间感受一场探索之旅,沿途的空间装置给人以思考感悟,以环绕空间形成循环又好似一场游戏... 空间逻辑: 我希望空间是谦逊的。所以我在原有空间的基础上让出一些尺度,将轴线拉平后给予空间原有的端庄,这正如我们做设计的态度。 我希望空间是宏大的,空间作为载体,其边界的消融,让人和人的关系更加紧密。作为空间使用者 ,主要表现为两种情景模式:一方面是工作时伙伴之间的隔空对话,另一方面是客人对设计如同观展的探索之旅。同时在另一维度上构成空间回转的“气韵”。 我希望空间是包容的,玻璃墙面的“虚”与漆面墙体的“实”形成宏大的夹角,以其包容的姿态迎接每一个人。开放的前厅,家具陈设的直线与曲线与空间白色装置呼应,诉说着几何美感。

