中建国熙台 腔调十足的现代主义


作品说明
- 项目类型:私宅
- 项目地点:西安市
- 建筑面积:220.0000㎡
- 项目造价:30.0000万元
- 竣工时间:2019-08-31
- 设计机构:木赢设计
-
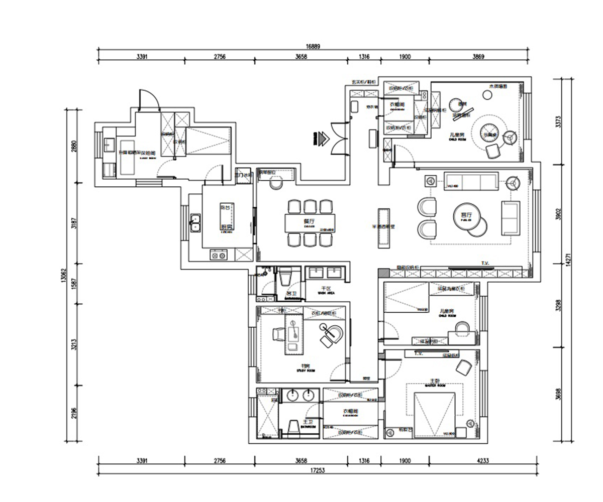
项目定位:这套大平层属于一个四口之家,父母与兄弟两人,他们对设计的要求简直可以用苛刻来形容。了解了他们喜欢单色、有线条感的图形和内饰,所以以现代极简风格为基调,明亮的橘色皮革来点缀。
-
空间意境:墙面部分的水磨石铺贴符合当下的流行趋势,与黑色的柜体搭配呈现一种雅致的美感。
整个公寓的布局通透,空间分布合理且直观,除开放式空间外,自然光可以进入到空间的每个角落,使公寓明亮,充满自然感。
-
空间布局:空间中没有明显的储物空间,而是在将储物空间进行了隐藏。
半开放的厨房空间更综合解决了家人的功能需求。 -
设计选材:走廊的色彩明亮,灯光充足,弥补了阳光不能直射的弊端,墙面上挂着我们为业主精心挑选的装饰艺术品。
半开放的厨房空间更综合解决了家人的功能需求。
儿童房选择清新随性的蓝色,为孩子的创造力留满了发挥空间,整体的格调也非常符合小朋友可爱的性格。 -
用户体验:让用户得到了更简单纯粹的休息空间
这套大平层属于一个四口之家,父母与兄弟两人,他们对设计的要求简直可以用苛刻来形容。了解了他们喜欢单色、有线条感的图形和内饰,所以以现代极简风格为基调,明亮的橘色皮革来点缀。
墙面部分的水磨石铺贴符合当下的流行趋势,与黑色的柜体搭配呈现一种雅致的美感。 整个公寓的布局通透,空间分布合理且直观,除开放式空间外,自然光可以进入到空间的每个角落,使公寓明亮,充满自然感。 空间中没有明显的储物空间,而是在将储物空间进行了隐藏,得到了更简单纯粹的休息空间。
走廊的色彩明亮,灯光充足,弥补了阳光不能直射的弊端,墙面上挂着我们为业主精心挑选的装饰艺术品。
半开放的厨房空间更综合解决了家人的功能需求。
主卧室的配色方案更为温馨,材质以干净简约的乳胶漆为主。
儿童房选择清新随性的蓝色,为孩子的创造力留满了发挥空间,整体的格调也非常符合小朋友可爱的性格。

