光晕
1289
作品说明
- 项目类型:住宅公寓
- 项目地点:常州市
- 建筑面积:100.0000㎡
- 项目造价:40.0000万元
- 参与设计师:周浩
- 竣工时间:2020-08-19
- 设计机构:常州鸿鹄装饰设计工程有限公司
-
项目定位:本案例的业主与设计师有一个特别的开场,设计师的第一份成品案例,业主初识于微博,喜欢上设计师的风格,比较巧合的是,设计师的第一位服务业主与此案例业主相识,由此便开始了这一场“设计之旅”。
-
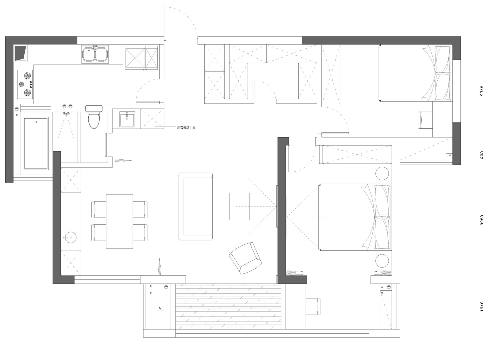
空间意境:如何在散漫金属材质的现代环境中,呈现自然的情趣之味,要生活简单,随意,慵懒,享受一个安静,私人的空间。
-
空间布局:将阳台纳入休闲区,整个客餐厅敞开,把洗烘一体机放到外卫旁边,既方便操作,也能够完成功能需求。
-
设计选材:大量的木材营造空间的自然感和舒适感。
-
用户体验:还原了家的想象,完成所有需要的功能空间
敞开式空间,点与线,线与面,虚与实,让空间通透且干净。一整面的木饰面墙是装饰也是“玄机”将衣帽间很好的隐藏在木饰面之后,整体和谐舒适。阳台的功能规划为休闲阳台,线性灯的预埋,原木色的家居感,整个阳台既有光,也有温暖。
设计摄取“木”的力量与美,大面积铺陈温润木饰面,作为表述现代自然的人居美学,恰如叔本华所说的,按照自然所启示的经验来生活。
有的人喜欢将日子过成诗,也有的诗一直在刻画日子。设计也是如此,既要有诗意,也要体现生活,将客餐厅的功能丰富多元化将所有的【动】都设计在一起,与【静】彻底分开,给生活和休憩带来更多的便利。
光,衬着景,好似为空间蒙上了一层滤镜,在风的撩拨下,更显居所的温润与澄静。
设计一定是为生活服务的,全屋的简洁用色,合理的空间规划,光线的充分运用,组成整屋的自然与舒适;这个家明亮不耀眼,温柔不谄媚。
0
0

认证 · 让您身份增值