合樾兰亭售楼处
1350
作品说明
- 项目类型:地产
- 项目地点:苏州市
- 建筑面积:750.0000㎡
- 项目造价:184.0000万元
- 参与设计师:赖文娟 龙谦仁
- 竣工时间:2020-07-01
- 设计机构:万品建筑设计(上海)有限公司
-
项目定位:以宝格丽品牌为设计核心,追求高雅奢华与尊贵的生活方式,运用宝格丽酒店的设计理念,在理性的空间置入感性的体验,通过情景氛围的营造,情绪,精神,气味等相聚,打造一个具有情感文化气息的空间。
-
空间意境:通过设计语言的指引,在理性的空间置入感性的体验,通过情景氛围的营造,情绪,精神,气味等,打造一个具有情感文化气息的空间。同时也是室外到室内延展的再次归心,寻求归心栖所。遵崇本心,去感受体验高品质的生活方式。
-
空间布局:沙盘区通透开放的视野搭配弧线造型的水晶吊灯,与沙盘台上下呼应;
在水吧区,深色的石材搭配金属材质营造了尊贵的空间氛围;
吧台背景墙用黑白照片的方式传递经典的设计美学,体现宝格丽的时尚韵味。
-
设计选材:在该空间设计师运用大量的金属元素来呈现宝格丽首饰的精致感,强而有劲的视觉冲击力,线条流畅的舒适度,极大的表现了宝格丽品格中的狂野与性感。
-
用户体验:本售楼处风格总体以轻奢的宝格丽风格为主,使用户感受体验到高品质的生活方式、舒适惬意的空间氛围、经典传统不失内涵的视觉美学。
“罗马假日”意犹未尽, 源于宝格丽的欢愉热情永不停歇。本项目以宝格丽品牌为设计核心,宝格丽无与伦比的设计,诸多备受青睐的作品,色彩大胆,追求高雅奢华与尊贵的生活方式,使其成为当今时代下奢侈品的标志。
落座窗边,感受这一片区域的阳光带给你肌肤的温暖,感受在阳光下阅读一段文字带给你的心灵洗礼和一杯温热咖啡带来的舌尖暖流。
在水吧区,深色的石材搭配金属材质营造了尊贵的空间氛围。神秘又低调,高贵又不失内涵。吧台背景墙用黑白照片的方式传递经典的设计美学,体现宝格丽的时尚韵味。
在该空间设计师运用大量的金属元素来呈现宝格丽首饰的精致感,强而有劲的视觉冲击力,线条流畅的舒适度,极大的表现了宝格丽品格中的狂野与性感。
在水吧区,深色的石材搭配金属材质营造了尊贵的空间氛围。神秘又低调,高贵又不失内涵。吧台背景墙用黑白照片的方式传递经典的设计美学,体现宝格丽的时尚韵味。
当这一切重叠,便感受到了空间带来的午后惬意。
我们通过设计语言的指引,运用宝格丽酒店的设计理念,在理性的空间置入感性的体验。
通过情景氛围的营造,情绪,精神,气味等相聚在假日时光里,打造一个具有情感文化气息的空间。室外到室内延展的再次归心,寻求归心栖所。遵崇本心,去感受体验高品质的生活方式。
人与空间的互动是设计师的创作语言。在一个新鲜陌生的环境,依然令人感到舒适与放松,这是空间设计的馈赠。
沙盘区通透开放的视野搭配弧线造型的水晶吊灯,与沙盘台上下呼应,打破硬朗,为该空间注入温柔与优雅。光线照射在沙盘台上映出了波光粼粼的水波纹,沁人心脾。
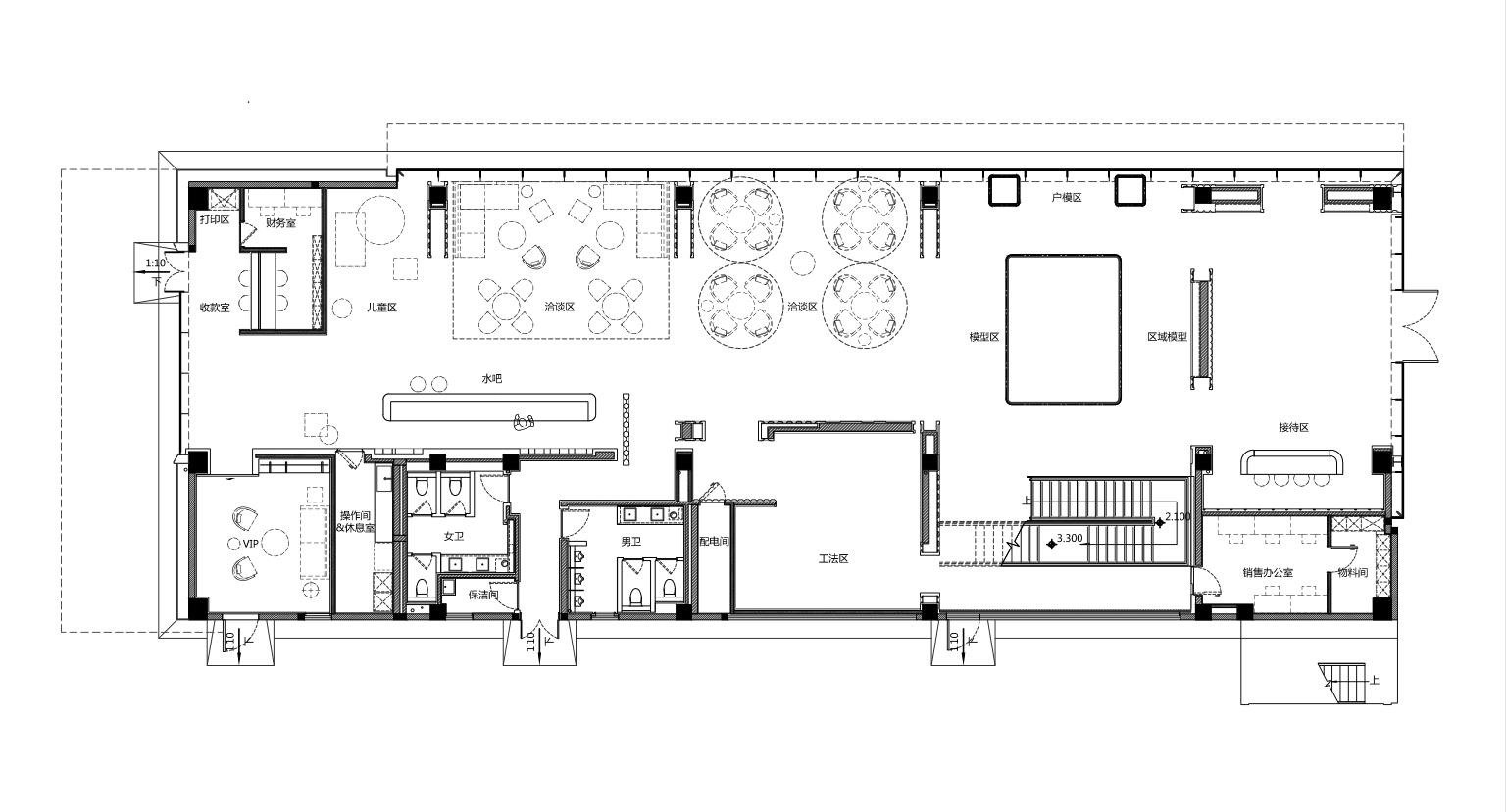
售楼处首层平面布置图
0
1

认证 · 让您身份增值