Genepoint生物上海办公室


- 项目类型:办公
- 项目地点:上海市
- 建筑面积:460㎡
- 竣工时间:2020-01-10
- 设计机构:上海优鸿设计
于客户而言,办公设计无异于一次“量身定制”的过程。设计师需要第一时间倾听使用者的诉求,掌握企业的品牌力量和审美定位,将其幻化成空间内部的语言,构建出一个实用 好用 耐用的办公环境。
Genepoint是一家基于新一代生物资源研发及运用的企业,伴随着在科研领域的不断拓展,他们急需一个满足人员扩张和彰显内在文化的新办公环境,于是找到我们重塑品牌形象新职场。
如果要将这家企业进行画像,简约而带有跳脱的审美倾向是首要的特征。
本案的设计不拘泥于常规化的设计思想,在主体为简约基调的影响下,通过结构、空间和色彩显现出多元复合的交错亮点;同时,设计师运用软装、陈设、绿植端景构建富有创意的视觉空间。
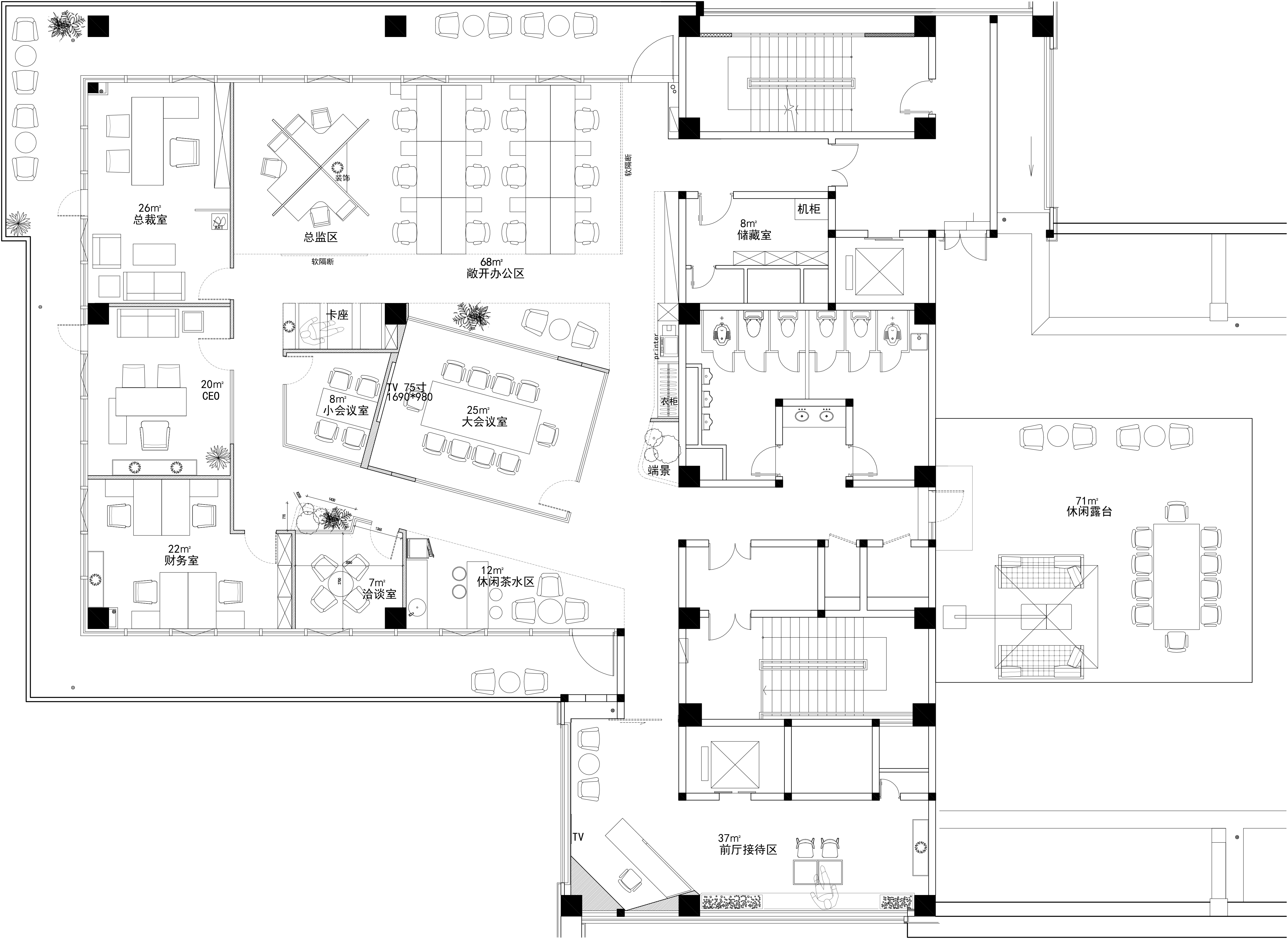
为了进一步展现生物科技行业的创新和灵活,设计师将空间的原始角落做“切割”处理后设置了一体化的接待台,直观的展现出异形几何的形态,放大了空间的视觉美学。
在贴合窗边的位置释放出一个宽敞的入座空间,承载着接待等候的功能,供来者使用。
舒适的色彩搭配、大气流畅的线条走向,令空间每个部分富于变化又相互联系。
自由变化的动态环境设计,促进协同合作而设计的办公环境,注重生态环保的理念,让员工享有更高的参与度。
在经历对方案的深度思考后,设计师更倾向于以平实语言塑造优质、具有稳定感的空间氛围,建立全新的空间形态。
选用华腾地毯的Sketch & Color Sketch系列,将素描艺术附于地面,打造空间多样性。多边形玻璃隔墙和木饰面的重组,产生出一种新的聚合感,令会议室富有变化性。
洽谈室以蓝调铺陈开来,以此柔和生物研发的空间科技感 ,同时过道处打造一处绿植端景,增加人文自然气息。
一抹抹绿意是转角处的惊喜,也是工作上的舒缓。
开放办公区无论在空间划分,功能组合,材料运用,以及色彩搭配,顶部和灯光的设计上,都体现了现代、简洁,明了,既能满足办公需求,又能体现现代公司的企业特性和美感。
立体镂空六角花片实现了工作区与开放区之间的分区,轻巧灵活。卡座选用柔和的色彩搭配木材饰面,为空间提供了温暖、质朴的元素。
-
上海市
工作地点
-
联系方式
021-58323608


