境-暖


- 项目类型:住宅公寓
- 项目地点:苏州市
- 建筑面积:145.0000㎡
- 项目造价:70.0000万元
- 主案设计师: 陈静
- 参与设计师:周瑜 张娜娜
- 竣工时间:2019-12-17
- 设计机构:禾景装饰-大陈设计
-
项目定位:放松全部的身心
煮茶、饮酒、养花、种草、下棋、会友
偷得浮生半日闲
-
空间意境:
用自然的材质、温暖的色调
塑造一个心灵的桃花源
家是心灵的庇护所
是身心的港湾
愿我们的设计赋予空间温暖
去温暖那颗归家的心灵
-
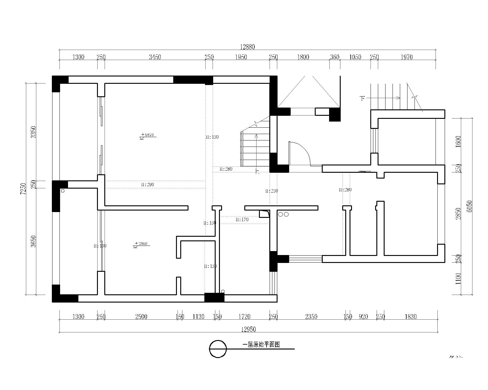
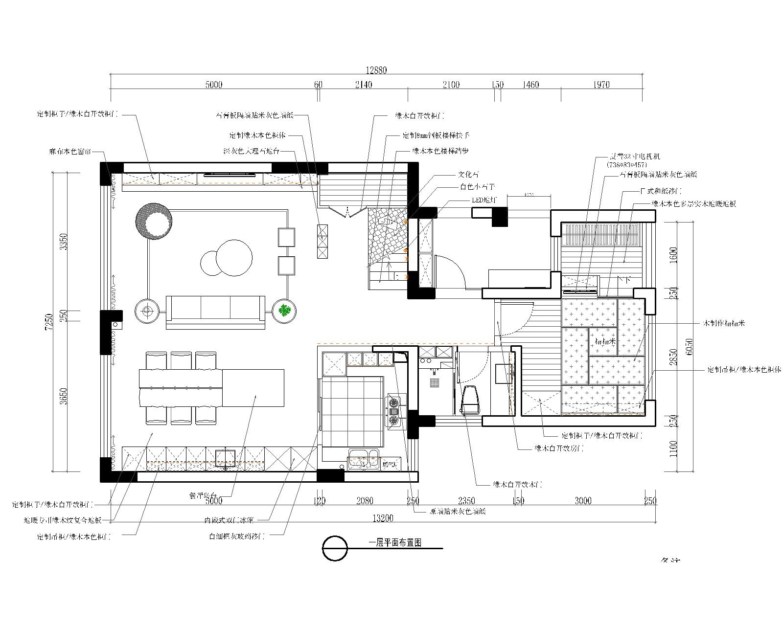
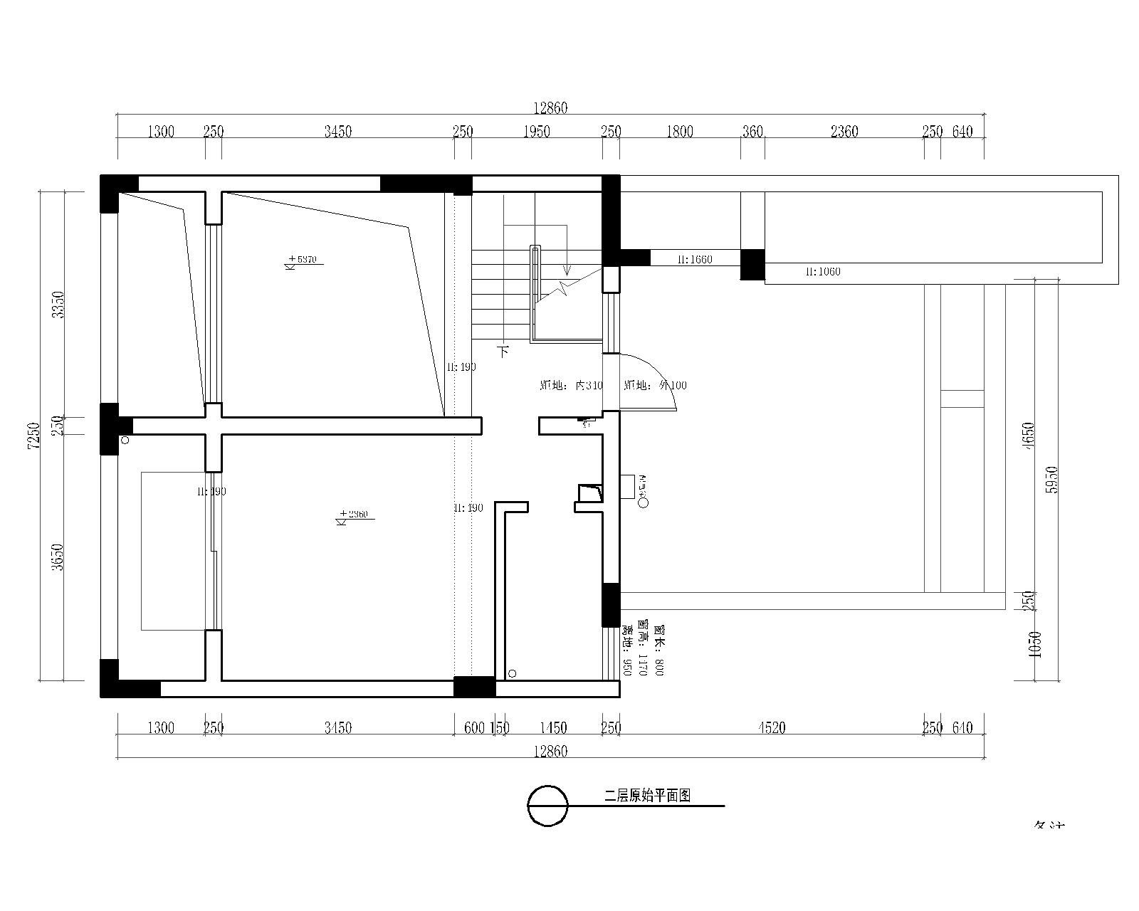
空间布局:在这个两层复式约150平的空间中,
设计师巧妙借景借势,
将所有的分隔墙拆除,
门窗更换成宽大的落地窗,
从而营造出一个无拘无束的自由空间。
我们打穿客厅与餐厅的束缚,
将自由、放松的理念融入到空间之中,
客厅、餐厅、中岛台、中西厨、楼梯间,
均设计为自由流动的空间,
-
设计选材:大量的原木元素配合干净素雅的砂岩板砖
无主灯设计更富有情调
干净、安宁、雅致
用自然的材质、温暖的色调
塑造一个心灵的桃花源
-
用户体验:业主十分满意
在这个两层复式约150平的空间中, 设计师巧妙借景借势, 将所有的分隔墙拆除, 门窗更换成宽大的落地窗, 从而营造出一个无拘无束的自由空间。
家是什么? 是身体与心灵的寄托, 是空间中物与人的关系,
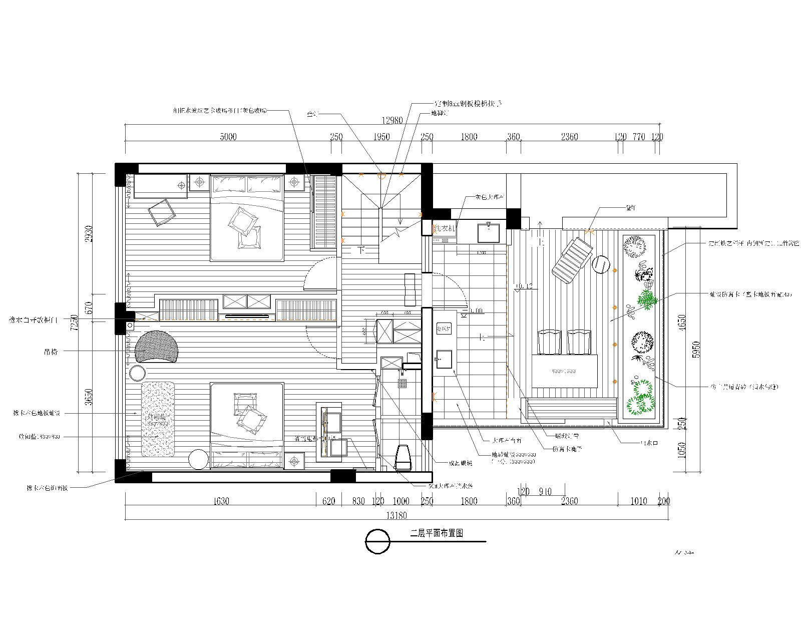
楼梯木地板暖意融融, 就算光脚踩上去也非常的舒服, 感应灯令夜间行走也变得安全放心, 米白色钢板挡板增加了纯净空灵的氛围, 楼梯下方的微景观, 隐藏不露,笼之于内。 灵动与透气的布局, 为楼梯空间带来优美、安详的视觉体验。
我们打穿客厅与餐厅的束缚, 将自由、放松的理念融入到空间之中, 客厅、餐厅、中岛台、中西厨、楼梯间, 均设计为自由流动的空间, “静”有条理, “动”而有序, 惬意通过设计展现在空间中。
低饱和度的色彩, 为空间增加柔软与温度。
干净、安宁、雅致
是空间光影的变化,也是繁华世界中仍保留的温柔所在
久居繁华之后, 人们便格外向往宁静的生活, 草木竹禾的空间, 无疑是最亲近自然气息的所在, 在这个纯粹的空间中, 静坐养气,冥思凝神, 让身心得到彻底的放松。
木质与大理石形成冷与暖的对比, 一枝翠绿恰到好处的调和了空间的气氛,
自然、优雅的配色,
温馨、迷人的灯光,
主卧卫生间采用当下流行的, 三分离设计, 方便舒适, 同时让空间充满流动性, 自然融于空间。
阳光透过窗帘映入一层春色, 坐在吊椅上轻轻的摇晃、发呆, 像是回到最原始的姿态。 既有独处时的闲适, 也可有与家人嬉戏的享乐。
大面积的橡木板和暖白色相配, 呈现出更立体的原木质感,
家是心灵的庇护所 是身心的港湾
愿我们的设计赋予空间温暖 去温暖那颗归家的心灵
主卧卫生间采用当下流行的, 三分离设计, 方便舒适, 同时让空间充满流动性, 自然融于空间。
放松全部的身心 煮茶、饮酒、养花、种草、下棋、会友 偷得浮生半日闲
用自然的材质、温暖的色调 塑造一个心灵的桃花源

