初心
651
作品说明
- 项目类型:住宅公寓
- 项目地点:佛山市
- 建筑面积:326.0000㎡
- 项目造价:120.0000万元
- 主案设计师: 王建锋
- 参与设计师:王建锋
- 竣工时间:2020-01-08
- 设计机构:东易日盛家居装饰集团股份有限公司
-
项目定位:第一次见到业主,他们是一对年轻的夫妻,他们说的最多的一句话就是想更舒适的生活,听听音乐、做做沙拉、陪女儿做下手工、慵懒的晒晒太阳。所以以都市新奢华定位他们的生活方式再适合不过,在温暖的下午或者周末很休闲放松的状态下与家人喝着咖啡,陪孩子玩耍,尽情的涂鸦,分享快乐心情。
-
空间意境:风格以现代加入轻奢感,以色系搭配线条感,达到时尚和舒适。
-
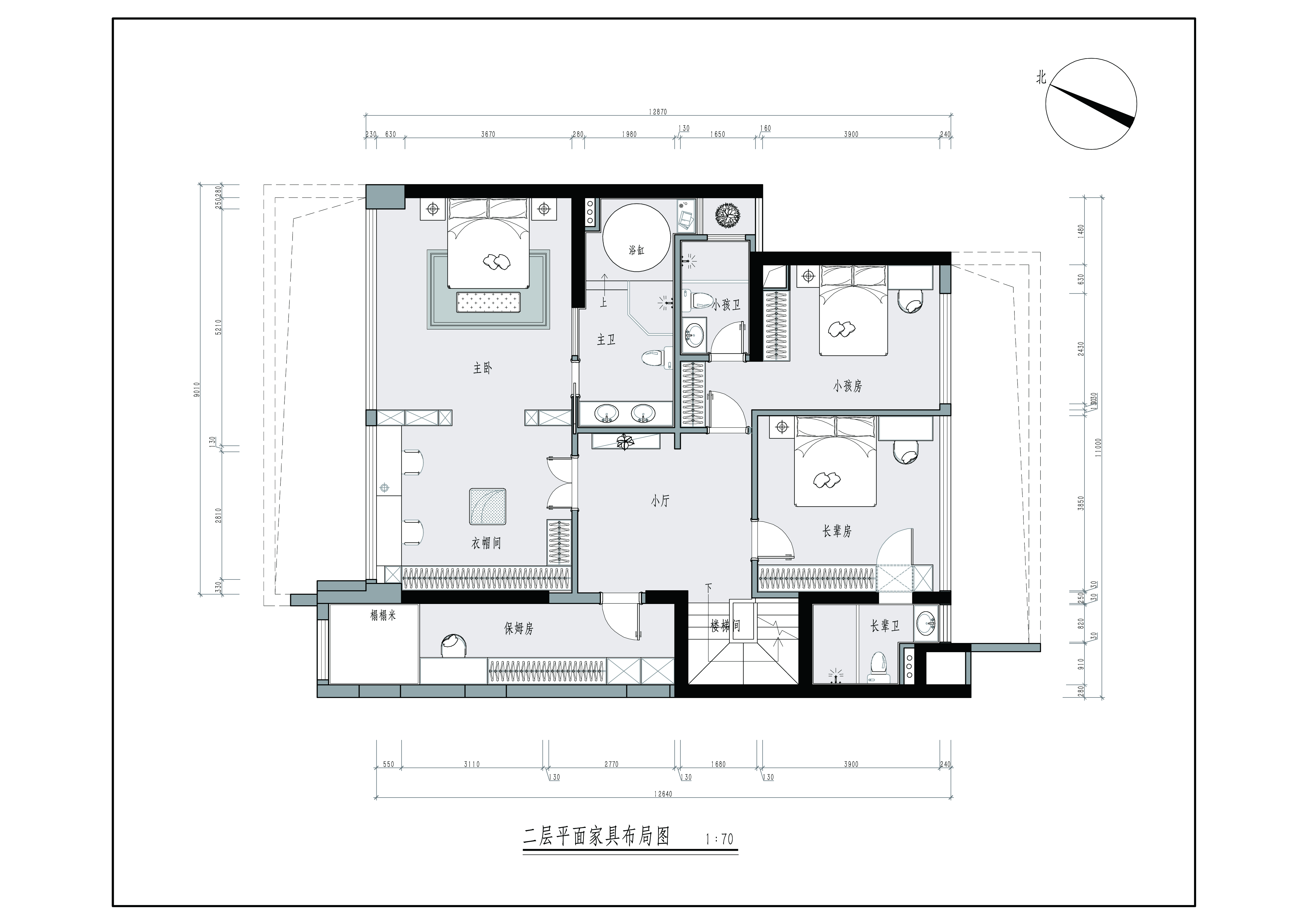
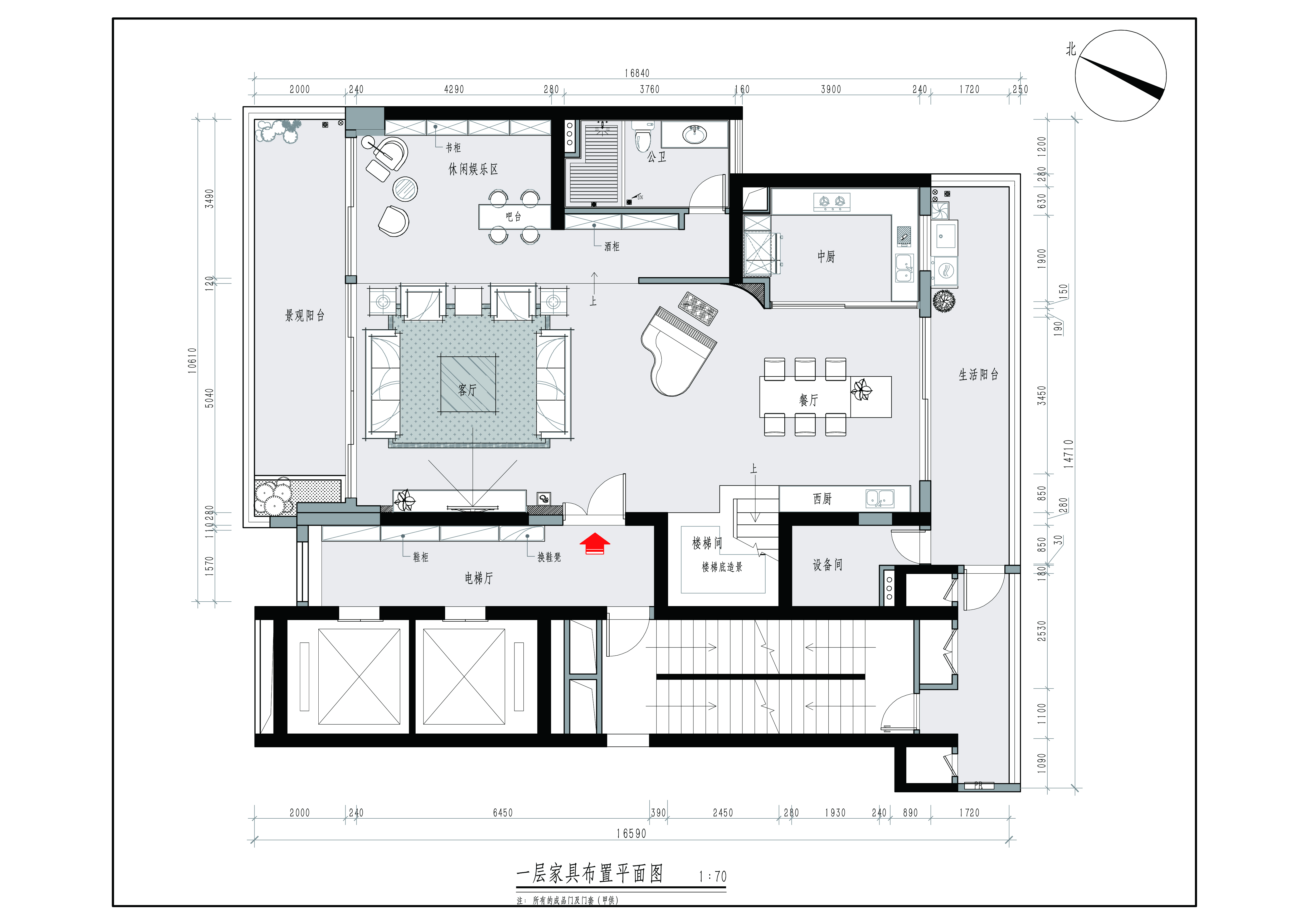
空间布局:整个户型格局改动比较大,打通了整个空间,扩大了窗户和推拉门。设计方案上设计师用材质的高级质感诠释奢华,用设计打造更高品质的优质生活空间。
-
设计选材:选材方面,主要以瓷砖为主,房间以乳胶漆为主。不同材质、形状的混合搭配,注重中性背景色,强调时尚、品质与实用的重组。
-
用户体验:业主经常会发一些家里的小惊喜和感动,因为格局的改动,业主后期使用起来比较舒适,早上在卧室躺在床上就可以日出,傍晚可以在客厅看夕阳。特别是在家约朋友开个小party,空间足够他们挥霍。特别感动的是业主发的一个小视频:他们坐在阳台,抱着女儿,几个朋友围在一起看着佛山的夜景,一起唱着歌曲。
0
0

认证 · 让您身份增值