-
项目定位:色彩可以改变空间的大小,而在此案中是最好的论证,使用大面积的黑色材质,以黑色做空间的”器“,借由深色给人带来的下坠感,拓展“空间”,佐以浅色再把受众的视线拉回到一个平面上来。由此,您的视觉感可由2D、3D中任意切换,就如摄影机的聚焦成像,受众所关注的焦点不同,那你看到的”像“也会不尽相同。目之所及为像,目之未及为虚镜,虚实相生,诱人遐想,渐而神往。
-
空间意境:设计师使用光、色彩、质地和Raysonic独有的元素,以期在空间设计中获得各种各样的效果。通过材质的交替,色彩与光影的变换,使空间给人一种节奏感,而这种节奏感的形成在室内设计中也可用来减少杂乱感。
-
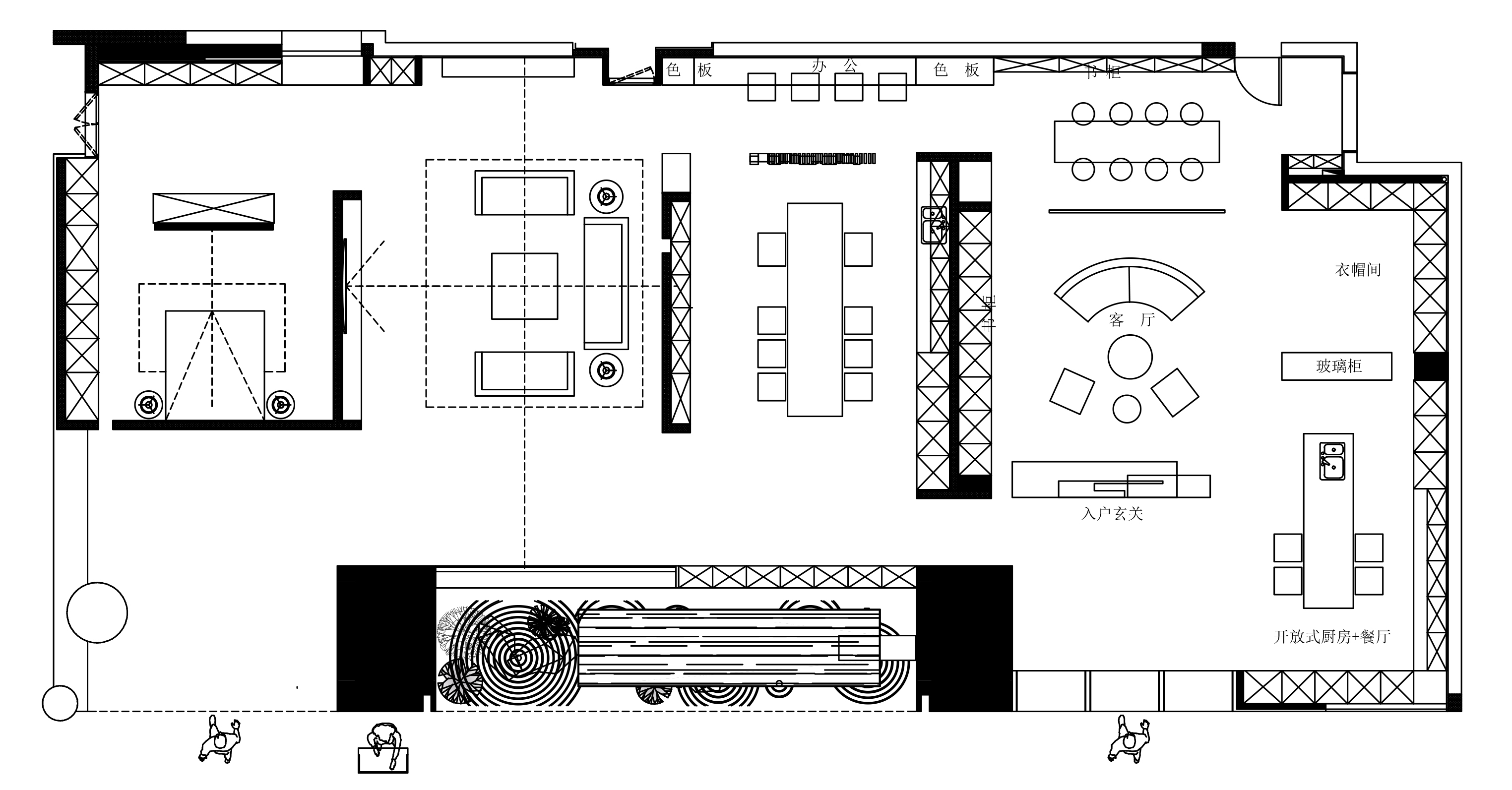
空间布局:在创建空间“节奏感”,设计师必须精确拿捏主题,并设计得符合“逻辑”,去支持每位独立个体的各自赏悦,让受众时刻对设计的美感保持警惕,从而感知到空间带来的情绪。
-
设计选材:利用天然的石材造景,铁丝网格喷红色漆,经济又低碳。
-
用户体验:设计另辟蹊径,受众和业界同行的评价很高,客流量明显上涨。
Forest Picture Calm and strange is this evening hour in the forest, 寂静又陌生,此刻林中的夜晚, Carven domes of green are the trees by the pathway, 路边的大树,雕刻绿色的穹顶, Infinite shadowy isles lie silent before me, 无比幽暗的岛屿静卧在眼前, Summer is heavy with age, and leans upon Autumn. 夏日一天天地沉重,斜倚着秋。 All the land is ripe. There is no motion. 大地熟透了。不见一丝波澜 Down the long bays of blue that those cloudy headlands 沿着长长的蓝色海湾,海岬阴沉沉 Sleep above in the glow of a fading sunset, 沉睡在消退中的落日余晖里; All things rest in the will of purpose triumphant. 一切长眠于此,意志得意洋洋。 Outlines melting into a vague immensity 茫茫然,融入一片无限之中 Fade, the green gloom grows darker, and deeper the dusk: 消散,青色的幽暗更深,薄暮更重了: Hark! a voice and laughter—the living and loving 听吧!笑声与歌声——生活与爱情 Down these fantastic avenues pass like shadows. 仿佛影子一般,穿过美妙的林荫道。
“品牌的成功及美譽度不是建立在建築或是空間設計之上的,但是很多品牌的失敗卻是由於忽視了空間設計關系的力量,由此可見空間設計對於品牌效益舉足輕重。”RAYSONIC之前項目多由唐忠漢、工一設計等設計名師操刀,在廣州店中,RAYSONIC攜手知名設計師李忠光,打破傳統台式簡約風格,多元風格落地呈現。
色彩可以改变空间的大小,而在此案中是最好的论证,使用大面积的黑色材质,以黑色做空间的”器“,借由深色给人带来的下坠感,拓展“空间”,佐以浅色再把受众的视线拉回到一个平面上来。由此,您的视觉感可由2D、3D中任意切换,就如摄影机的聚焦成像,受众所关注的焦点不同,那你看到的”像“也会不尽相同。目之所及为像,目之未及为虚镜,虚实相生,诱人遐想,渐而神往。
设计师使用光、色彩、质地和Raysonic独有的元素,以期在空间设计中获得各种各样的效果。通过材质的交替,色彩与光影的变换,使空间给人一种节奏感,而这种节奏感的形成在室内设计中也可用来减少杂乱感。在创建这种空间”节奏感“时,设计师必须精确拿捏主题,并设计得符合“逻辑”,去支持每位独立个体的各自赏悦,让受众时刻对设计的美感保持警惕,从而感知到空间带来的情绪。

